This beautiful 3 bedroom townhouse is set in a gated Waterside development. The property offers many benefits including UPVC double glazing, a refitted modern kitchen/dining room, ground floor bedroom and shower room, gas central heating, garage, access to boardwalk with views across the Southampton Water and walkway towards Eling. An internal viewing is highly recommended.
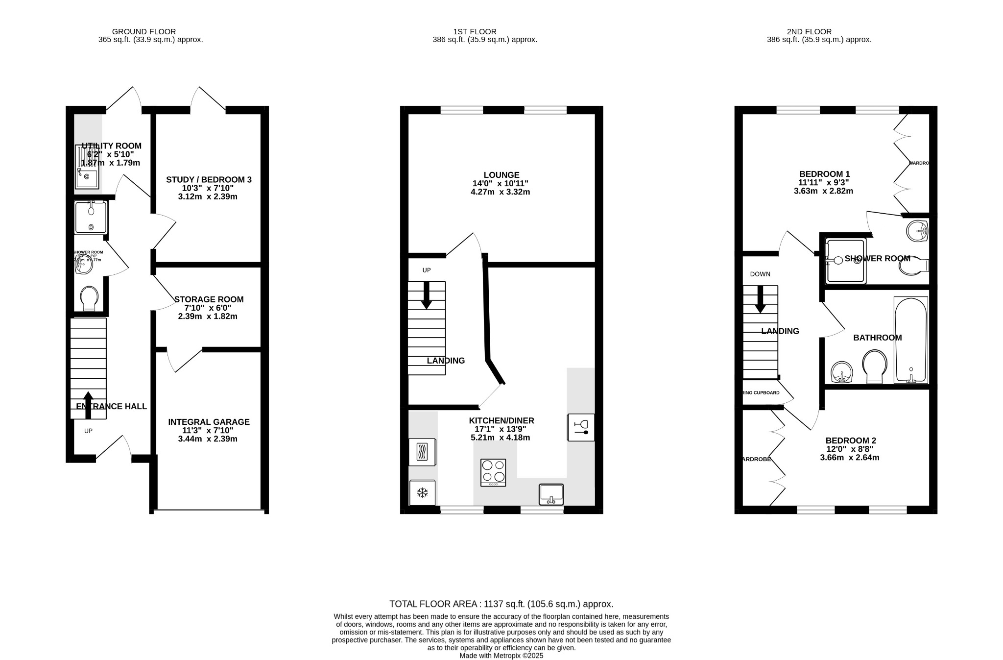
ENTRANCE HALL:
Approached via front door. Wood effect laminate flooring. Stairs to first floor. Radiator.
GROUND FLOOR BEDROOM 3/FAMILY ROOM:10' 3" (3.12m) x 7' 10" (2.39m)::
UPVC door to garden.
Wood effect laminate flooring. Radiator.
GROUND FLOOR UTILITY ROOM:
6' 2" (1.88m) x 5' 10" (1.78m)::
UPVC stable door to garden. Wood effect laminate flooring. Range of wall and base cupboards. Inset stainless steel sink unit. Space and plumbing for washing machine and tumble dryer. Wall mounted gas fired boiler. Radiator.
GROUND FLOOR SHOWER ROOM:
8' 3" (2.51m) x 2' 6" (0.76m)::
Comprising shower cubicle with shower fitted over. Wall mounted wash hand basin. Close coupled WC. Fully tiled. Radiator.
GROUND FLOOR STORAGE ROOM:
7' 10" (2.39m) x 6' (1.83m)::
To the rear of the garage. Light and door into garage.
FIRST FLOOR LANDING:
Stairs to second floor. Radiator.
FIRST FLOOR LOUNGE:
14' (4.27m) x 10' 11" (3.33m)::
Two windows to rear. Radiator.
FIRST FLOOR KITCHEN/DINER:
17' 1" (5.21m) x 13' 9" (4.19m)::
Two windows to front. Refitted with a comprehensive range of base and wall units with attractive working surfaces and splashbacks. Inset sink unit with mixer tap. Integrated fridge/freezer and dishwasher. Integral bin cupboard. Eye level slide and hide built in oven. Tile effect flooring.
SECOND FLOOR LANDING:
Built in airing cupboard. Access to loft space. Radiator.
SECOND FLOOR BEDROOM 1
11' 11" (3.63m) x 9' 3" (2.82m)::
Two windows to rear. Wood effect laminate flooring. Range of fitted wardrobes with hanging rail and shelving. Radiator. Door to:
SECOND FLOOR ENSUITE:
Comprising a white suite with pedestal wash hand basin. Shower cubicle with shower over. Close coupled WC. Fully tiled with complementary tiling. Radiator.
SECOND FLOOR BEDROOM 2:
12' (3.66m) x 8' 8" (2.64m)::
Two windows to front. Range of fitted wardrobes. Radiator.
SECOND FLOOR FAMILY BATHROOM:
Comprising white suite of panelled bath. Close coupled WC. Pedestal wash hand basin. Fully tiled walls. Ceramic tiled flooring. Radiator.
OUTSIDE:
This property is set within a gated community with electric gates for vehicle access. At the front of the property is a driveway offering off road parking for 2 cars and leading to:
GARAGE
11' 3" (3.43m) x 7' 10" (2.39m)::
Electric up and over door to front. Power and light connected.
REAR GARDEN:
Fenced to boundaries. Decked patio area to the rear of the property with pathway down to further decked pergola entertaining area. Lighting around the garden and pergola. Laid to artificial lawn.
COUNCIL TAX:
New Forest District Council, Band E, Charge Payable £2868.19 p.a. 2025/2026
SERVICE CHARGE:
£50 Per Month - For Courtyard
Covers general maintenance of the courtyard, the gardener, gates, electric & painting of the front of the houses and front doors/garage/balcony bi-annually
Read full description
Show less