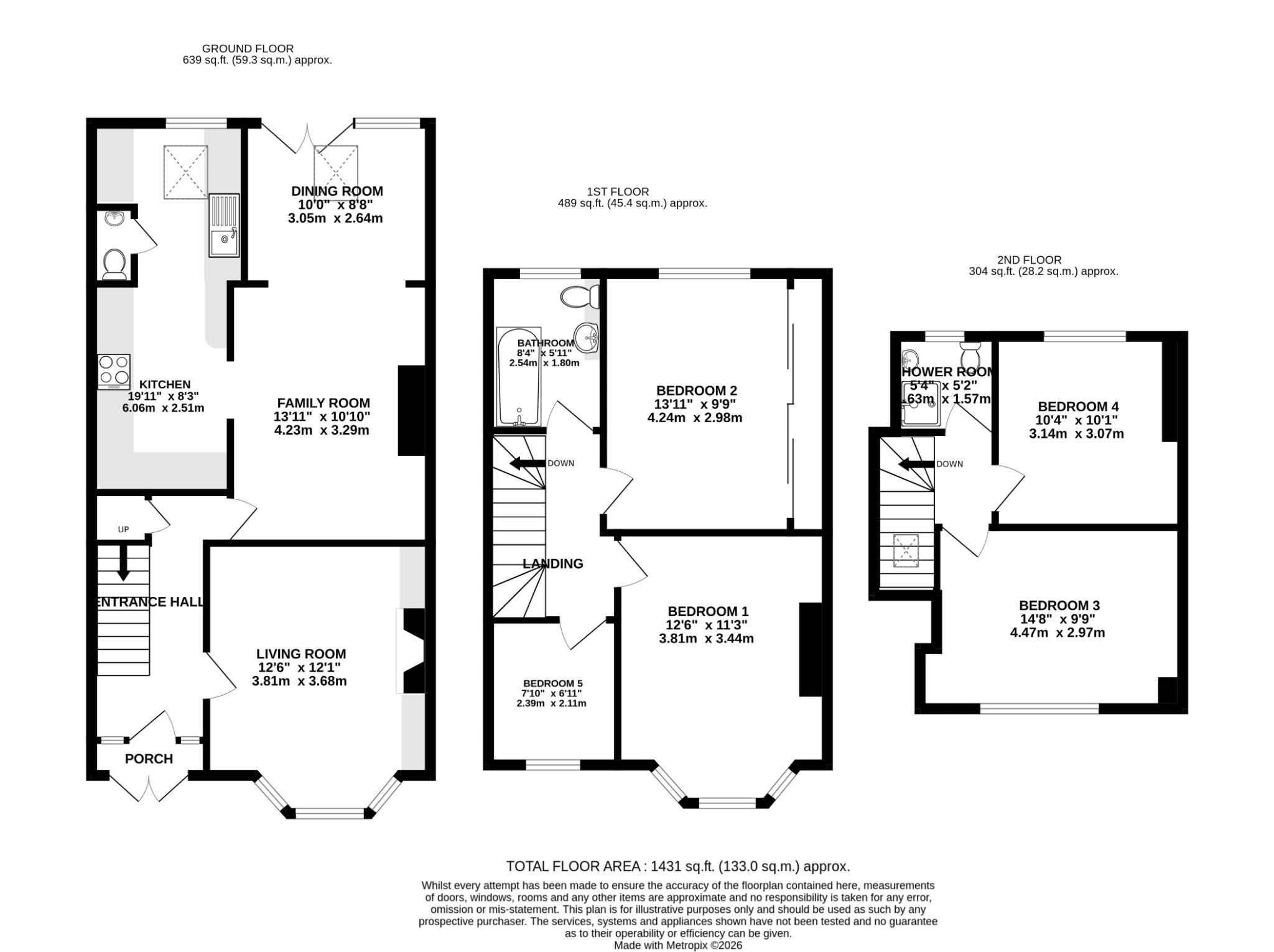
This spacious five-bedroom terraced home offers flexible accommodation arranged over three floors, making it an excellent option for families or buyers seeking generous space at strong value for the area. The ground floor provides a comfortable layout with a welcoming living room, a family room flowing through to a dining area, a fitted kitchen, and a convenient WC - ideal for modern day living and entertaining.
On the first floor are three well-proportioned bedrooms served by a family bathroom, while a loft conversion creates bedrooms four and five, complemented by an additional shower room, offering excellent versatility for guests, older children, or home working. Externally, the property benefits from an enclosed rear garden, providing a private outdoor space to enjoy. The house is presented in reasonable condition, allowing scope for personalisation, and represents excellent value for a five-bedroom home within this popular Portsmouth location.
ENTRANCE HALL:
Smooth and coved ceiling, tall column radiator, stairs to first floor, understairs storage cupboard, fitted carpet.
LOUNGE:
Smooth ceiling, double glazed bay windows, column radiator, recessed display and storage cabinets, fitted carpet.
FAMILY & DINING ROOM:
Smooth and coved ceiling, double glazed double doors and double glazed window onto rear garden, Velux window, column radiator, laminate flooring, opening to:
KITCHEN:
Smooth ceiling, inset spotlights, double glazed window, Velux window, range of wall and base mounted units with work surfaces over, inset sink and drainer unit, integrated electric induction hob, integrated high level electric double oven, integrated fridge freezer, integrated drinks cooler, space and plumbing for washing machine and tumble dryer, tiled floor.
FIRST FLOOR LANDING:
Smooth and coved ceiling, double glazed window, stairs to second floor, column radiator, fitted carpet.
BEDROOM 1:
Smooth and coved ceiling, inset spotlights, double glazed bay windows, fitted wardrobes, tall column radiator, fitted carpet.
BEDROOM 2:
Smooth and coved ceiling, double glazed window, tall column radiator, wood flooring.
BEDROOM 5:
Smooth and coved ceiling, inset spotlights, double glazed window, corner column radiator, fitted carpet.
BATHROOM:
Smooth and coved ceiling, inset spotlights, double glazed obscured window, panelled jacuzzi bath, WC and wash hand basin, ladder radiator, part tiled walls, tiled floor.
SECOND FLOOR LANDING:
Smooth and coved ceiling, double glazed Velux window, fitted carpet.
BEDROOM 4:
Smooth and coved ceiling, inset spotlights, double glazed dormer window, radiator, fitted carpet.
BEDROOM 5:
Smooth and coved ceiling, double glazed window, radiator, fitted carpet.
SHOWER ROOM:
Smooth and coved ceiling, double glazed window, WC and wash hand basin, shower cubicle, ladder radiator, part tiled walls, tiled floor.
OUTSIDE:
Front - Deep forecourt with low retainer wall and gate.
Rear - Fence enclosed block paved garden, rear pedestrian access to vehicular access road at rear.
COUNCIL TAX
Portsmouth City Council TAX BAND C £2,037.07 for the year 2026/2027.
Read full description
Show less