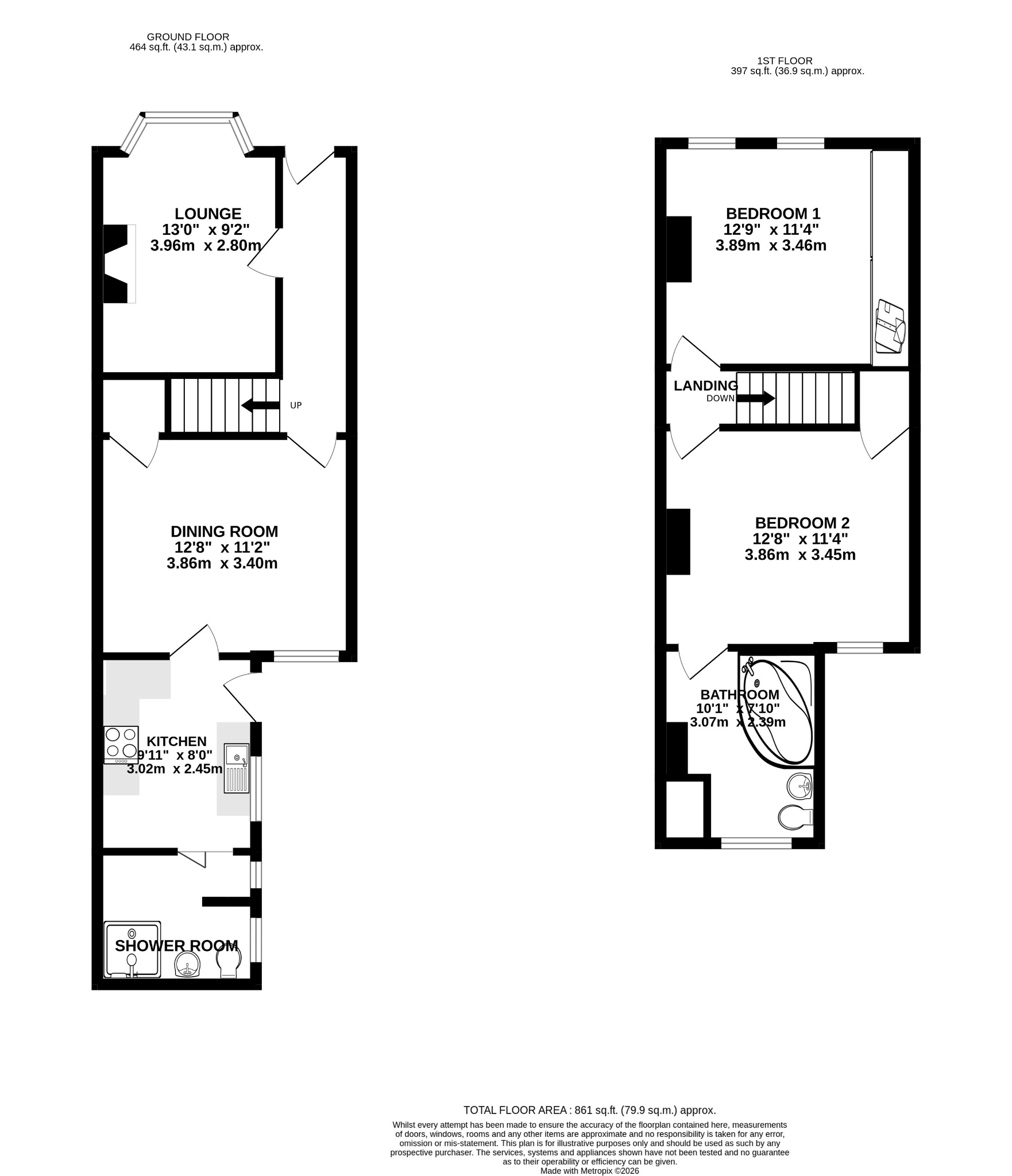
DESCRIPTIONNO FORWARD CHAIN. An older style two bedroom semi-detached house located in a prime position with wonderful views to the rear of Fareham Creek. The property, which is within walking distance of Fareham town centre, briefly consists of an entrance hall, lounge, dining room and ground floor shower room. On the first floor, two double bedrooms can be found and a three piece bathroom. The property benefits from double glazing and is warmed by gas central heating. The rear garden stretches down to Fareham Creek and enjoys fantastic views of the Creek and golf course beyond.
As sole agents, we would highly recommend an early inspection.
PART GLAZED DOOR
Leading to:
ENTRANCE HALL
Stairs to first floor. Radiator. Laminate flooring. Doors to:
LOUNGE
Double glazed bay window to front elevation. Chimney breast with cast iron fireplace. Radiator.
DINING ROOM
Double glazed window to rear elevation. Radiator. Understairs storage cupboard. Laminate flooring. Door to:
KITCHEN
Double glazed window to side elevation. Double glazed door to outside. Kitchen comprising single drainer sink unit with cupboard under. Further range of wall and base level units with roll edge work surfaces over and splash back tiling. Built-in five ring gas hob with cooker hood over and electric oven beneath. Built-in fridge/freezer. Plumbing for dishwasher. Tiled flooring. Folding door to:
SHOWER ROOM
Two double glazed windows to side elevation. Low level close coupled WC. Pedestal wash hand basin. Shower cubicle. Plumbing for washing machine. Heated towel rail. Tiled flooring.
FIRST FLOOR
LANDING
Doors to:
BEDROOM ONE
Two double glazed windows to front elevation. Chimney breast with cast iron fireplace. Radiator. Range of fitted wardrobes.
BEDROOM TWO
Double glazed window to rear elevation. Chimney breast with cast iron fireplace. Radiator. Built-in wardrobe. Door to:
BATHROOM
Double glazed window to rear elevation. Corner bath. Pedestal wash hand basin. Low level close coupled WC. Chimney breast with cast iron fireplace. Radiator. Cupboard housing gas boiler.
OUTSIDE
There is a concrete patio area adjacent to the property with brick built garden store attached to the house. A pathway runs down the garden past lawned and patio areas and ends at the banks of Fareham Creek and enjoys fantastic views.
COUNCIL TAX
Fareham Borough Council. Tax Band B. Payable 2026/2027. £1,765.98.
Read full description
Show less