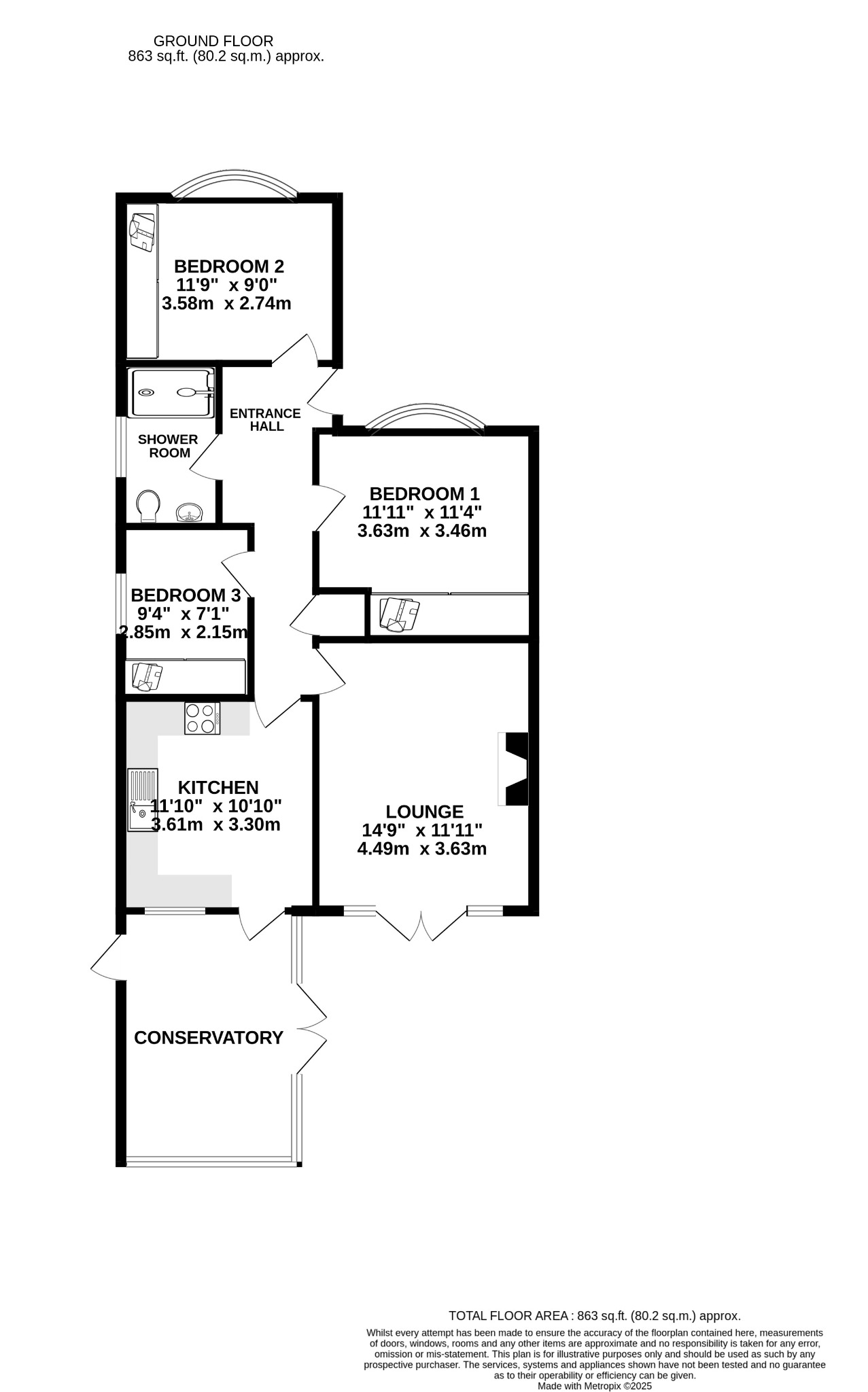
DESCRIPTIONNO FORWARD CHAIN. This three bedroom semi-detached bungalow lies within the popular Uplands development and is within easy access to Fareham town centre and train station. The bungalow's accommodation briefly comprises; entrance hall, three bedrooms, refitted shower room, lounge, kitchen/breakfast room, and double glazed conservatory. The bungalow benefits from double glazing and is warmed by gas central heating and has attractive front and rear gardens. There is off road parking available to the block paved driveway to the front of the property and a GARAGE. As sole agents, we would highly recommend an early inspection.
DOUBLE GLAZED DOOR
Leading to:
ENTRANCE HALL
Radiator. Access to loft space. Storage cupboard. Further cupboard housing domestic meters and fuse box. Doors to:
BEDROOM ONE
Double glazed bow window to front elevation. Range of built-in wardrobes including airing cupboard housing hot water cylinder. Further fitted chests of drawers. Radiator. Coved and skimmed ceiling.
BEDROOM TWO
Double glazed bow window to front elevation. Two sets of built-in wardrobes and chests of drawers. Radiator. Coved and textured ceiling. Wall light.
BEDROOM THREE
Double glazed window to side elevation. Radiator. Fitted wardrobes.
SHOWER ROOM
Double glazed window to side elevation. Walk-in double shower cubicle with wall mounted shower unit. Low level close coupled WC. Vanity unit with wash hand basin and storage beneath. Further bathroom storage unit. Radiator. Tiled walls. Heated chrome towel rail. Inset ceiling spotlights.
LOUNGE
Double glazed French doors with double glazed side windows leading to garden. Chimney breast with electric fire with fireplace surrounds. Coved and textured ceiling. Radiator. Wall lights.
KITCHEN
Double glazed window to side elevation. One and a half bowl single drainer sink unit with cupboard under. Further range of wall and base level units with roll edge work surfaces over and splash back tiling. Built-in four ring ceramic hob with cooker hood over. Built-in eye level double oven and grill. Plumbing for washing machine. Space for fridge/freezer. Area for dining table. Radiator. Double glazed door and window to conservatory.
CONSERVATORY
Double glazed conservatory built on a dwarf brick wall with double glazed windows and French doors leading to garden.
OUTSIDE
Off road parking is available to the block paved driveway which runs alongside the bungalow providing access to:
GARAGE. Accessible via up and over door.
The rear garden has a patio area adjacent to the property. The first section of garden has flower and shrub borders and is mainly laid to lawn with a further area of artificial lawn and attractive flower and shrub borders. The garden is fence enclosed and has two greenhouses.
COUNCIL TAX
Fareham Borough Council. Tax Band D. Payable 2025/2026. £2,164.55.
Read full description
Show less