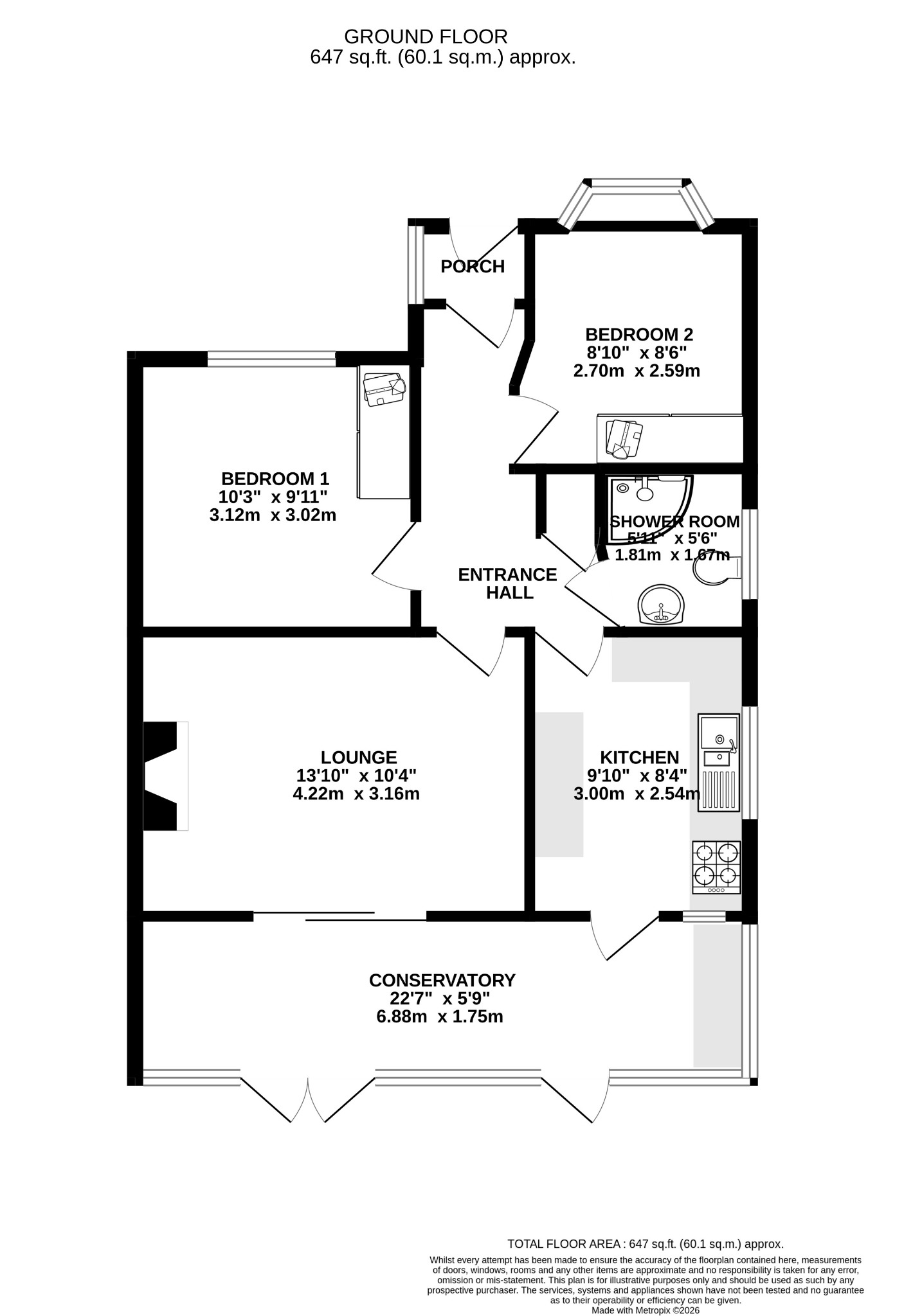
DESCRIPTION NO FORWARD CHAIN. An immaculate two bedroom semi-detached bungalow located within a popular cul de sac setting set amongst similar style properties to the west of Fareham town centre. The property accommodation briefly comprises; entrance hall, two bedrooms, shower room, a lounge and a kitchen, both lead directly onto the double glazed conservatory which stretches the width of the bungalow and overlooks the well-tended south facing rear garden. A particular feature of the bungalow is its own long driveway, which runs past the bungalow and provides access to the GARAGE and parking for several cars.
As sole agents we would highly recommend an early inspection.
DOUBLE GLAZED DOOR TO:
ENTRANCE PORCH
Double glazed window to side elevation. Part glazed door to:
ENTRANCE HALL
Access to loft space. Radiator. Storage cupboard. Doors to:
BEDROOM ONE
Double glazed window to front elevation. Radiator. Built-in wardrobe and chest of drawers. Storage cupboard. Radiator.
BEDROOM TWO
Double glazed window to front elevation. Radiator. Built-in wardrobes and chest of drawers.
SHOWER ROOM
Double glazed window to side elevation. Quadrant shower cubicle with electric shower unit. Low level close coupled WC. Vanity unit with wash hand basin and storage beneath. Heated chrome towel rail.
KITCHEN
Double glazed window to side elevation. One and a half bowl single drainer sink unit with cupboard under. Further range of wall and base level units with roll edge work surface over and splashback tiling. Built-in four ring gas hob with gas oven under. Recess for fridge/freezer. Laminate flooring. Part glazed door to conservatory. Wall mounted gas boiler. Extractor fan.
LOUNGE
Double glazed patio doors to conservatory. Chimney breast with modern electric fire. Radiator. Coved and textured ceiling.
CONSERVATORY
Double glazed conservatory with double glazed French doors and further double glazed door to garden. Radiator. Tiled flooring. Plumbing for washing machine. Low level storage with work surface over.
OUTSIDE
Off-road parking is available for several cars to the block paved driveway which runs past the side of the bungalow providing access to the:
20' LONG GARAGE: Accessible via up and over door and has a window and door to rear garden.
The rear garden has a concrete patio area adjacent to the property. The remainder of the garden can be found mainly laid to lawn. There is an area of gravel to the side of the lawn. A crazy paved pathway leading to the personal access to the garage and a garden store which is attached to the rear of the garage. The garden is fence enclosed and has gated side pedestrian access where the garden tap can be found.
COUNCIL TAX
Fareham Borough Council. Tax Band C. Payable 2026/2027. £2,018.27.
Read full description
Show less