adair road, southsea

2 bedrooms | £265,000 | Freehold

Call the Southsea office

023 9273 5558

Request Viewing Save Print
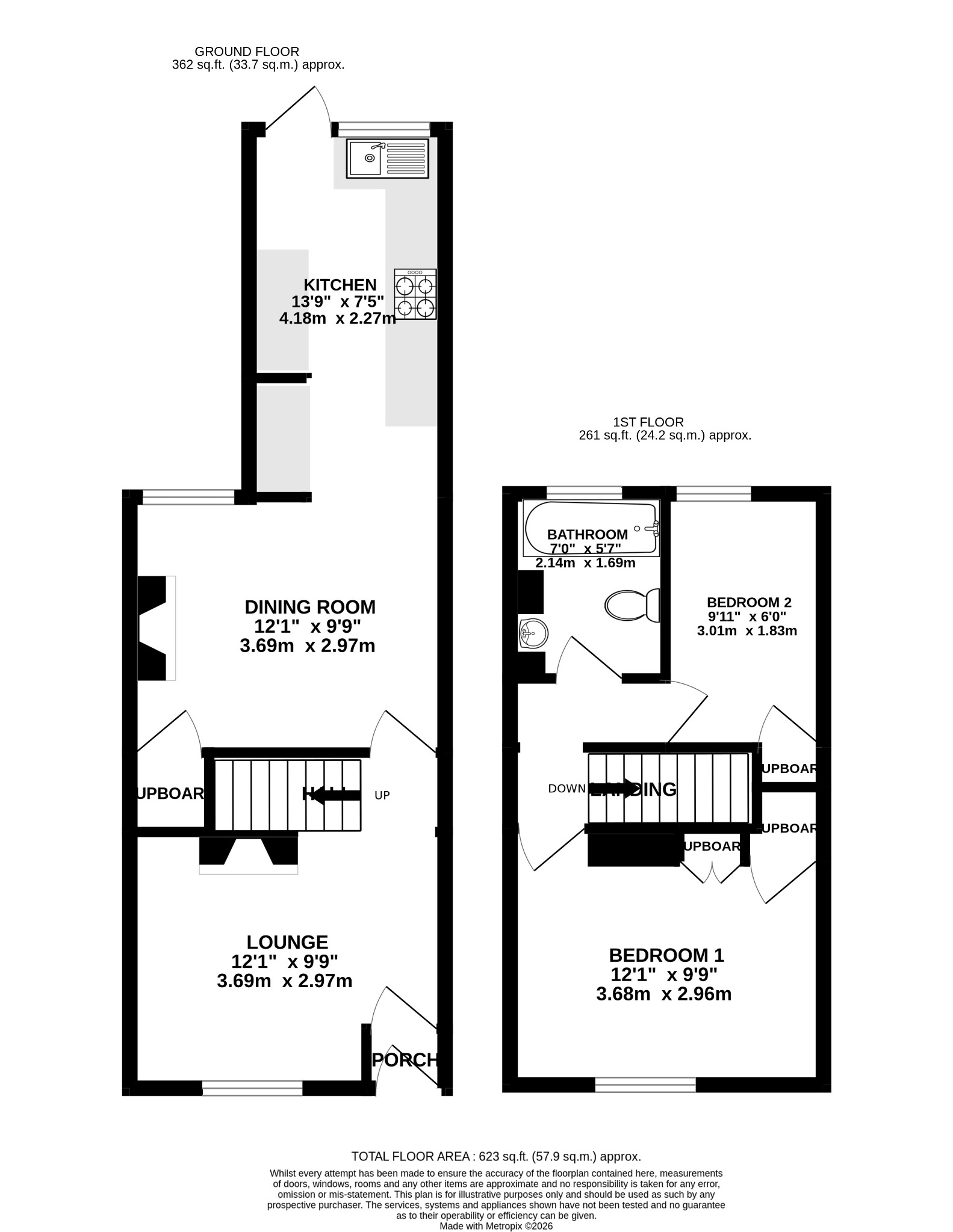
Situated along the ever-popular Adair Road in Southsea, this charming two-bedroom traditional terraced house offers well-balanced accommodation and excellent potential for both first-time buyers and buy-to-let investors. The ground floor comprises a front reception room, providing a comfortable living space, while to the rear there is an open-plan kitchen/dining room with access out to the west-facing rear garden, ideal for enjoying afternoon and evening sun. Upstairs, the property offers two bedrooms and a family bathroom, arranged off the first-floor landing.
Read full description

Properties of interest

northcote road, southsea

3 bedrooms | £290,000

wyndcliffe road, southsea

3 bedrooms | £290,000

st davids road, southsea

2 bedrooms | £285,000

Register with us, we’ll help make sure you don’t miss your dream home.

Save searches and properties, make notes, set up automatic email alerts for new properties.

Register Now

Dear everyone (Steve, Chris, Liam and Anita to name but a few). At last I find a moment to say THANK YOU for helping us to sell our house. All very professional and also personable it was a pleasure to have Pearsons acting for us. We would definitely recommend you to others, but we have no intention of using your services (for a long time at least!!) again. We are now getting plans drawn up for the extension and hope to start work in the summer. We would love to get you back in to value it once we have finished! While you all worked very hard I am grateful for the work and help from Anita, who I can see was "on the case" to get us moving and was also really patient when explaining what was happening or not happening. Thank you again.
Mr and Mrs J T

WHY CHOOSE PEARSONS?

Our Offices


View Office Map

Service | Marketing | Experience

Terms & Conditions | Privacy Policy | Client Money Protection Certificate | Click here for a full list of our lettings fees | Complaints Procedures | Site Map | Website by fruitful studio

©2026 Pearsons | Pearsons Southern Limited is registered in England and Wales. Registered office: Kintyre House, 70 High Street, Fareham, Hants PO16 7BB. Company No. 01517996