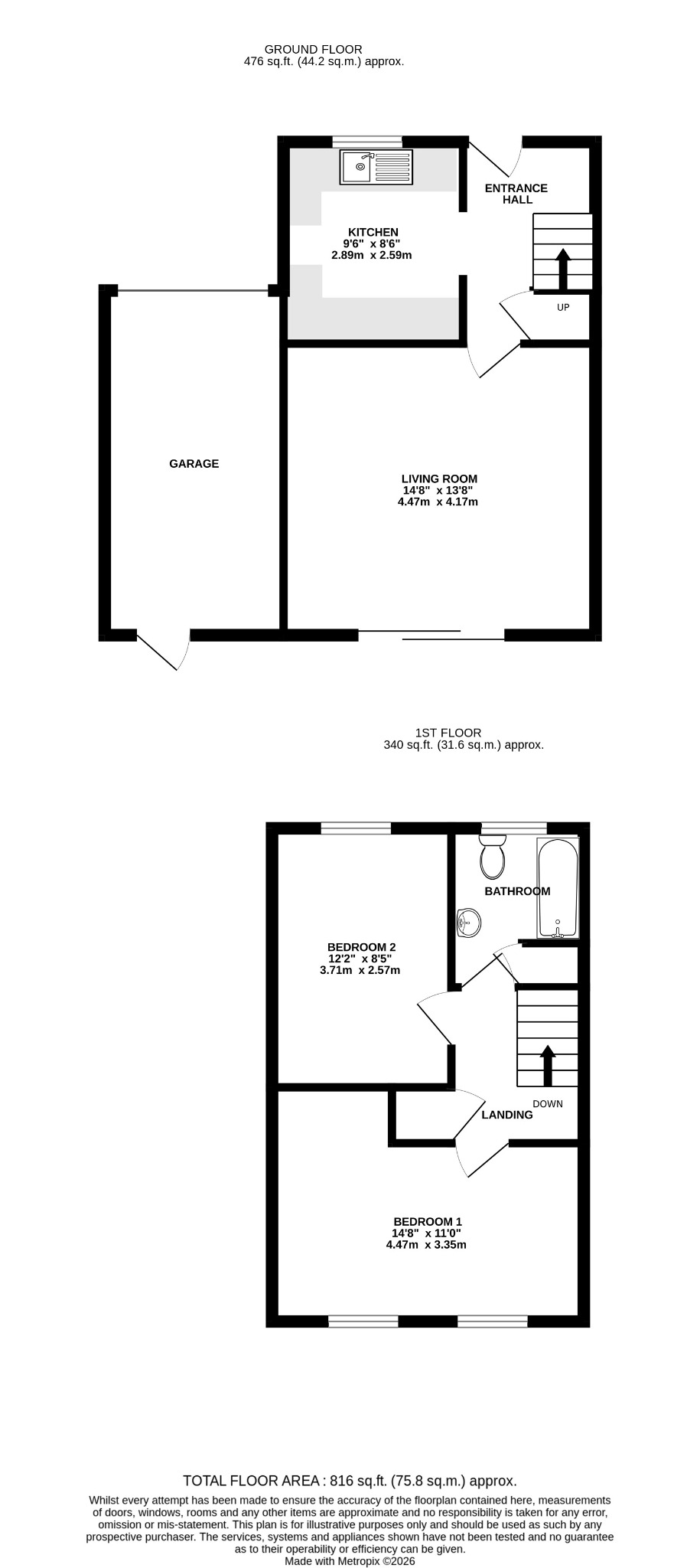
DESCRIPTION A well-presented two bedroom end terraced house located within this popular development just to the east of Fareham town centre, which benefits from two parking spaces and a GARAGE. The property's accommodation briefly comprises; entrance hall, kitchen and a living room overlooking the rear garden. On the first floor, two double bedrooms can be found sharing the re-fitted family bathroom. The property benefits from double glazing and is warmed by gas central heating. Outside, there are two off-road parking spaces, one of which leads to an attached GARAGE with power and light.
The rear garden has been designed with low maintenance in mind. As sole agents we would highly recommend an early inspection.
DOUBLE GLAZED DOOR TO:
ENTRANCE HALL
Stairs to first floor. Radiator. Understairs storage cupboard. Doors to:
KITCHEN
Double glazed window to front elevation. Stainless steel single drainer sink unit with cupboard under. Further range of wall and base level units with roll edge work surfaces over and splashback tiling. Built-in four ring induction hob with cooker hood over and electric oven beneath. Recess for fridge and freezer. Plumbing for washing machine. Radiator. Cupboard housing wall mounted gas boiler. Serving hatch to living room.
LIVING ROOM
Double glazed patio doors to rear garden. Radiator. Area for dining table.
FIRST FLOOR
LANDING
Access to part boarded loft space with pull down ladder. Storage cupboard. Doors to:
BEDROOM ONE
Two double glazed windows to rear elevation. Vertical radiator.
BEDROOM TWO
Double glazed window to front elevation. Radiator.
BATHROOM
Double glazed window to front elevation. Re-fitted bathroom of panel enclosed bath with shower unit over with monsoon shower head and folding shower screen. Wash hand basin with storage beneath. Low level close coupled WC with enclosed cistern. Heated towel rail. Part tiled walls.
OUTSIDE
The property benefits from two parking spaces to the front of the property. One of the parking spaces provides access to:
GARAGE: Accessible via up and over door with power and light and storage space to loft with double glazed door to rear garden.
Patio area adjacent to the property. There is an area of gravel to one side of the garden. The garden is fence enclosed and has gated rear pedestrian access.
COUNCIL TAX
Fareham Borough Council. Tax Band C. Payable 2025/2026. £2,018.27.
Read full description
Show less