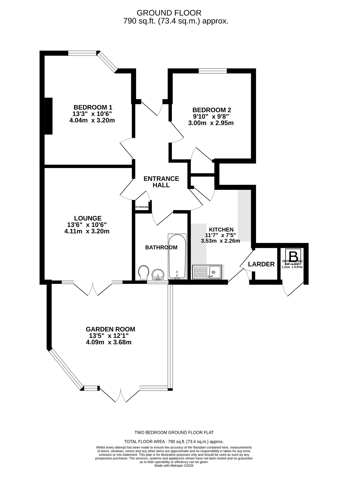
DESCRIPTIONA wonderful opportunity to purchase a two bedroom ground floor flat which not only has a driveway to the front but its own generous rear garden. The property's accommodation briefly comprises; entrance hall, two double bedrooms, bathroom, kitchen and lounge which leads through to a fabulous garden room with insulated roof which leads directly onto the garden. The property benefits from double glazing and is warmed by gas central heating. There is off road parking available to the front of the property and a generous rear garden with outside storage. As sole agents, we would highly recommend an early inspection.
DOUBLE GLAZED DOOR
Leading to:
ENTRANCE HALL
Storage cupboard. Doors to:
BEDROOM ONE
Double glazed bay window to front elevation. Radiator.
BEDROOM TWO
Double glazed window to front and side elevation. Radiator. Storage cupboard.
LOUNGE
French doors with glazed side panels leading to garden room. Radiator.
GARDEN ROOM
Double glazed French doors leading to rear garden and double glazed windows enjoying views of the garden. Radiator. Electric heater. Insulated roof.
BATHROOM
Double glazed window to rear elevation. Panel enclosed bath with mixer taps and shower attachment over with shower screen. Vanity unit with wash hand basin and storage beneath. Low level WC with enclosed cistern. Heated towel rail. Bathroom cabinet. Inset ceiling spotlights. Tiled floor. Extractor fan.
KITCHEN
Double glazed window to rear elevation and double glazed door to garden. Stainless steel single drainer sink unit with cupboard under. Further range of wall and base level units with roll edge work surfaces over and splash back tiling. Plumbing for washing machine. Recess for fridge/freezer. Recess with oven to remain. Large larder cupboard. Inset ceiling spotlights.
OUTSIDE
Off road parking is available for two vehicles to the front of the property.
The rear garden is a particular feature of this property and has a patio area adjacent to the property. The majority of the garden can be found mainly laid to lawn with a corner decking area. There is a brick built garden shed, a large timber shed and a garden store attached to the side of the property where the gas boiler can be found.
LEASE INFORMATION
Remainder of a 125 year lease from 21st January 1985 (84 years remaining).
Maintenance/Service Charge: £627.00 for the period 01/04/2025 to 31/03/2026.
Ground Rent: £10 per annum.
COUNCIL TAX
Fareham Borough Council. Tax Band A. Payable 2026/2027. £1,513.70.
Read full description
Show less