DESCRIPTION GUIDE PRICE £400,000 - £420,000. NO FORWARD CHAIN. This imposing and impressive Grade II listed Georgian building has been sympathetically converted to create just seven apartments located in a gated development within the heart of Fareham town centre. The property is approached through a communal entrance hall which has a sweeping staircase to both floors. A private front door leads to an entrance hall, there is an impressive living room with beamed ceilings and a large bay with three sash windows providing impressive views where Portsdown Hill can be seen in the distance.
There is a modern fitted kitchen/breakfast room, two double bedrooms, an en-suite to the principal bedroom and a family bathroom. The internal accommodation hosts many original features such as sash windows, coving and skirting boards throughout, whilst complimenting a modern finish. The property benefits from two allocated parking spaces and there is a gated entrance to the development, secure entry intercom system and a communal bin store.
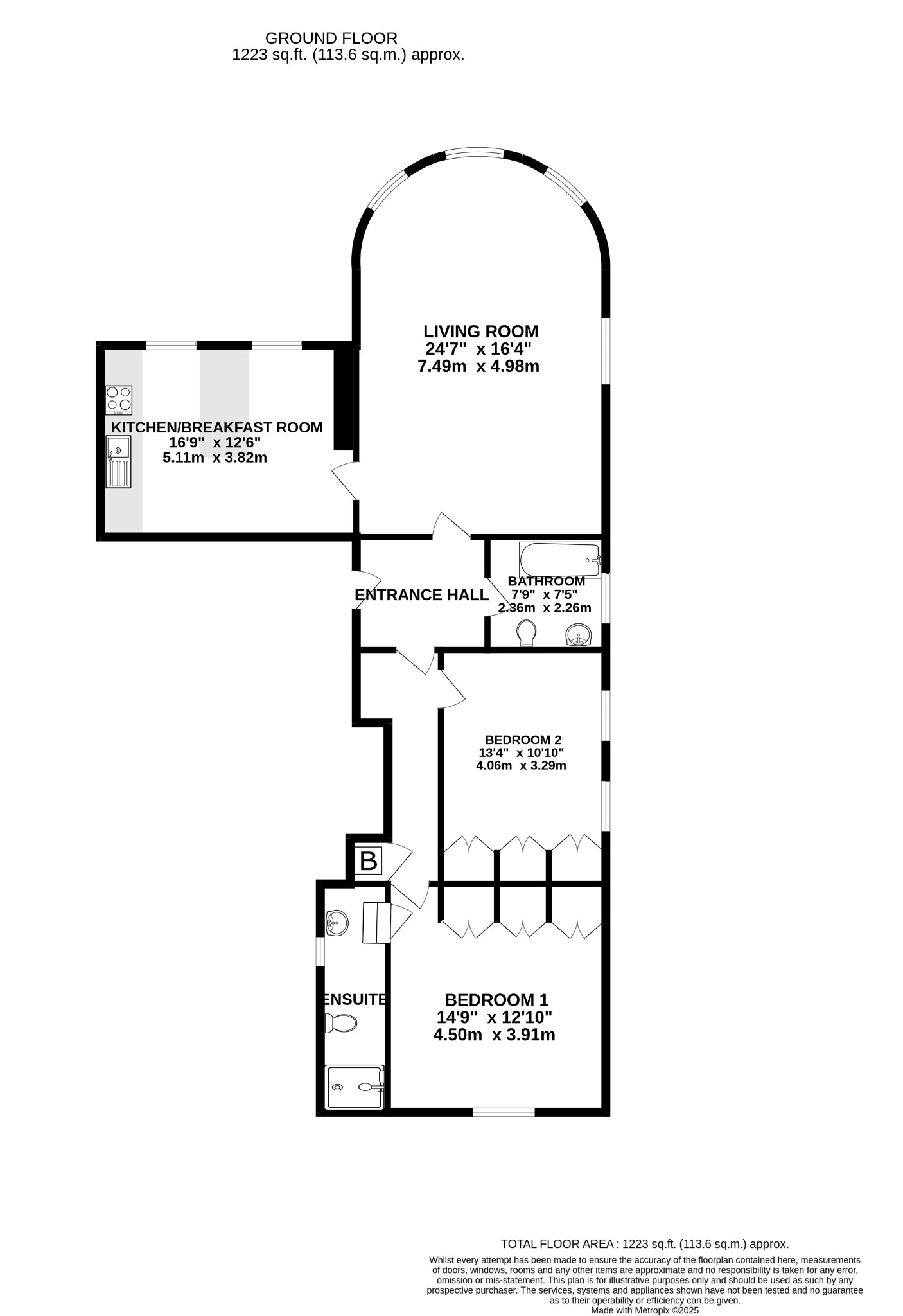
ENTRANCE VIA SECURITY INTERCOM SYSTEM LEADING TO:
COMMUNAL ENTRANCE HALL
With stairs to all floors.
SPACIOUS SECOND FLOOR LANDING
Provides sole access to seven Wykeham Place and has a private front door to:
ENTRANCE HALL
With smooth ceiling and inset ceiling spotlights. Intercom system. Wooden flooring with underfloor heating. Storage cupboard. Doors to:
LIVING ROOM
Large bay window with three sash windows to front aspect and an additional sash window to side elevation. Feature beamed ceiling. Wall lighting. Wooden flooring with underfloor heating. Door to:
KITCHEN/BREAKFAST ROOM
Two sash windows to front elevation. Fitted kitchen comprising; single drainer sink unit set into work surface with a selection of storage cupboards beneath and wall mounted units. Built-in four ring induction hob with pan drawers beneath and cooker hood over. Built-in and concealed dishwasher and washing machine. Built-in fan assisted oven and microwave. Fitted and concealed fridge/freezer. Peninsular work surface with matching units and worktops. Wooden flooring with underfloor heating. Smooth ceiling with inset ceiling spotlights.
BEDROOM ONE
A double bedroom with sash window to rear elevation. Smooth ceiling with inset ceiling spotlights. A range of fitted wardrobes. Underfloor heating. Door to:
EN-SUITE
Two windows to side elevation. Walk-in double shower cubicle with shower screen. Concealed low level WC. Wash hand basin with storage beneath. Heated towel rail.
BEDROOM TWO
Two sash windows to side elevation. Smooth ceiling with inset ceiling spotlights. Range of fitted wardrobes. Underfloor heating.
BATHROOM
Sash window to side elevation. Bath with shower unit over and shower screen. Wash hand basin with storage beneath. Low level WC. Heated towel rail. Underfloor heating.
OUTSIDE
The property benefits from two allocated parking spaces which are clearly marked.
The gated development has secure entry intercom system leading to communal hallway with stairs rising to all floors and communal gardens to the front of the property and a communal bin store.
LEASE INFORMATION
Remainder of 250 year lease from 1st January 2019.
Ground rent: Peppercorn.
Maintenance/service charge: £2,641.33 payable for the period 01/01/2025 - 31/12/2025.
Estate Charge: £721.05 payable for the period 01/01/2025 - 31/12/2025.
COUNCIL TAX
Fareham Borough Council. Tax Band C. Payable 2025/2026. £1,924.04.
Read full description
Show less