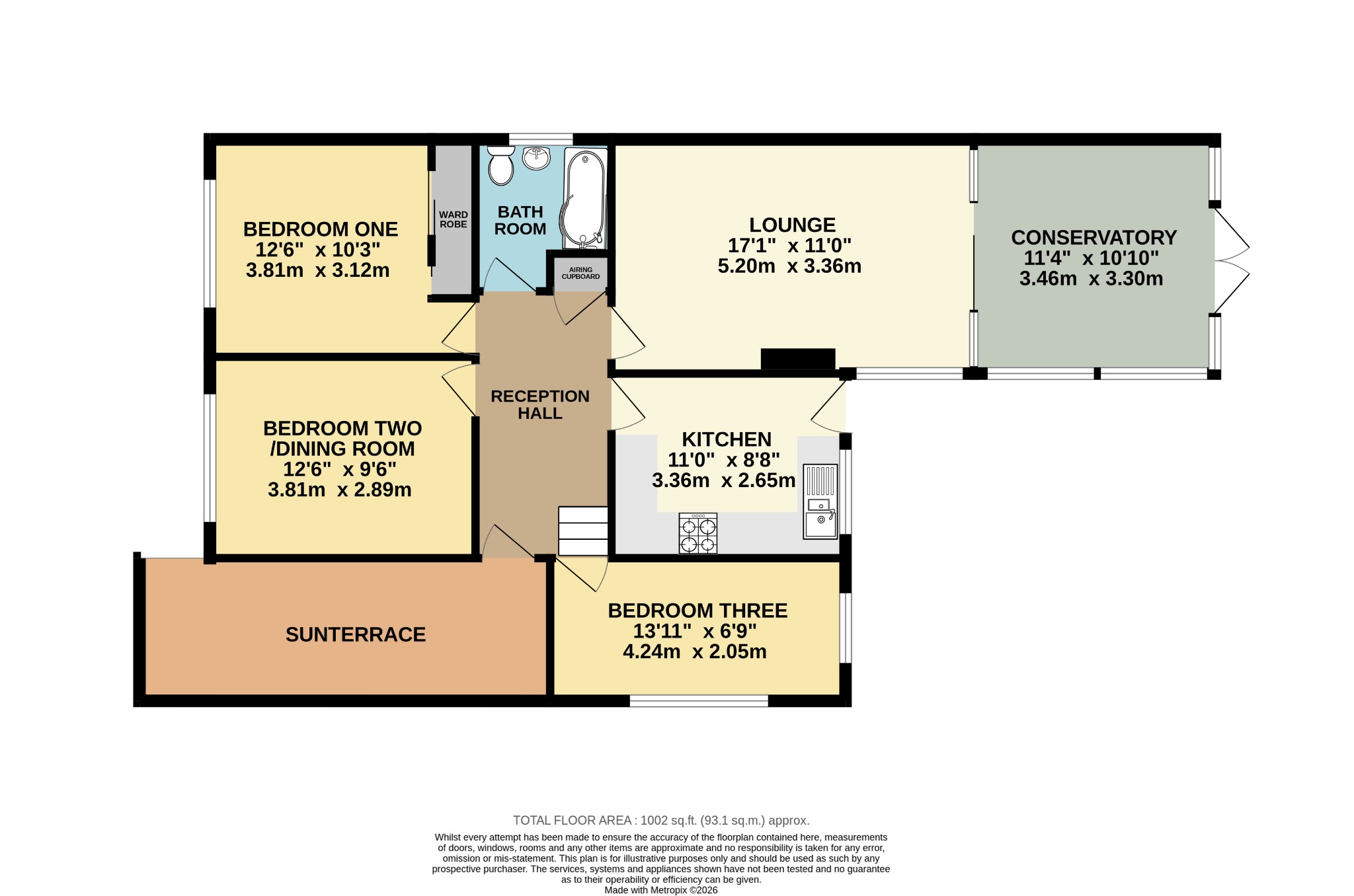
DESCRIPTION:
Extended three bedroom detached bungalow enjoying farmland views from the rear garden, front facing bedrooms and terrace. Offered for sale in excellent decorative order the property is set within a sought after cul de sac location with easy access to Clanfield village centre. Internally the well proportioned accommodation features a welcoming reception hall, southerly aspect twin aspect lounge set around wood burning stove with patio doors opening into conservatory with a vaulted solid roof. A modern kitchen offers built in hob & oven with door to the rear garden.
There are two double bedrooms with viewer, a large single and a luxury refitted bathroom featuring a P shape bath with screen and shower. Outside the rear garden is landscaped with patio, lawn raised borders and seating area with views. A drive with parking leads to the garage housing gas and electric meters.
RECEPTION HALL:
Patterned lead light double glazed door. Radiator. Cupboard housing hot water tank. Inset LED ceiling lights. Loft Access.
LOUNGE:
Double glazed twin aspect room set around chimney breast with wood burning stove. Radiator. Patio door opening to conservatory.
CONSERVATORY:
Brick and double glazed Upvc construction under solid vaulted roof. French style double doors to rear garden. Tile floor. Two wall light points.
KITCHEN:
Range of high gloss finish floor and wall units with contrasting work surfaces and complimentary tiling to walls. Inset sink unit. Built in hob with oven below and extractor hood over. Plumbing for automatic washing machine. Fitted gate leg folding breakfast table. Space up right fridge /freezer. Wall mounted Worcester gas fired boiler. Double glazed window and door to rear garden.
BATHROOM:
Luxury suite comprising 'P' shape bath with glazed screen and independent shower over. Wash basin with vanity cupboards below. Close couple W.C. Ladder style radiator. Obscure double glazed window/.Part tile walls. Tile floor.
BEDROOM ONE:
Fitted mirror fronted wardrobes. Radiator. Double glazed window to front with views.
BEDROOM TWO/DINING ROOM:
Radiator. Double glazed window to front with views.
BEDROOM THREE:
Radiator. Double glazed window to rear. Eye level window to side.
REAR GARDEN:
Fully enclosed landscaped garden to rear with patio central lawn, various mature flower and shrub borders. Raised seating area with farmland views. Garden shed. Gated side path to front.
FRONT GARDEN:
Various mature flower and shrub. Front terrace seating area with farmland views.
GARAGE:
Power, light. Gas and electric meters.
COUNCIL TAX
East Hampshire district council tax band D £2,224.19 p.a. 2025/2026
Read full description
Show less