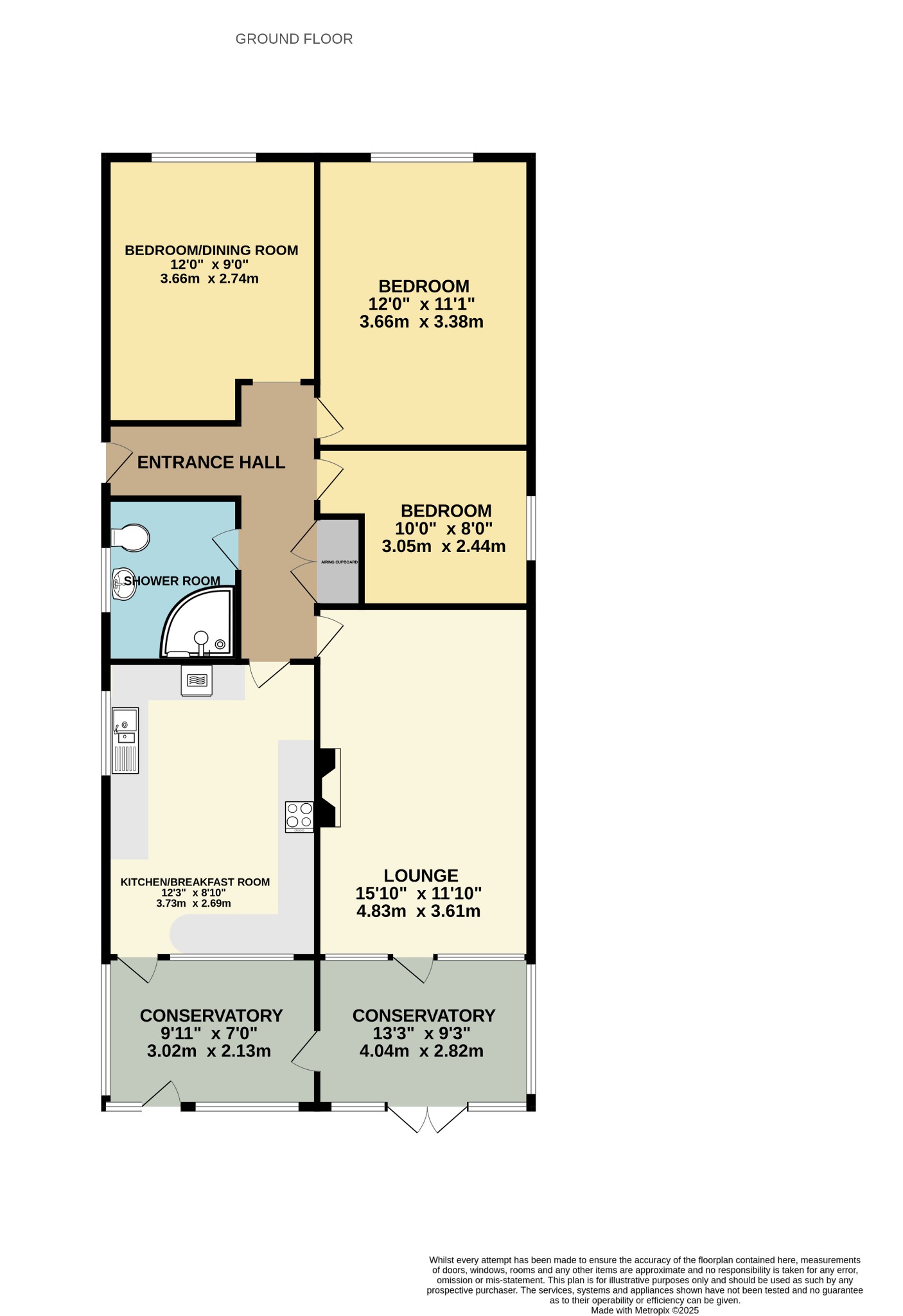
Description:
Extended three bedroom detached bungalow in this sought after location offering easy access to excellent daily shopping in Clanfield village centre, local schools and connection to A3 (M). Internally, the property offers flexible well proportioned accommodation featuring a spacious reception hall, lounge, summer room, fitted kitchen with integrated appliances, conservatory, refitted shower room and master bedroom with fitted wardrobes. The property also benefits from gas fired central heating and double glazing. Outside, the rear garden is a good size, fully enclosed with mature flower and shrub borders.
To the front is a drive with parking leading to an attached garage to the side.
RECEPTION HALL:
Laminate floor. Cloak cupboard. Linen cupboard with control panel for solar panel hot water. Radiator. Gas and electric meter cupboards. Access to loft space. Radiator.
LOUNGE:
Set around chimney breast with feature fireplace and surround. Double glazed window and door to summer room. Radiator.
SUMMER ROOM:
Of brick and Upvc double glazed construction. Double glazed Upvc windows and door to rear garden. Door to conservatory.
KITCHEN:
Excellent range of fitted floor and wall units with contrasting work surfaces and complimentary tiling to walls. Inset sink unit. Plumbing for automatic washing machine. Built in hob with extractor hood over. Eye level double oven. Integrated fridge and freezer. Breakfast bar. Wall mounted gas fired boiler. Upvc double glazed window to side. Tile floor. Upvc double glazed window and door to conservatory. Radiator.
CONSERVATORY:
Of brick and Upvc double glazed construction. Double glazed windows and door to rear garden.
BEDROOM ONE:
Fitted his and hers bedside wardrobes. Additional fitted double wardrobe. Upvc double glazed window to front. Radiator.
BEDROOM TWO:
Upvc double glazed window to front. Radiator.
BEDROOM THREE:
Upvc double glazed window to side. Radiator.
SHOWER ROOM:
Mostly tiled with step in corner shower. Close couple WC. Wash basin with vanity cupboard below. Tile floor. Ladder style radiator. Obscure Upvc double glazed window to side.
GARAGE:
Power and light. Metal up and over door.
FRONT GARDEN:
Laid to lawn with flower and shrub borders. Side access to rear garden.
REAR GARDEN:
Fully enclosed. Patio area, laid to lawn with well stocked flower and shrub borders. Green house, garden shed
COUNCIL TAX
East Hamsphire District Council Tax Band D £2,224.19 p.a. 2025/2026
Read full description
Show less