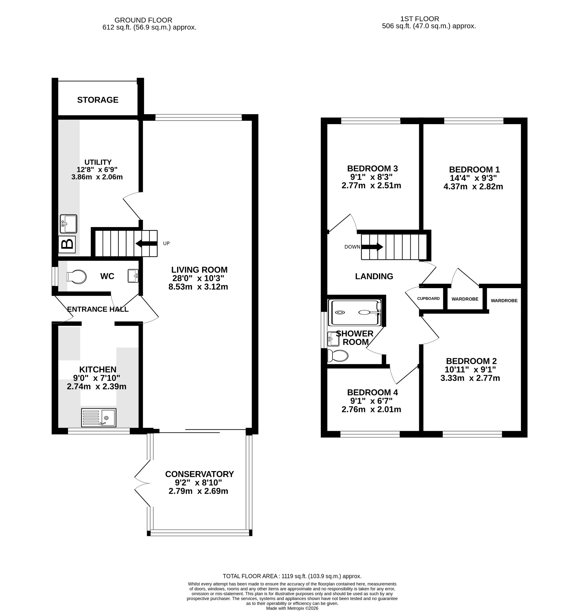
DESCRIPTION This well-presented four bedroom semi-detached house is located in a popular cul de sac to the west of Fareham town centre. The internal accommodation comprises; entrance hall, cloakroom, kitchen, 28' dual aspect living room, 12' utility and a conservatory with French doors onto the rear garden. To the first floor, there are four bedrooms and a modern fitted shower room. Outside, there is driveway parking, storage (formerly the garage) and an enclosed rear garden. Viewing is highly recommended by the sole agents.
ENTRANCE HALL Double glazed UPVC front door. Smooth ceiling with inset spotlighting.
Wooden flooring.
CLOAKROOM
Double glazed window to the side aspect. Concealed low level WC. Wash hand basin. Heated towel rail. Tiled flooring.
KITCHEN
Double glazed window to the rear aspect. Smooth ceiling. Matching wall and base units with contrasting worktops. Inset stainless steel sink and half drainer. Space for cooker, fridge/freezer, dishwasher and additional fridge or freezer. Tiled splashback. Tiled flooring.
LIVING ROOM
Dual aspect with double glazed window to the front aspect and double glazed patio doors leading to the conservatory. Smooth ceiling. Staircase rising to the first floor with glass balustrade. Modern tall radiator and additional radiator. Wooden flooring.
CONSERVATORY
Double glazed French doors leading to the rear garden. Double glazed windows to the rear and side aspect. Tile effect laminate flooring.
UTILITY
Smooth ceiling. Wall mounted 'Worcester' boiler. Low level units with contrasting worktops and inset stainless steel sink. Space for washing machine, tumble dryer and fridge or freezer. Wood effect laminate flooring.
FIRST FLOOR
LANDING
Loft access. Storage cupboard. Doors to:
BEDROOM ONE
Double glazed window to the front aspect. Radiator. Built-in wardrobe.
BEDROOM TWO
Double glazed window to the rear aspect. Smooth and coved ceiling. Radiator. Built-in open wardrobe.
BEDROOM THREE
Double glazed window to the front aspect. Smooth ceiling with inset spotlighting. Radiator.
BEDROOM FOUR
Double glazed window to the rear aspect. Smooth ceiling. Radiator. Tile effect vinyl flooring.
SHOWER ROOM
Double glazed window to the side aspect. Smooth ceiling with inset spotlighting. Extractor fan. Modern suite comprising; large walk-in shower area. Wash hand basin with storage beneath. Low level WC. Tall modern radiator. Tiled walls. Luxury vinyl tiled flooring.
OUTSIDE
To the front of the property, there is double width driveway parking. Side gated pedestrian access leading to the open covered porch and front door. Further gate leading to the rear garden.
STORAGE (FORMERLY THE GARAGE): Up and over door.
The enclosed westerly facing rear garden has an initial patio area with an outside tap. Raised decked areas and artificial turf. Gated pedestrian access to the side of the property, which leads down to the front of the property.
COUNCIL TAX
Fareham Borough Council. Tax Band D. Payable 2025/2026. £2,164.55.
Read full description
Show less