DRAFT DETAILS AWAITING VENDOR APPROVAL
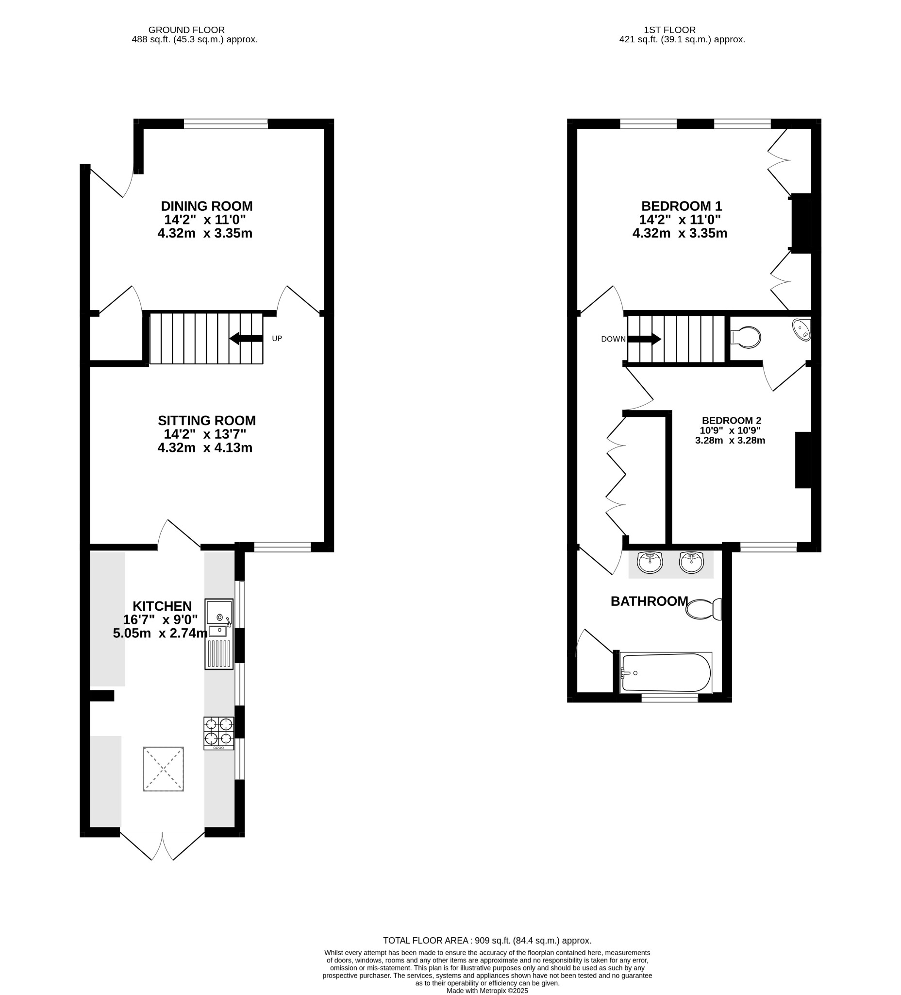
DESCRIPTIONA delightful two bedroom characterful cottage located within the popular area of Swanwick close to the River Hamble and Marina and within close proximity to NATS Air Traffic Control. The property's accommodation briefly comprises; dining room, separate sitting room with feature fireplace with multi-fuel stove, 16' kitchen/breakfast room with part-vaulted ceilings. On the first floor, the landing has hidden built-in wardrobes, and leads to two double bedrooms. Bedroom two has an en-suite WC and there is also a three piece bathroom.
The property benefits from double glazing and is warmed by gas central heating. There are attractive front and rear gardens. The property also benefits from a GARAGE and parking for two vehicles which is accessed from Coal Park Lane. As sole agents we would highly recommend an early inspection.
RECESSED ENTRANCE PORCH
With part glazed door to:
DINING ROOM
Double glazed window to front elevation. Feature fireplace with wooden mantel and surrounds. Radiator. Exposed and painted floorboards. Understairs storage cupboard. Shelving built-into chimney breast recess. Door to:
SITTING ROOM
Stairs to first floor. Double glazed window to rear elevation. Chimney breast with multi-fuel stove sat on a brick hearth. Shelving. Picture rail. Column and vertical radiators. Door to:
KITCHEN
Three double glazed windows to side elevation. Double glazed 'Velux' window and double glazed French doors leading to garden. The kitchen has a comprehensive range of base level units with solid wood work surfaces over with inset one and a half bowl sink unit. Built-in five ring gas burner with cooker hood over. Built-in steam oven and microwave. Recess for fridge/freezer. Plumbing for washing machine. Pull-out larder cupboard with two further larder cupboards. Inset ceiling spotlights. Fitted wine fridge. Wooden flooring.
FIRST FLOOR
LANDING
Access to loft space with pull-down ladder. Two built-in double wardrobes. Radiator. Doors to:
BEDROOM ONE
Two double glazed windows to front elevation. Chimney breast with feature cast iron fireplace. Two wardrobes with chests of drawers built-into chimney breast recess. Radiator. Dado rail.
BEDROOM TWO
Double glazed window to rear elevation. Chimney breast with cast iron fireplace. Radiator. Door to:
WC
Low level close coupled WC. Corner wash hand basin. Splash back tiling. Extractor fan.
BATHROOM
Double glazed window to rear elevation. Panel enclosed bath with shower unit over with monsoon shower head. Low level WC. Vanity unit with twin sink units with storage beneath. Airing cupboard housing gas boiler and shelving. Part tiled walls. Radiator.
OUTSIDE
The attractive rear garden has a patio area adjacent to the house. A brick path leads down the garden with well-kept lawns to either side and flower and shrub borders. The path leads to a further patio area and log store. That path continues past the GARAGE and has gated rear pedestrian access which leads to a parking area suitable for two vehicles.
COUNCIL TAX
Fareham Borough Council. Tax Band C. Payable 2025/2026. £1,924.04.
Read full description
Show less