Offered in excellent decorative order, this beautifully presented three-bedroom terraced home enjoys an allocated off-road parking space, modern interior and a westerly aspect rear garden. The ground floor features a bright entrance hall with tiled flooring leading to a contemporary fitted kitchen with gloss-fronted units and marble-effect work surfaces. To the rear, the spacious lounge offers a comfortable living space with doors opening into the conservatory, which provides an excellent additional reception area overlooking the garden.
Upstairs, there are three bedrooms together with a modern family bathroom fitted with a bath and an enclosed shower cubicle. Outside, the rear garden is neatly enclosed with fencing, laid to artificial lawn for easy maintenance, and includes a patio area ideal for outdoor seating and entertaining. An early inspection is recommended to avoid disappointment.
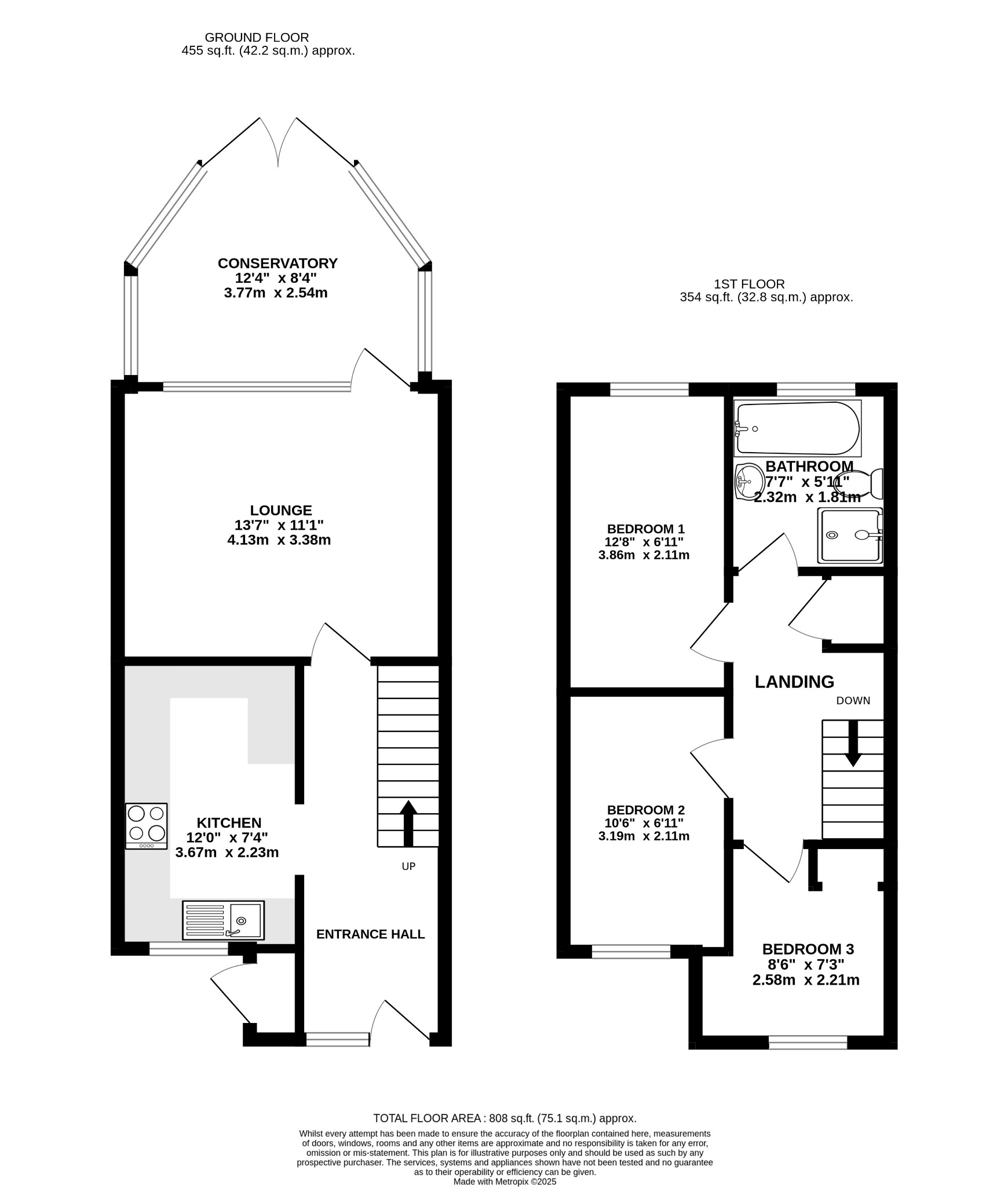
ENTRANCE HALL
Textured ceiling, coving, coat hooks, UPVC entrance door with obscure glazed panel and matching side window, radiator, stairs rising to first floor, under stairs storage and tiled flooring.
KITCHEN
Textured ceiling, UPVC double-glazed ceiling, a range of wall and base-mounted units with work surfaces over, inset stainless steel sink and drainer, tiled splash back, cooker with extractor fan over, space for appliances and tiled flooring.
LOUNGE
Smooth ceiling, coving, shelving, door and window to conservatory, vertical radiator and tiled flooring.
CONSERVATORY
Glass roof, windows and doors, radiator and wood effect flooring
LANDING
Textured ceiling, coving, loft hatch access, storage cupboard and laminate flooring.
BEDROOM ONE
Textured ceiling, coving, UPVC double-glazed window, radiator and laminate flooring.
BEDROOM TWO
Textured ceiling, coving, UPVC double-glazed window, radiator and laminate flooring.
BEDROOM THREE
Textured ceiling, coving, UPVC double-glazed window, radiator and laminate flooring.
BATHROOM
Textured ceiling, coving, extractor fan, UPVC double-glazed window, bath with mixer tap and shower attachment, tiled splash back, enclosed shower cubicle, wash hand basin, tiled flooring.
OUTSIDE
Outside, the rear garden is neatly enclosed with fencing, laid to artificial lawn for easy maintenance, and includes a patio area ideal for outdoor seating and entertaining.
COUNCIL TAX
Portsmouth City Council TAX BAND C £1,938.59 for the year 2025/2026.
Read full description
Show less