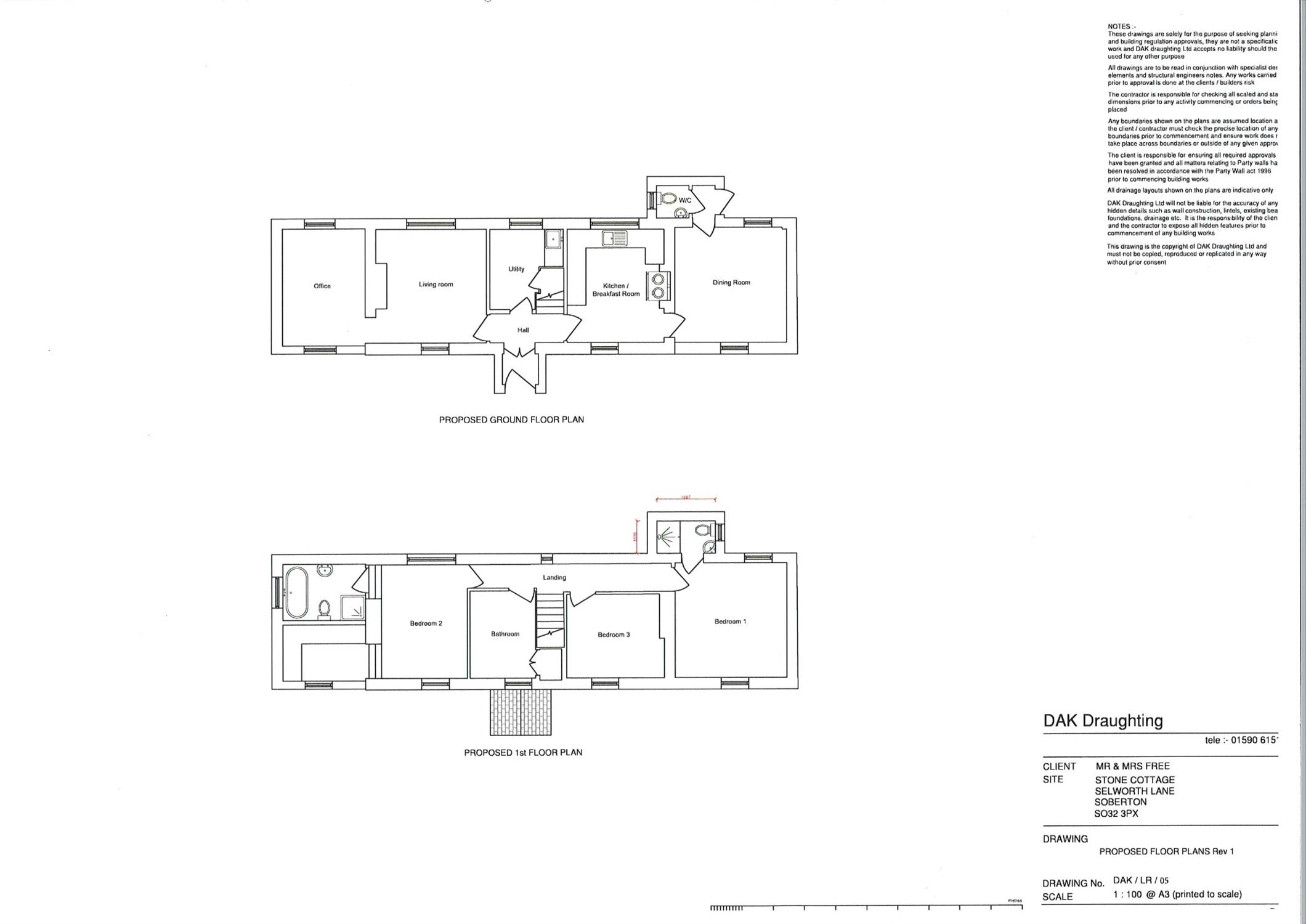
Fabulous and spacious detached period cottage, lying in a great rural village location in the heart of the Meon Valley Countryside. The property has the benefit of planning permission to extend, offering great potential for further development and enhancement should it be required. Inside, the cottage is beautifully and stylishly presented and an early internal viewing is highly recommended. The accommodation in brief comprises: Entrance porch and hallway, a country style cottage kitchen with Esse range cooker, utility room and cloakroom.
There is a spacious reception room, perfect for use as a dining room and a cosy, stylish sitting room with fireplace and wood burning stove. Study. Upstairs there are three good sized bedrooms with a superbly refitted period style bathroom. Outside, there are pretty cottage style gardens to the front and side and a driveway providing off road parking, along with a detached garage.
AGENTS NOTE: Planning permission has recently been granted for FIRST FLOOR EXTENSIONS, OVER THE EXISTING SINGLE STOREY EXTENSION OF THE NORTH & EAST ELEVATIONS, & REPLACEMENT OF EXISTING GARAGE WITH A TIMBER FRAME GARAGE. Planning Ref: 23/01774/HOU
ENTRANCE PORCH:
Quarry tiled floor and front door leading to:
ENTRANCE HALL:
Quarry tiled floor, doors to kitchen, utility room and sitting room.
KITCHEN:
Lovely country style kitchen, fitted with a range of base cupboard, drawer and wall units. Butler sink with mixer tap over. Esse oil fired range cooker, with tiled recess splashback and canopy over. Quarry tiled floor. Windows to the front and rear aspect. Wall light point. Oil fired boiler. Door leading to the dining room.
UTILITY/BOOT ROOM :
Quarry tiled floor and window to the rear aspect. Built-in cloaks/storage cupboard. Butler sink with mixer tap over. Space for washing machine. Period style radiator.
REAR HALL:
Door to the dining room. Door to the rear garden and door to:
CLOAKROOM :
Low level WC and wash hand basin. Window to the rear aspect. Period style radiator.
SITTING ROOM :
Delightful cosy sitting room with oak flooring and attractive fireplace with wood burning stove. Windows to the front and rear aspects. Wall light point. Period style radiator.
STUDY:
Window to the front aspect. Oak flooring. Period style radiator. Built in shelving.
FIRST FLOOR LANDING:
Window to the rear aspect, overlooking the field to the rear.
BEDROOM ONE:
Window to the front aspect. Period style radiator. Access to loft space.
BEDROOM TWO:
Window to the front aspect. Exposed flooring. Decorative bedroom fireplace.
BEDROOM THREE:
Window to the front aspect. Period style radiator.
BATHROOM:
Beautifully refitted in a Period style with an attractive claw foot style bath with a rainfall style shower over. Pedestal basin and WC. Tilling. Period style radiator. Window to the front aspect.
OUTSIDE:
The property is approached via a gravel driveway which provides tandem off road parking and leads to the DETACHED GARAGE (Measuring approximately 14'4" x 14'3"). The pretty cottage gardens are mainly laid to lawn with mature tree, shrub and hedge frontage and extend to the front and side. There is a pathway to the rear of the property.
COUNCIL TAX: BAND F (WINCHESTER) Charge payable for 2023/2024 is £2,880.13
Read full description
Show less