Located on a quiet residential street in the Shirley district and benefiting from a southerly aspect to the rear this period terraced property is offered for sale in first class decorative order throughout. The property offers spacious, well planned accommodation over two floors which comprises of entrance hall, bay fronted sitting/dining room, fitted kitchen and cloakroom on the ground floor. To the first floor there are three well proportioned bedrooms and the family bathroom. The property also benefits from double glazing and gas central heating.
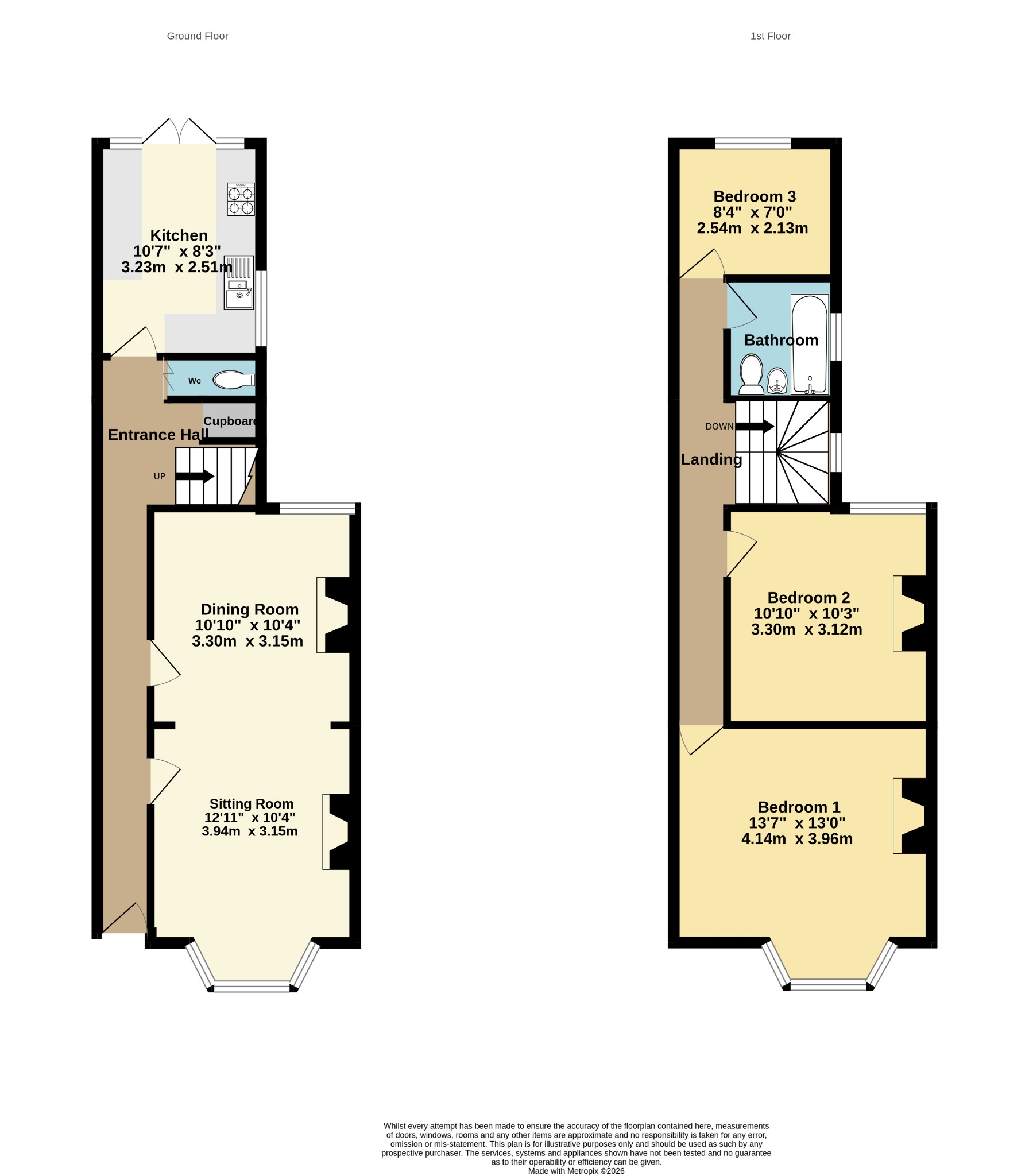
ENTRANCE HALLPeriod coving to smooth ceiling. Period archway. Radiator.
Stripped wood flooring. Stairs to first floor. Understairs storage cupboard. Doors to all rooms.
SITTING ROOM 12' 11" (3.94m) x 10' 4" (3.15m):
Double glazed bay window to front aspect. Period plaster coving to smooth ceiling. Picture rail. Wood burner. Radiator. Stripped wood flooring.
DINING ROOM 10' 10" (3.30m) x 10' 4" (3.15m):
Double glazed window to rear aspect. Coving to smooth ceiling. Picture rail. Radiator. Feature fireplace. Stripped wood flooring.
CLOAKROOM
Smooth ceiling with inset spotlights. Extractor. Low level flush w.c. and wash basin with mixer tap. Tiled flooring.
KITCHEN 10' 7" (3.23m) x 8' 3 (2.51m):
Double glazed windows to side and rear aspects. Smooth ceiling with inset spotlights. Single drainer one and a half bowl sink unit with mixer tap and cupboard under. Range of matching eye level and base mounted units with roll top work surface over. Built-in oven with fitted four ring electric hob and extractor over. Space and plumbing for washing machine. Space for dishwasher and space for fridge/freezer. Part tiled walls. Wall mounted combination boiler. Tiled flooring. Double glazed French doors to rear garden.
FIRST FLOOR LANDING
Double glazed window to side aspect. Smooth ceiling. Loft hatch to partly boarded loft. Doors to all rooms.
BEDROOM ONE 13' (3.96m) x 13' 7" (4.14m):
Double glazed bay window to front aspect. Smooth ceiling. Radiator. Stripped wood flooring.
BEDROOM TWO 10' 10" (3.30m) x 10' 3" (3.12m):
Double glazed window to rear aspect. Smooth ceiling. Fitted wardrobe. Radiator. Stripped wood flooring.
BEDROOM THREE 8' 4" (2.54m x 7' (2.1m):
Double glazed window to rear aspect. Smooth ceiling. Radiator. Stripped wood flooring.
BATHROOM
Double glazed obscure glass window to side aspect. Smooth ceiling. P-shaped bath with mixer tap and shower over, vanity wash basin with mixer tap and cupboard under and concealed cistern w.c. Extractor. Heated towel rail. Part tiled walls. Tiled flooring.
OUTSIDE
The front garden is enclosed by a low brick wall and hedgerow with paved pathway to main entrance door and crazy paved hardstanding with flower borders.
The rear garden is fully enclosed with a south westerly aspect. Paved patio seating area and well stocked flower and shrub borders. Garden shed. Vegetable plot. Lawned area. There is gated pedestrian access to a passageway at the rear of the property.
COUNCIL TAX
Southampton City Council
BAND: B
CHARGE: £1,762.79
YEAR: 2025/2026
Read full description
Show less