Overlooking the leafy expanse of the local park, this substantial five-bedroom semi-detached period home on Shirley Road offers a rare opportunity to secure a character property in one of Southsea’s most desirable locations. Blending elegant period features with contemporary updates, the house has already benefitted from a newly fitted kitchen and a stylish new family bathroom.
The current owners began a thoughtful programme of renovation and modernisation, but a change in personal circumstances means the property is now offered for sale mid-renovation - presenting an ideal opportunity for buyers keen to complete the works and add their own style and value. The generous accommodation is arranged over three floors, with bright, spacious rooms, high ceilings, and many original features retained. The front aspect enjoys open park views, while the rear garden offers a private outdoor space perfect for family life or entertaining. Conveniently located within easy reach of local schools, shops, and transport links, this property combines the charm of a period home with the potential to create a truly stunning residence tailored to your taste.
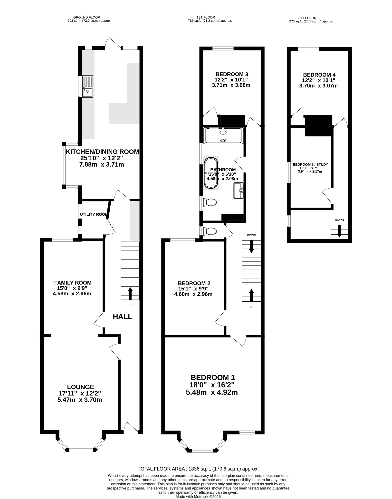
ENTRANCE HALL:
Ornate cornicing, stairs to first floor, understairs storage cupboard, original display and storage cabinet, laminate flooring.
LOUNGE:
Picture rails, double glazed bay windows, fireplace, two radiators, laminate flooring, opening to:
FAMILY ROOM:
Ornate cornicing, picture rails, double glazed window, fire place, radiator, laminate flooring.
UTILITY:
Undecorated room, intended as a utility. Two windows.
KITCHEN / DINING ROOM:
Double glazed bay windows to side aspect, double glazed door to rear garden, double glazed windows to rear and side aspects, range of wall and base mounted units with worksurfaces over and upstands, sink and drainer unit with mixer tap over, integrated fridge, integrated freezer, space for appliances, vinyl flooring.
FIRST FLOOR LANDING:
Split level landing, radiator, stairs to second floor, exposed floorboards.
BEDROOM 1:
Picture rails, double glazed bay windows, double glazed window, radiator, fireplace, exposed floorboards.
BEDROOM 2:
Double glazed window, fireplace, radiator, fitted carpet.
BEDROOM 3:
Undecorated room, double glazed window, exposed floorboards.
BATHROOM:
Inset spotlights, two double glazed obscured windows, panelled bath with side taps, walk in shower enclosure, wash hand basin with cupboards beneath, low level WC, tall column radiator, ladder radiator, part tiled walls, vinyl tile floor.
WC:
Double glazed obscured window, low level WC.
SECOND FLOOR LANDING:
Door access to loft, double glazed side aspect window, exposed floorboards.
BEDROOM 4:
Undecorated room, double glazed window, radiator, fireplace, exposed floorboards.
BEDROOM 5 / STUDY:
Double glazed window, radiator, laminate flooring.
OUTSIDE:
Front - Deep frontage with mature planting.
Rear - Side pedestrian access, walled west-facing garden, mostly laid to patio with mature planted borders.
COUNCIL TAX
Portsmouth City Council TAX BAND E £2,665.57 for the year 2025/2026.
Read full description
Show less