A modern and well presented three bedroom semi-detached house, located in the sought after location of Serpentine Road, Fareham.
The property comprises:
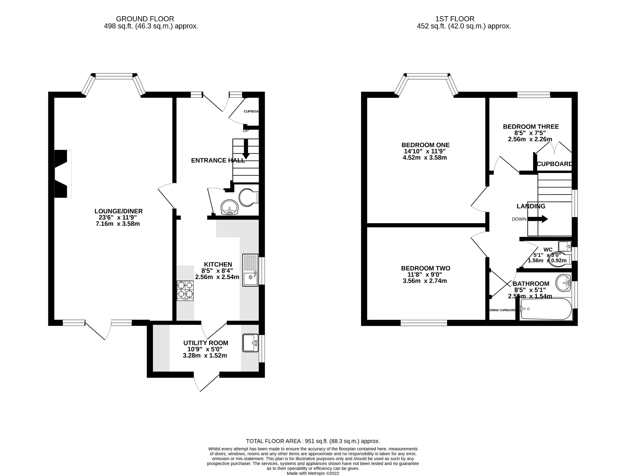
ENTRANCE HALL
CLOAKROOM - With sink, toilet and extractor fan
LOUNGE/DINER - Open plan reception room with double glazed bay window to front elevation, gas fire and single door to the garden
KITCHEN - Modern fitted kitchen with oven, electric hob, cooker hood and integrated dishwasher. With stable door leading to utility room.
UTILITY ROOM - Double glazed window to side elevation and double glazed door to garden.
Fitted butler sink set into work surface with plumbing for washing machine under. Further workspace with wall and base level units with plumbing for washing machine and space for fridge.
STAIRS TO FIRST FLOOR
BEDROOM ONE - Doubleroom with double glazed bay window to front elevation
BEDROOM TWO - Double room with double glazed window to rear elevation
BEDROOM THREE - Single room with built in storage and double glazed window to front elevation
BATHROOM - Shower over bath, sink with storage underneath, heated towel rail, airing cupboard, extractor fan and double glazed window to side elevation
WC - Toilet, sink and double glazed window to side elevation
OUTSIDE - Driveway, detached garage, garden which is mainly laid to lawn with patio areas and log cabin
DEPOSIT: £1,817.00 (To be held under the TDS).
EPC: C
COUNCIL TAX: Fareham Borough Council - Band: C
WEEKLY PRICE: £363.46
BROADBAND: Current provider... Unknown. Available @15MBPS (Faster services possibly available), it is recommended that anyone willing to occupy the property makes their own enquires in relation to the service providers- information provided OfCom
TV AERIAL AVAILABLE
MOBILE SIGNAL: Listed as likely available by OfCom
UTILITIES: Mains supplied
MINIMUM TERM: TWELVE MONTHS
ONE SMALL PET CONSIDERED
A holding deposit of one week’s rent will be required to secure the property. This fee is payable at the time of application for the tenancy and will be held for up to 15 calendar days whilst reference checks and preparation for the tenancy agreement are undertaken.
The holding deposit can be retained should the applicant fail the Right to Rent check, provide false or misleading information that would affect the Landlord’s decision to grant the tenancy, the applicant withdraws from the tenancy, or the applicant fails to take all reasonable steps to enter into a tenancy agreement.
In Tenancy Penalty Fees apply, see website for details.
Read full description
Show less