This spacious 4 bedroom detached new build family home is situated in a sought after location in Dibden Purlieu. The property benefits from UPVC double glazing, underfloor heating throughout, enclosed garden and parking for 3 cars. Offered with NO CHAIN. An internal viewing is recommended.
Composite front door into:
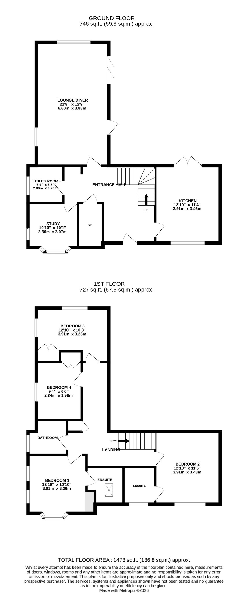
ENTRANCE HALLStairs to first floor.
LOUNGE/DINER21' 8" (6.60m) x 12' 9" (3.89m)
Windows to side and rear. Underfloor heating. Bi-fold doors to garden.
KITCHEN/BREAKFAST ROOM12' 10" (3.91m) x 11' 4" (3.45m)
Window to front.
Range of contemporary wall and base units with work surfaces over. One and a half bowl stainless steel sink unit with mixer tap. Integrated appliances. Underfloor heating. Bi-fold doors to garden.
UTILITY ROOM
6' 9" (2.06m) x 5' 8" (1.73m):
Window to side. Matching wall and base units. One and a half bowl stainless steel sink unit with mixer tap. Space and plumbing for washing machine and tumble dryer. Underfloor heating.
WC
Low Level WC. Wash hand basin. Underfloor heating.
STUDY
10' 10" (3.30m) x 10' 1" (3.07m)
Windows to front and side. Underfloor heating.
LANDING
BEDROOM 1
12' 10" (3.91m) x 10' 10" (3.30m):
Windows to front and side. Built in wardrobes. Underfloor heating. Door into:
ENSUITE
Low level WC with concealed flush. Inset wash hand basin with cupboard below. Corner shower unit with glazed screen. Velux window. Underfloor heating.
BEDROOM 2
12' 10" (3.91m) x 11' 5" (3.48m)
Window to front. Underfloor heating. Door into:
ENSUITE
Window to front. Low level WC with concealed flush. Inset wash hand basin with cupboard below. Corner shower unit. Underfloor heating.
BEDROOM 3
12' 10" (3.91m) x 10' 8" (3.25m)
Windows to side and rear. Underfloor heating.
BEDROOM 4
9' 4" (2.84m) x 6' 6" (1.98m)
Window to side. Underfloor heating.
FAMILY BATHROOM
Window to side. Low level WC with concealed flush. Panelled bath with rainshower shower over and glazed screen. Inset wash hand basin with cupboard below. Complementary tiling. Underfloor heating.
OUTSIDE
The front garden is laid to lawn with range style fencing to boundary.
CAR PORT
Brick pavia driveway with car port.
REAR GARDEN
Fenced to boundaries. Laid to lawn. Paved patio. Pedestrian side access gate.
COUNCIL TAX
New Forest District Council, Band F, Charge Payable £3381.92 p.a. 2025/2026
Read full description
Show less