Let Agreed

reginald road, southsea unfurnished

2 bedrooms | £1,250 pcm | LET AGREED

Available from: 6 April, 2026

Call the Southsea Lettings office

023 9229 7878

Print
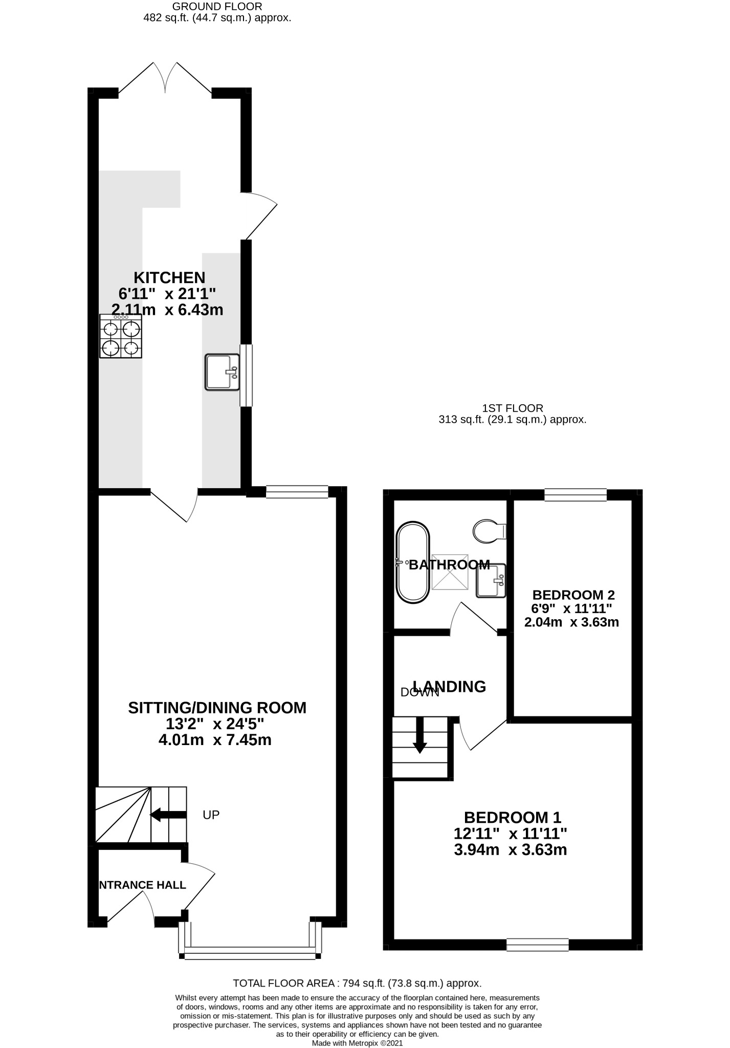
In the popular residential location of Reginald Road, sits this beautifully presented two bedroom mid terraced family home. The property is located within walking distance of local restaurants and amenities which can be found on Highland Road and Albert Road. The internal accommodation comprises; sitting room/dining room, kitchen, bathroom and two good-sized bedrooms on the first floor. The property further benefits from double glazing and gas central heating throughout.

ENTRANCE DOOR - Leads to entry porch area.

LIVING/ DINING AREA - Open plan living area, space for table & chairs.
Read full description

Council Tax Band: B

Weekly Price: £288

Deposit: £1,442

VIEW ON GOOGLE MAP Floorplan EPC

Properties of interest

Register with us, we’ll help make sure you don’t miss your dream home.

Save searches and properties, make notes, set up automatic email alerts for new properties.

Register Now

5* Google Review: Debbie, Nicki and Lyn really are an absolute dream team and we highly recommend them if you are planning to sell your house! They looked after us from start to finish during our recent house sale and purchase. They were really thorough in their appraisal of the housing market. Therefore, ensuring we were realistic in how much our property was worth prior to putting it on the market. They took the very best and detailed photographs of our house to really show it off, which was important to us to ensure we made an impact as soon as it was available to view in the public domain. Their communication was excellent in terms of keeping us updated and they answered all our questions - nothing was too much for them. We really felt that we were in safe hands and would have no hesitation but to recommend them highly to any of our friends seeking a reliable estate agent. Thank you Pearsons!
DE Nov 2022

WHY CHOOSE PEARSONS?

Our Offices


View Office Map

Service | Marketing | Experience

Terms & Conditions | Privacy Policy | Client Money Protection Certificate | Click here for a full list of our lettings fees | Complaints Procedures | Site Map | Website by fruitful studio

©2026 Pearsons | Pearsons Southern Limited is registered in England and Wales. Registered office: Kintyre House, 70 High Street, Fareham, Hants PO16 7BB. Company No. 01517996