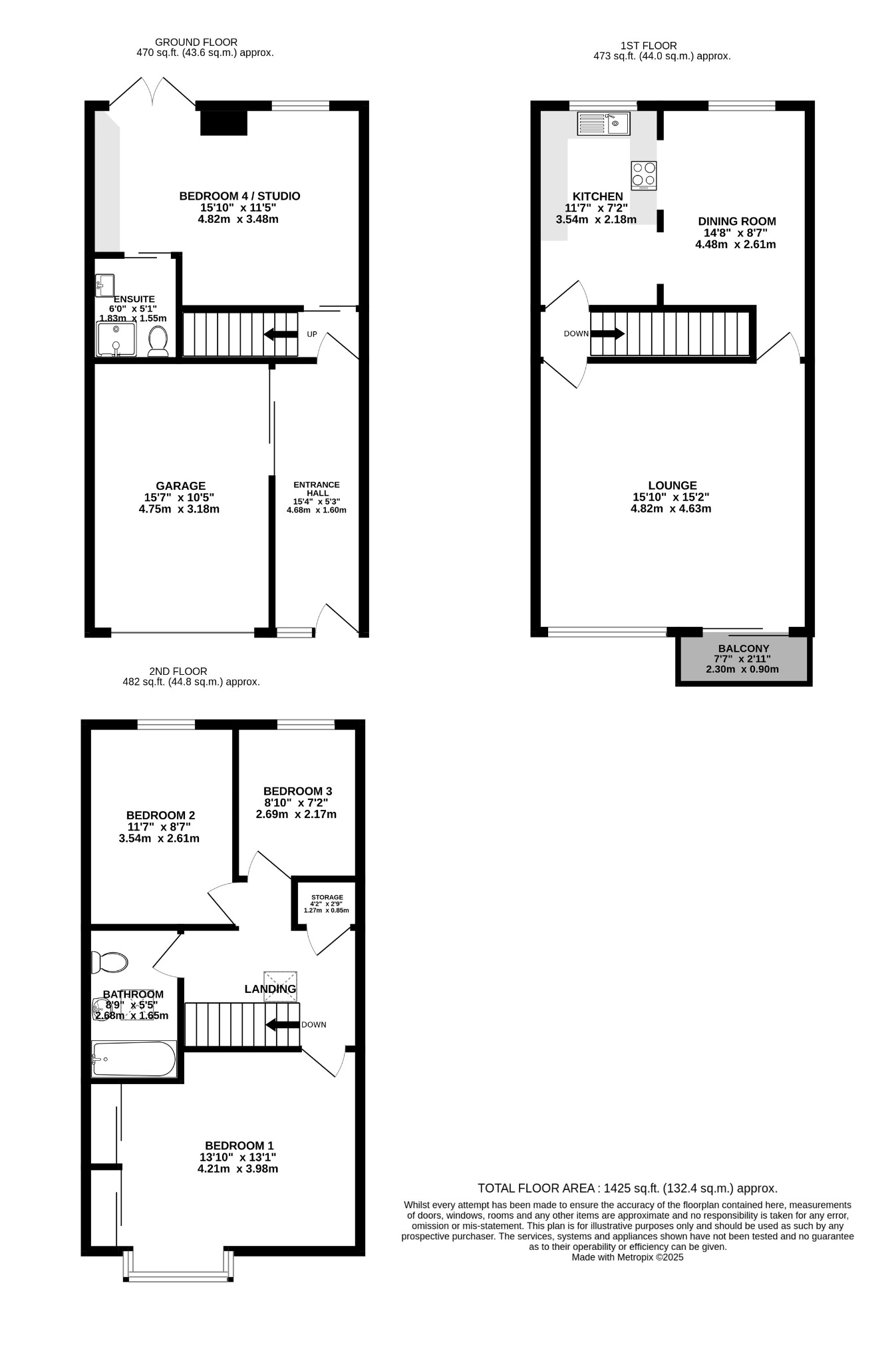
This spacious four-bedroom townhouse offers flexible living accommodation across three floors, complete with a driveway for up to three cars, a garage with electric up and over door, a west-facing balcony, and a landscaped garden with rear pedestrian access. The ground floor is a real highlight, featuring a self-contained studio suite with kitchenette, en-suite shower room, and direct access to the garden.
Currently run as a successful Airbnb, it presents an excellent opportunity for buyers looking for an income-generating investment, or alternatively, it can be used as a private guest suite, teenager’s retreat, or space for multi-generational living. The first floor provides the main family living areas, including a bright lounge with large windows and access to the balcony and a separate dining room with an opening into the fitted kitchen. On the second floor, there are three well-proportioned bedrooms, the master benefiting from fitted wardrobes, and a stylish family bathroom. Outside, the property enjoys a private paved rear garden perfect for relaxing or entertaining. To the front, the generous driveway accommodates up to three vehicles, complemented by the garage for further parking or storage. Situated in a prime central Southsea location, within easy reach of shops, cafes and the seafront. Whether for family living or as a part-investment property, an early inspection is recommended to avoid disappointment.
ENTRANCE HALL
Panelled ceilings, composite front door with obscured UPVC double-glazed window, fitted carpet and sliding doors into;
GARAGE
Smooth ceiling, up and over electric door, base-mounted units with an inset sink, space for washing machine, space for dryer, a wall-mounted boiler and solid flooring.
STAIRWAY
Smooth ceiling, inset spotlights, carpeted stairs, and door into;
BEDROOM FOUR/STUDIO
Smooth ceiling, inset spotlights, UPVC double-glazed window, UPVC double-glazed doors, radiator, a range of wall and base mounted units with roll top work surfaces over, inset sink and drainer, space for appliances, solid cement flooring and sliding door into;
SHOWER ROOM
Smooth ceiling, inset spotlights, extractor fan, enclosed shower cubicle, wash hand basin, low level W.C and solid cement flooring.
FIRST FLOOR LANDING
Smooth ceiling, inset spotlights, and doors into;
LOUNGE
Textured and coved ceiling, UPVC double-glazed windows, UPVC double-glazed sliding doors to balcony, radiator and wooden flooring.
DINING ROOM
Smooth ceiling, inset spotlights, radiator, UPVC double-glazed window, wooden flooring and opening into;
KITCHEN
Smooth ceiling, inset spotlights, UPVC double-glazed window, a range of wall and base-mounted units with roll-top work surfaces over, inset sink and drainer, tiled splash back, induction hob, oven, space for fridge and vinyl flooring.
SECOND FLOOR LANDING
Smooth ceiling, skylight window, storage cupboard, fitted carpet and doors into;
BEDROOM ONE
Smooth ceiling, UPVC double-glazed bay window, wardrobe, radiator and fitted carpet.
BEDROOM TWO
Smooth ceiling, UPVC double-glazed window, radiator and fitted carpet.
BEDROOM THREE
Smooth ceiling, UPVC double-glazed window, radiator and fitted carpet.
BATHROOM
Smooth ceiling, skylight window, panal bath with shower over, wash hand basin, low level W.C, ladder towel radiator and solid cement flooring.
OUTSIDE
Outside, the property enjoys a private paved rear garden perfect for relaxing or entertaining. To the front, the generous driveway accommodates up to three vehicles, complemented by the garage for further parking or storage.
COUNCIL TAX
Portsmouth City Council TAX BAND D £2,180.92 for the year 2025/2026.
Read full description
Show less