polygon, southampton

4 bedrooms | £325,000

Call the Southampton office

023 8023 3288

Request Viewing Save Print
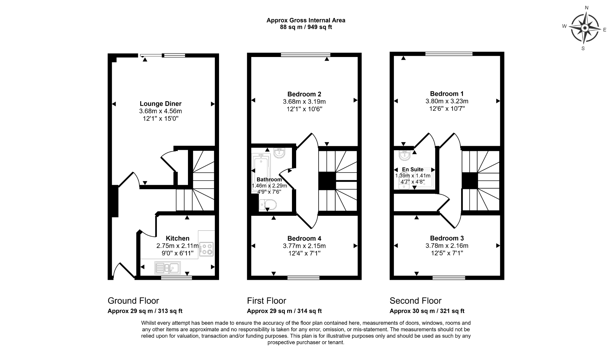
Situated in Polygon area close to the City Centre and located towards the end of a quiet through road yet also placed within walking distance of many local amenities is this generously sized four-bedroom terraced house. Offered for sale with no forward chain. Currently let out as a four-bedroom HMO and generating a rental income of £2450 PCM. This home represents an ideal opportunity for investment. The ground floor has fitted kitchen and lounge with patio doors opening onto the rear garden. Four double bedrooms all of similar size are on the first and second floor.
Read full description

Properties of interest

bitterne park, southampton

2 bedrooms | £355,000

malwood road, hythe

3 bedrooms | £350,000

bassett, southampton

3 bedrooms | £350,000

Register with us, we’ll help make sure you don’t miss your dream home.

Save searches and properties, make notes, set up automatic email alerts for new properties.

Register Now

I just wanted to say a massive thank you to the Andover branch, and in particular David who helped us out with our purchase recently, always going above and beyond after my solicitors were rather difficult (or should I say useless!) at times. The communication was second to none, always friendly and nothing was too much bother even if it was out of hours, or we had a question/advice related to our sale and not just the purchase being handled with Pearsons. The hard work you guys put in along with the collaboration with our estate agent Austin Hawk was absolutely superb and I cannot recommend the pair of you guys highly enough. Thought just a quick message to share some good news in these challenging times would be appreciated. Very much look forward to working with Pearsons again in the future.
T.W.

WHY CHOOSE PEARSONS?

Our Offices


View Office Map

Service | Marketing | Experience

Terms & Conditions | Privacy Policy | Client Money Protection Certificate | Click here for a full list of our lettings fees | Complaints Procedures | Site Map | Website by fruitful

©2025 Pearsons | Pearsons Southern Limited is registered in England and Wales. Registered office: Kintyre House, 70 High Street, Fareham, Hants PO16 7BB. Company No. 01517996