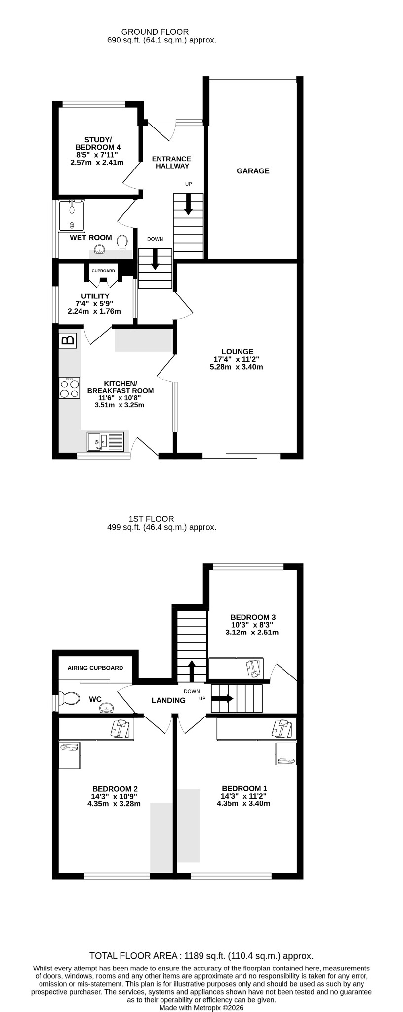
DESCRIPTIONThis versatile and well-proportioned three/four bedroom semi-detached house is positioned on the ever-popular Portchester hill slopes with stunning views towards Portsmouth Harbour. The split-level accommodation comprises; entrance hallway, study/bedroom four, wet room, lounge, kitchen/breakfast room and a utility. To the first floor there are three bedrooms and a WC. Outside, there is driveway parking, GARAGE and a southerly aspect enclosed rear garden also benefitting from views towards Portsmouth Harbour. Viewing is highly recommended by the sole agents to appreciate the position on offer.
ENTRANCE HALL
Double glazed front door. Double glazed obscure window to the front aspect. Staircase rising to the first floor. Radiator. Steps leading down to the lounge and kitchen/breakfast room.
STUDY/BEDROOM FOUR
Double glazed window to the front aspect. Radiator.
WET ROOM
Double glazed obscure window to the side aspect. Extractor fan. Walk-in shower area with grip handles. Vanity unit with concealed low level WC and wash hand basin. Heated towel rail. Tiled walls. Anti-slip flooring.
LOUNGE
Double glazed sliding patio doors leading to the rear garden with views towards Portsmouth Harbour. Smooth and coved ceiling. Gas coal effect fireplace with stone surround and hearth. Radiator.
KITCHEN/BREAKFAST ROOM
Double glazed door leading to the rear garden. Double glazed window to the rear aspect with views towards Portsmouth Harbour. Smooth and coved ceiling. Matching wall and base units with contrasting work tops. Tiled splashback. Inset stainless steel sink and half drainer. Four ring gas hob. Fitted 'Stoves' double oven. Tile effect vinyl flooring. 'Worcester' boiler.
UTILITY
Double glazed obscure window to the side aspect. Space for fridge/freezer and washing machine. Storage cupboard.
SPLIT-LEVEL FIRST FLOOR LANDING
Steps rising to bedroom three and doors to:
WC
Double glazed obscure window to the side aspect. Low level WC. Wash hand basin. Part tiled walls. Vinyl flooring. Airing cupboard.
BEDROOM ONE
Double glazed window to the rear aspect with views towards Portsmouth Harbour. Fitted wardrobes. Chests of drawers and bedside tables. Radiator.
BEDROOM TWO
Double glazed window to the rear aspect with views towards Portsmouth Harbour. Fitted wardrobes. Bedside tables and drawers. Radiator.
BEDROOM THREE
Double glazed window to the front aspect. Radiator. Access to loft storage.
OUTSIDE
To the front of the property there is driveway parking, laid to lawn front garden with shrubs and trees. Side gated pedestrian access leading to the rear garden.
GARAGE. Up and over door. Power and light.
The southerly aspect rear garden has an initial raised patio area with the remainder of the garden being laid to lawn with shrubs, borders and trees. Timber garden shed. Outside light.
COUNCIL TAX
Fareham Borough Council. Tax Band D. Payable 2025/2026. £2,164.55.
Read full description
Show less