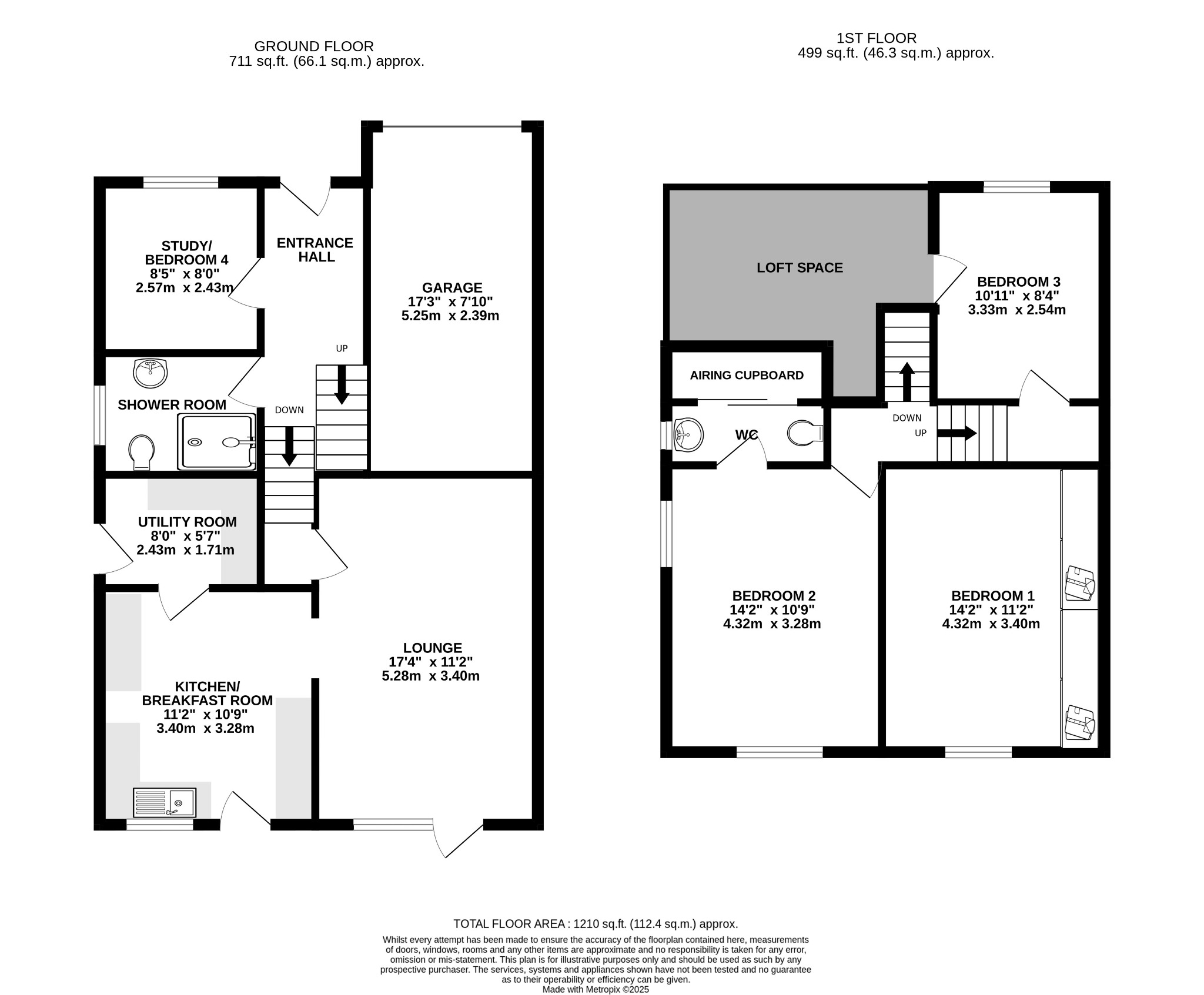
DESCRIPTIONNO FORWARD CHAIN. A wonderful opportunity to purchase a three/four bedroom semi-detached house located on the Portchester slopes with fantastic views to the rear towards Portsmouth Harbour. The property has split-level accommodation comprising, on the ground floor, a study/bedroom four and shower room, whilst on the lower ground floor a lounge, kitchen/breakfast room and utility room can be found. The property benefits from three bedrooms, is warmed by gas central heating and has double glazed windows. There is off road parking to the driveway, GARAGE and an enclosed south-facing rear garden.
As sole agents, we would highly recommend an early inspection.
DOUBLE GLAZED DOOR
Leading to:
ENTRANCE HALL
Stairs to first floor and stairs to lower ground floor. Radiator. Doors to:
STUDY/BEDROOM FOUR
Double glazed window to front elevation. Radiator. Coved and textured ceiling.
SHOWER ROOM
Double glazed window to side elevation. Low level close coupled WC. Vanity unit with wash hand basin and storage beneath. Large shower cubicle with wall mounted shower unit. Extractor fan. Radiator.
LOUNGE
Double glazed picture window to rear elevation and double glazed door to garden. Chimney breast with inset coal effect gas fire set into an original tiled fireplace. Radiator. Opening to:
KITCHEN/BREAKFAST ROOM
Double glazed window to rear elevation and double glazed door to garden. Kitchen comprising stainless steel single drainer sink unit with cupboard under. Further range of wall and base level units with roll edge work surfaces over and splash back tiling. Gas point for cooker. Area for dining table. Cupboard housing gas boiler. Door to:
UTILITY ROOM
Double glazed door to side. Plumbing for washing machine with work surface over. Recess for fridge/freezer.
FIRST FLOOR
LANDING
Staircase to upper bedroom three. Doors to bedroom one and two.
BEDROOM ONE
Double glazed window to rear elevation with fantastic views towards Portsmouth Harbour. Comprehensive range of built-in wardrobes with sliding doors. Radiator.
BEDROOM TWO
Double glazed window to rear and side elevation with fantastic views of Portsmouth Harbour. Radiator. Door to:
WC
Double glazed window to side elevation. Low level close coupled WC. Pedestal wash hand basin. Sliding doors providing access to the airing cupboard with hot water cylinder and shelving.
BEDROOM THREE
Double glazed window to front elevation. Radiator. Access to loft space.
OUTSIDE
Off road parking is available to the driveway which in turn provides access to:
GARAGE. Accessible via up and over door. Power and light.
The rear garden has a paved patio area adjacent to the property. Steps lead down to the remainder of the garden which can be found mainly laid to lawn with flower and shrub borders. The garden has an outside water tap, is fence enclosed and gated side pedestrian access.
AGENT’S NOTE
A grant of probate is currently awaited and will be required prior to exchange of contracts.
COUNCIL TAX
Fareham Borough Council. Tax Band D. Payable 2025/2026. £2,164.55.
Read full description
Show less