nightingale road, southsea

2 bedrooms | £160,000 | Leasehold

Call the Southsea office

023 9273 5558

Request Viewing Save Print
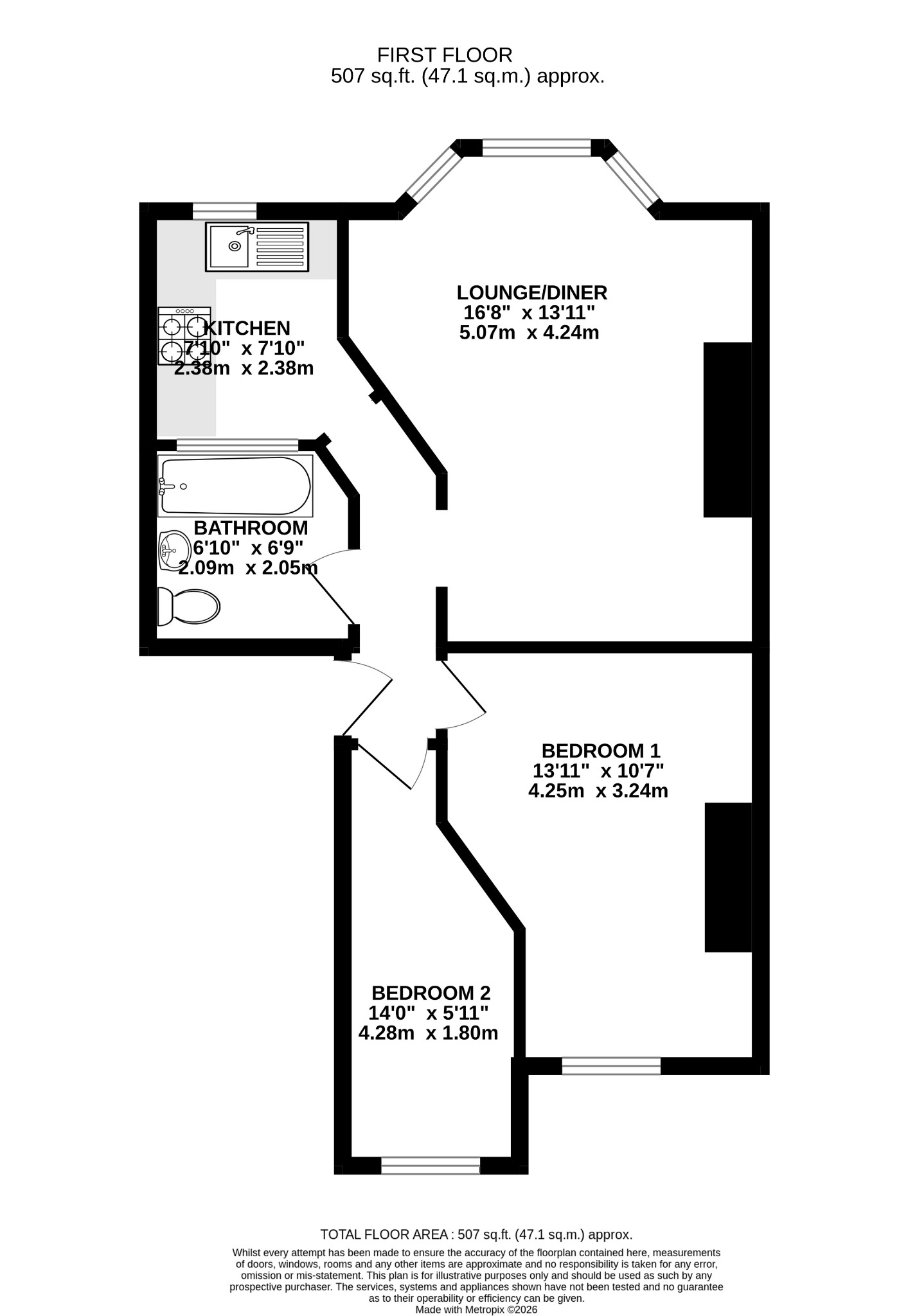
This first-floor apartment occupies part of an attractive and imposing period building on Nightingale Road, just moments from Southsea Common and the seafront. The property offers well-proportioned accommodation with a bright bay-fronted lounge, allowing for plenty of natural light and a pleasant outlook. There are two bedrooms, a bathroom, and a straightforward, practical layout throughout. Having been recently re-carpeted and re-decorated, the flat is presented in clean and tidy condition, making it ready for immediate occupation.
Read full description

Properties of interest

marmion road, southsea

2 bedrooms | £175,000

marmion road, southsea

2 bedrooms | £175,000

cecil place, southsea

2 bedrooms | £165,000

Register with us, we’ll help make sure you don’t miss your dream home.

Save searches and properties, make notes, set up automatic email alerts for new properties.

Register Now

After the longest move (10 months start to finish) I’ve ever been through, what can I say about Debbie and the team…. They were patient, gave good advice, handled the ups and downs (of which there were many!) very professionally. I’d have no hesitation in recommending Pearsons in Bishops Waltham to market and sell your property.
PK

WHY CHOOSE PEARSONS?

Our Offices


View Office Map

Service | Marketing | Experience

Terms & Conditions | Privacy Policy | Client Money Protection Certificate | Click here for a full list of our lettings fees | Complaints Procedures | Site Map | Website by fruitful studio

©2026 Pearsons | Pearsons Southern Limited is registered in England and Wales. Registered office: Kintyre House, 70 High Street, Fareham, Hants PO16 7BB. Company No. 01517996