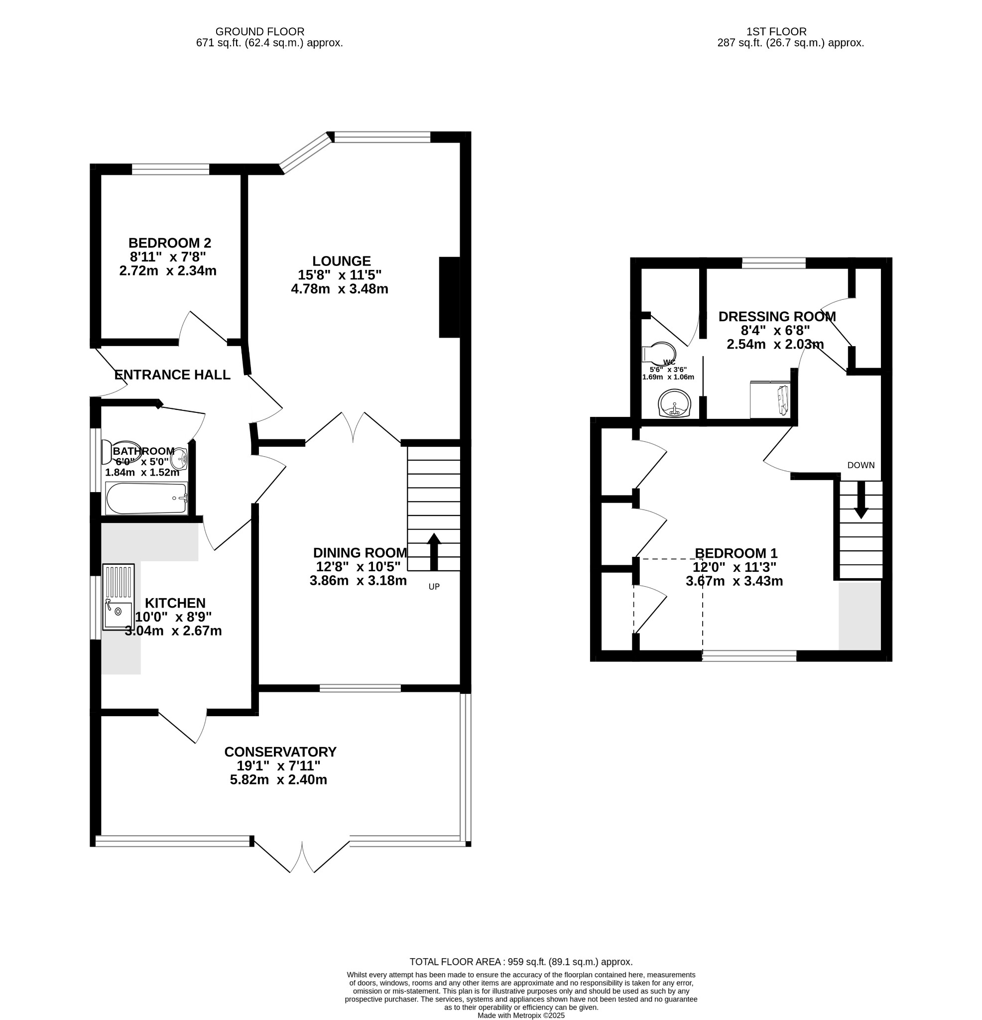
DESCRIPTION NO FORWARD CHAIN. An extended two bedroom, two reception room semi-detached bungalow located within a popular residential area which has views at the rear over Blackbrook Park. The property's accommodation briefly comprises; entrance hall, lounge, separate dining room with stairs to first floor, kitchen, bathroom and lean-to conservatory. There is one bedroom located on the ground floor and a bedroom with dressing room and cloakroom located on the first floor.
The property has its own driveway, which runs alongside the bungalow providing access to a GARAGE and an attractive low maintenance rear garden, which has direct access to Blackbrook Park. As sole agents we would highly recommend an early inspection.
COMPOSITE FRONT DOOR TO:
ENTRANCE HALL
Radiator. Doors to:
LOUNGE
Double glazed bay window to front elevation. Chimney breast with open fire with gas point. Radiator. Glazed double doors separating dining room.
DINING ROOM
Double glazed window to conservatory. Radiator. Stairs to first floor.
KITCHEN
Double glazed window to side elevation. Stainless steel single drainer sink unit with cupboard under. Further range of wall and base level units with roll edge work surfaces over and splashback tiling. Space with electric and gas point for cooker. Recess for fridge/freezer. Tiled flooring. Wall mounted gas boiler. Part glazed door to conservatory.
BATHROOM
Double glazed window to side elevation. Panel enclosed bath with shower unit over. Pedestal wash hand basin. Low level close coupled WC. Tiled flooring. Part tiled walls. Radiator.
BEDROOM TWO
Double glazed window to front elevation. Radiator.
CONSERVATORY
Lean-to style conservatory with glazed double doors leading to garden and windows to rear. Plumbing for washing machine and space for tumble dryer.
FIRST FLOOR
Doors to:
BEDROOM ONE
Double glazed dormer window to rear elevation overlooking Blackbrook Park. Radiator. Two built-in wardrobes and access to eaves storage space. Part sloping ceilings.
DRESSING ROOM
Double glazed Dormer window to front elevation. Built-in storage cupboard. Fitted wardrobe. Radiator. Sliding door to:
WC
Low level close coupled WC. Pedestal wash hand basin. Wall mounted water heater. Access to eaves storage space. Extractor fan.
OUTSIDE
Off-road parking is available to the driveway, which runs alongside the bungalow providing access to:
GARAGE: Accessed via up and over door, has a water tap, power and light and storage to the loft space.
The rear garden has been designed with low maintenance in mind and has a patio area adjacent to the property. The majority of the remainder of the garden is laid to stone chippings and has flower and shrub borders. There is a personal door to garage and garden shed. The garden is fence enclosed and has gated rear pedestrian access leading to Blackbrook Park.
COUNCIL TAX
Fareham Borough Council. Tax Band C. Payable 2025/2026. £1,924.04.
Read full description
Show less