moat close, holbury

3 bedrooms | £310,000 | Freehold

Call the Hythe office

023 8084 4131

Request Viewing Save Print
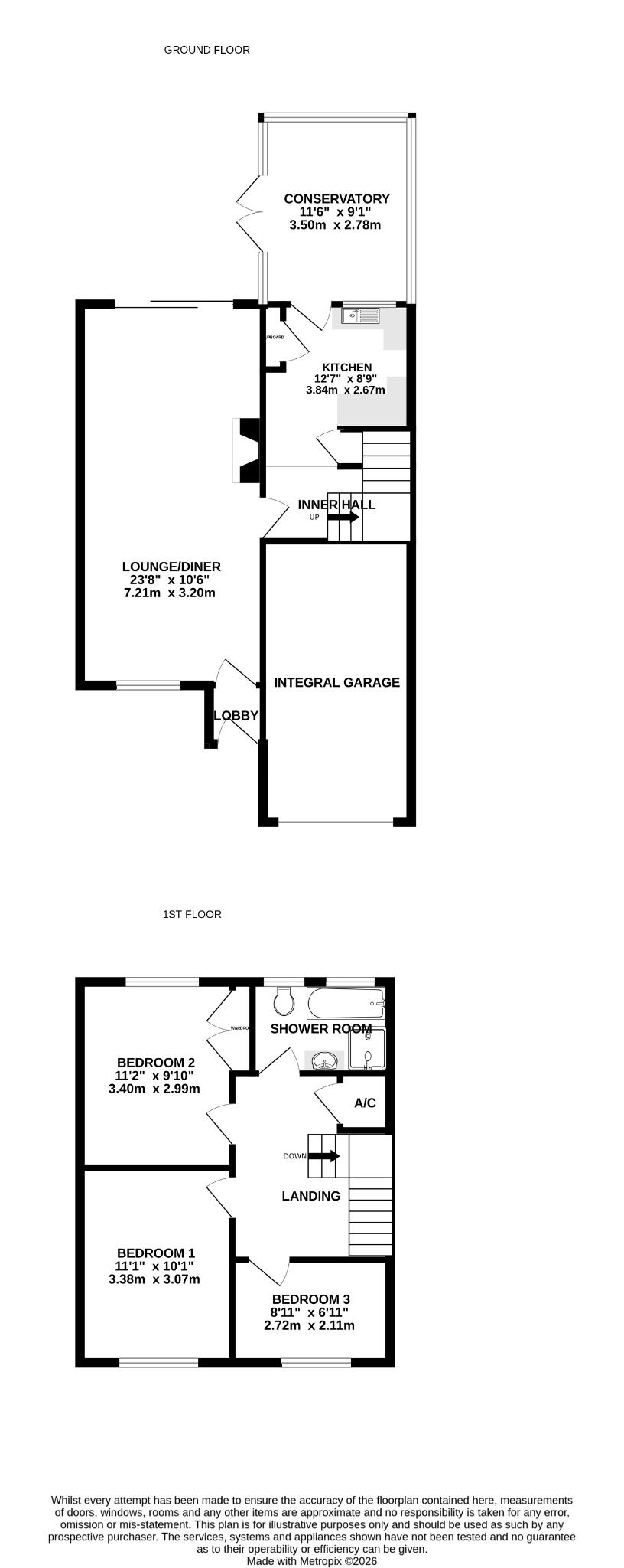
This 3 bedroom end of terrace house is situated in a cul de sac location backing onto woodland. The property benefits from UPVC double glazing, gas central heating, a larger than average garden, ample off road parking and a garage. An internal viewing is recommended.

Double glazed front door into :

ENTRANCE LOBBY
Door into:

LOUNGE/DINER
23' 8" (7.21m) x 10' 9" (3.28m)
Window to front. Television point. Feature fireplace with fitted gas fire and mantle over. Radiator. Sliding patio door to garden. Door into:

INNER HALL
Stairs to first floor.
Read full description

Council Tax Band: C

VIEW ON GOOGLE MAP Floorplan

Properties of interest

whittington close, hythe

3 bedrooms | £339,950

UNDER OFFER

fairview close, hythe

3 bedrooms | £327,000

rosebery avenue, hythe

3 bedrooms | £315,000

Register with us, we’ll help make sure you don’t miss your dream home.

Save searches and properties, make notes, set up automatic email alerts for new properties.

Register Now

We would highly recommend Pearsons, they were the agents for our purchase and they helped us every step of the way. Paul stayed in touch with us continually, nothing was too much trouble and he'd often respond to our call within ten minutes which we very much appreciated. They helped us to liaise with the sellers and negotiate a fair purchase price, we really felt that we could trust their feedback and opinions. If you want a professional, honest and really helpful service then you must use Pearsons, a big thanks to Paul and his team for helping us achieve our purchase within the Stamp Duty deadline.
Anon.

WHY CHOOSE PEARSONS?

Our Offices


View Office Map

Service | Marketing | Experience

Terms & Conditions | Privacy Policy | Client Money Protection Certificate | Click here for a full list of our lettings fees | Complaints Procedures | Site Map | Website by fruitful studio

©2026 Pearsons | Pearsons Southern Limited is registered in England and Wales. Registered office: Kintyre House, 70 High Street, Fareham, Hants PO16 7BB. Company No. 01517996