mendips road, fareham

3 bedrooms | £300,000 | Freehold

Call the Fareham office

01329 288241

Request Viewing Save Print
DESCRIPTION
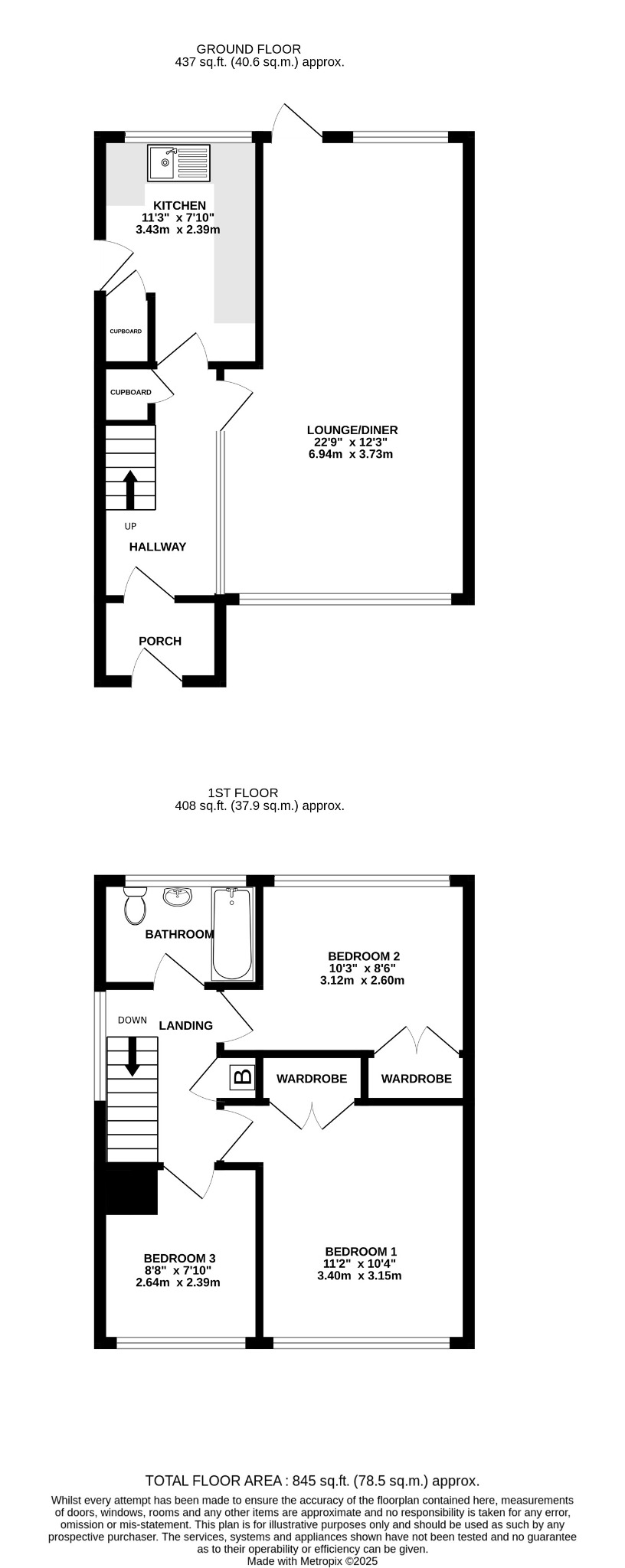
NO FORWARD CHAIN. An excellent opportunity to purchase this three bedroom semi-detached house located in a popular residential area to the west of Fareham town centre. The internal accommodation, which requires modernisation, comprises; porch, hallway, kitchen, 22' lounge/diner, and to the first floor there are three bedrooms and a bathroom. Outside, there is driveway parking, DETACHED GARAGE and an enclosed rear garden. Viewing is highly recommended by the sole agents.

PORCH
Double glazed UPVC front door.

HALLWAY
Staircase rising to the first floor. Radiator.
Read full description

Council Tax Band: C

VIEW ON GOOGLE MAP Floorplan

Properties of interest

ferneham road, fareham

2 bedrooms | £330,000

winnham drive, fareham

3 bedrooms | £330,000

Register with us, we’ll help make sure you don’t miss your dream home.

Save searches and properties, make notes, set up automatic email alerts for new properties.

Register Now

Dear Gina, I cannot thank you enough for all your hard work and perseverance to get our purchase over the "completion" line. You have had to wear several hats and have been so helpful and KIND during the negotiation process. I know this has been an unprecedented time for the housing market but you have never failed to call us back or to get an answer to our queries. Thank you so much again Gina we are eternally grateful.
M & A B.

WHY CHOOSE PEARSONS?

Our Offices


View Office Map

Service | Marketing | Experience

Terms & Conditions | Privacy Policy | Client Money Protection Certificate | Click here for a full list of our lettings fees | Complaints Procedures | Site Map | Website by fruitful

©2025 Pearsons | Pearsons Southern Limited is registered in England and Wales. Registered office: Kintyre House, 70 High Street, Fareham, Hants PO16 7BB. Company No. 01517996