Let Agreed

malthouse lane fareham unfurnished

1 bedroom | £925 pcm | LET AGREED

Available from: 6 March, 2026

Call the Fareham Lettings office

01329 238396

Print
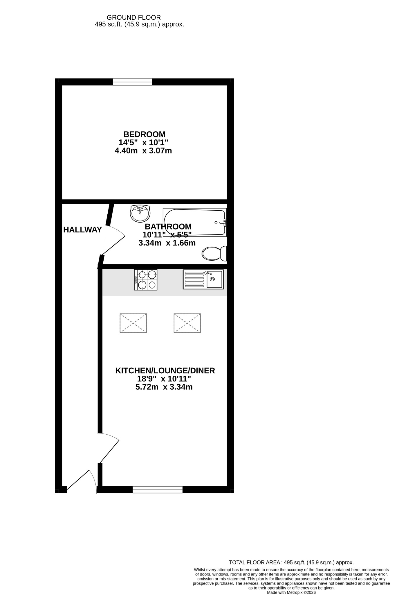
A good sized one bedroom flat with roof terrace, located in central Fareham town centre.

The property comprises;

KITCHEN/ LOUNGE/ DINER - Fitted kitchen units, with oven & gas hob, extractor hood and washing machine.

BEDROOM 1 - Double bedroom with window to front aspect.

BATHROOM - Shower over bath, hand basin, toilet. Boiler.

OUTSIDE: Roof terrace with metal stairs to street level.


Please note permit parking can be applied for through Fareham Council


DEPOSIT: £1,067.00 (TO BE HELD UNDER THE TDS).
Read full description

Council Tax Band: A

Weekly Price: £213

Deposit: £1,067

VIEW ON GOOGLE MAP Floorplan EPC

Properties of interest

Register with us, we’ll help make sure you don’t miss your dream home.

Save searches and properties, make notes, set up automatic email alerts for new properties.

Register Now

Just wanted to take the time to acknowledge the helpfulness and support we were given moving into our rental property in October 2019. Michelle Stevens swiftly helped us to complete the process in a very short time for us. I cant thank her enough for her support and kindness and I would like to express my gratitude and appreciation and ongoing support while we are in the property.
N & L B

WHY CHOOSE PEARSONS?

Our Offices


View Office Map

Service | Marketing | Experience

Terms & Conditions | Privacy Policy | Client Money Protection Certificate | Click here for a full list of our lettings fees | Complaints Procedures | Site Map | Website by fruitful studio

©2026 Pearsons | Pearsons Southern Limited is registered in England and Wales. Registered office: Kintyre House, 70 High Street, Fareham, Hants PO16 7BB. Company No. 01517996