malthouse lane fareham unfurnished

2 bedrooms | £1,200 pcm

Available from: 9 March, 2026

Call the Fareham Lettings office

01329 238396

Request Viewing Save Print
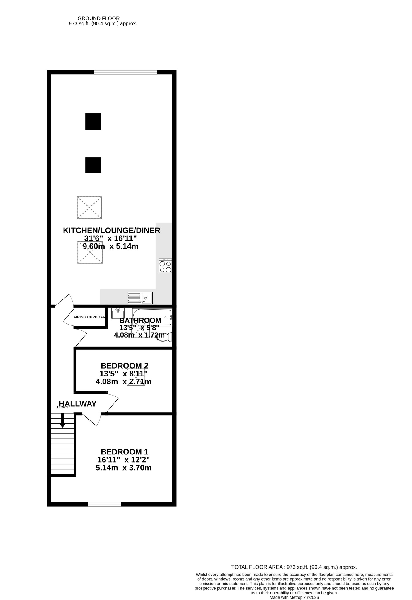
A modern two bedroom maisonette located in central Fareham, with off road parking for two cars! The property has been finished to a high standard with sky lights throughout to create a bright interior.
Read full description

Council Tax Band: A

Weekly Price: £277

Deposit: £1,384

VIEW ON GOOGLE MAP EPC

Properties of interest

Register with us, we’ll help make sure you don’t miss your dream home.

Save searches and properties, make notes, set up automatic email alerts for new properties.

Register Now

Hi Gina and Pearsons personnel. Thanks for the after-sales-care-package and the signed welcome card; almost moved me to tears! The flat had appeared on Rightmove the day after I'd given up the search, at least until the summer, but left the netbook on overnight by mistake. Just one more click .... I didn't tell you over the phone but my years 6-18 were spent in Hampshire, on the far side of Alice Holt Forest. So the flat "ticked all the boxes and more", the "more" including those trees outside. Forest living on the edge of the city centre. Thanks for letting me back in, and good luck with the business.
Mr G V

WHY CHOOSE PEARSONS?

Our Offices


View Office Map

Service | Marketing | Experience

Terms & Conditions | Privacy Policy | Client Money Protection Certificate | Click here for a full list of our lettings fees | Complaints Procedures | Site Map | Website by fruitful studio

©2026 Pearsons | Pearsons Southern Limited is registered in England and Wales. Registered office: Kintyre House, 70 High Street, Fareham, Hants PO16 7BB. Company No. 01517996