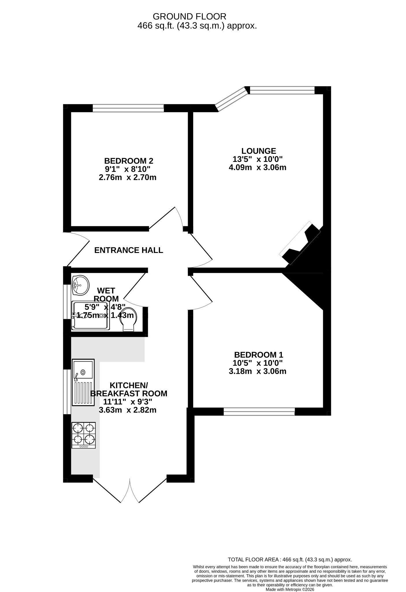
DESCRIPTIONNO FORWARD CHAIN. A two bedroom semi-detached bungalow located close to Portchester foreshore which requires general updating. The property's accommodation briefly comprises; 'L' shaped entrance hall, lounge, two bedrooms, wet room and kitchen/breakfast room which has French doors leading onto the garden. The property benefits from double glazing and is warmed by gas central heating. There is off road parking available to the front of the bungalow, a shared driveway and GARAGE. The bungalow also benefits from a garden which measures approximately 50ft. As sole agents, we would highly recommend an early inspection.
DOUBLE GLAZED DOOR
Leading to:
ENTRANCE HALL
Doors to:
LOUNGE
Double glazed bay window to front elevation. Radiator. Corner chimney breast with gas fire.
BEDROOM ONE
Double glazed window to rear elevation. Coved and skimmed ceiling. Radiator.
BEDROOM TWO
Double glazed window to front elevation. Radiator. Coved and skimmed ceiling.
WET ROOM
Double glazed window to side elevation. Wall mounted shower unit. Low level close coupled WC. Wash hand basin. Heated towel rail. Extractor fan.
KITCHEN/BREAKFAST ROOM
Double glazed window to side elevation and double glazed French doors to garden. Kitchen comprising stainless steel single drainer sink unit with cupboard under. Further range of wall and base level units with roll edge work surfaces over and splash back tiling. Built-in four ring gas hob with electric oven under. Plumbing for washing machine. Recess for fridge/freezer. Wall mounted gas boiler. Area for breakfast table.
OUTSIDE
Off road parking is available to the block paved driveway to the front of the property. A shared driveway runs alongside the property providing access to:
GARAGE. Accessible via timber swing doors. The rear garden has a patio area adjacent to the house whilst the remainder of the garden can be found mainly laid to lawn. The garden is mainly fence enclosed.
COUNCIL TAX
Fareham Borough Council. Tax Band B. Payable 2026/2027. £1,765.98.
Read full description
Show less