Sold with no forward chain, this well-presented two-bedroom maisonette offers bright and spacious accommodation arranged over two floors and is positioned opposite Milton Locks Nature Reserve and the Milton Common shoreline, providing immediate access to scenic coastal walks and open green spaces. Bransbury Park is within comfortable walking distance, while excellent transport links are conveniently close by. The property has benefited from a programme of improvements carried out in 2022, including the installation of a modern boiler and radiators and a refitted kitchen, meaning the home is ready for immediate occupation.
Situated on the second floor of this purpose-built block, the entrance level features a modern fitted kitchen with ample worktop and storage space, alongside a generous living room offering plenty of space for both dining and seating areas. Upstairs, there are two well-proportioned bedrooms, including a particularly spacious main bedroom enjoying elevated views across the surrounding area with a distant water outlook. The contemporary bathroom is finished with stylish wall tiling and comprises a panelled bath with shower over, wash hand basin and WC. Externally, the property further benefits from two private lock-up storage cupboards, ideal for bicycles and additional storage, together with access to well-maintained communal grounds.
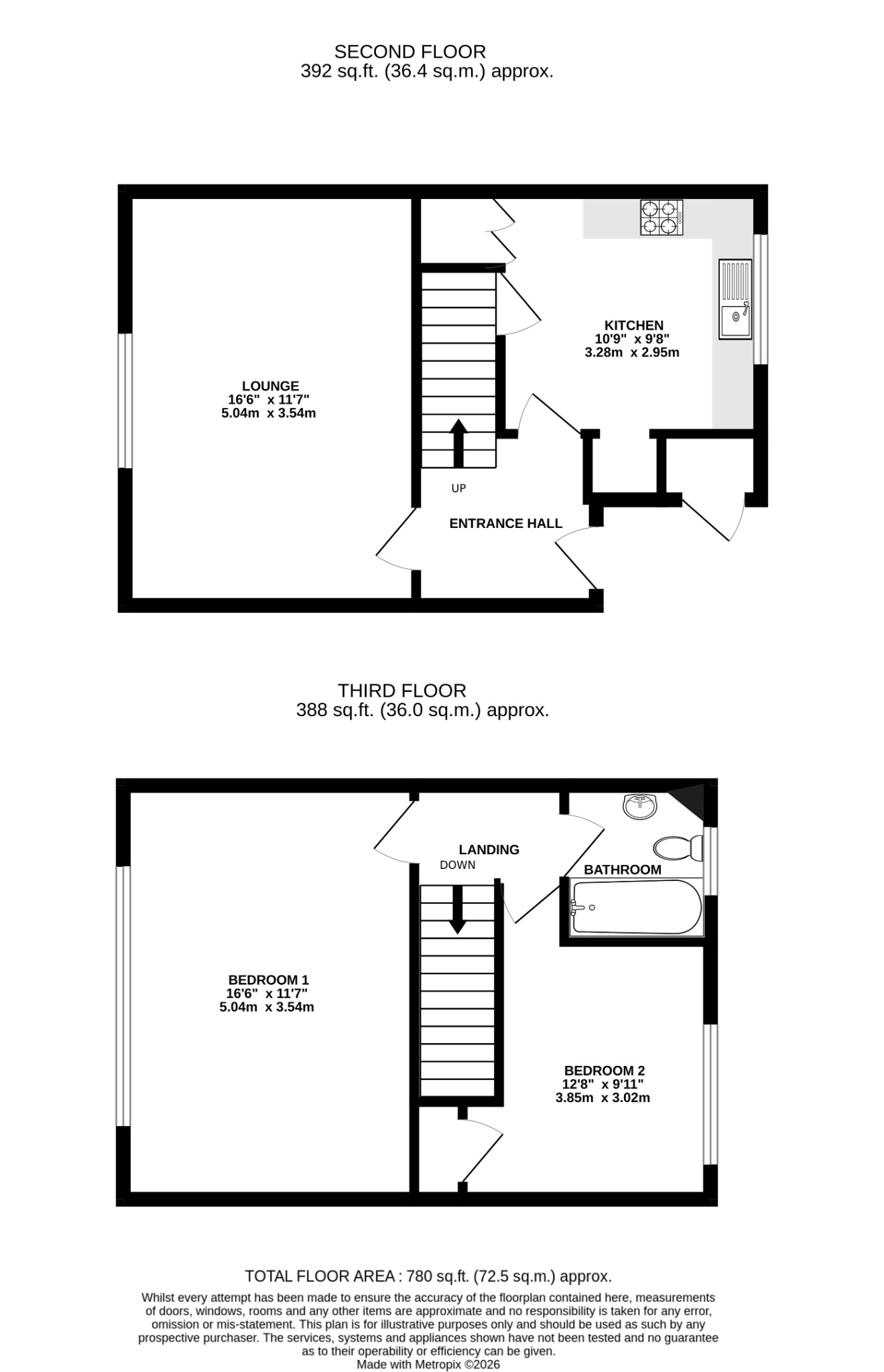
ENTRANCE HALL
Smooth ceiling, intercom entry system, stairs rising to first floor landing, radiator, LVT flooring and doors into;
LOUNGE
Smooth and coved ceiling, UPVC double-glazed window, radiator and fitted carpet.
KITCHEN
Smooth and coved ceiling, UPVC double-glazed window, radiator and LVT flooring.
LANDING
Smooth ceiling, loft access (loft is boarded and fitted with light), fitted carpet and doors into;
BEDROOM ONE
Smooth and coved ceiling, UPVC double-glazed window, radiator and fitted carpet.
BEDROOM TWO
Smooth and coved ceiling, UPVC double-glazed window, radiator, storage cupboard and laminate flooring.
BATHROOM
Smooth and coved ceiling, UPVC double-glazed window, wash hand basin, low level W.C, bath with shower head over, ladder towel radiator and laminate flooring.
OUTSIDE
The property benefits from two external storage cupboards, and communal grounds with a clothes drying area.
TENURE
Lease length: The owner is finalising an extension of the lease to 175 years, the process for which will be fully completed before completion of the sale, at no additional cost to the buyer.
Service Charge: £2,367 per annum
Ground Rent: £9.96 per annum
COUNCIL TAX
Portsmouth City Council TAX BAND A £1,453.95 for the year 2025/2026.
Read full description
Show less