This beautifully presented and extended 3/4 bedroom semi-detached home is ideally positioned within walking distance of Hythe Village. The property benefits from UPVC double glazing, gas central heating, solar panels and has been completely refurbished throughout. A ground floor side extension provides a spacious vaulted ceiling kitchen/dining room complemented by a ground floor bedroom and shower room. Externally, there is a good-sized landscaped garden to the rear with a timber-built summer house along with ample off-road parking to the front. OFFERED WITH NO CHAIN. An internal viewing is highly recommended.
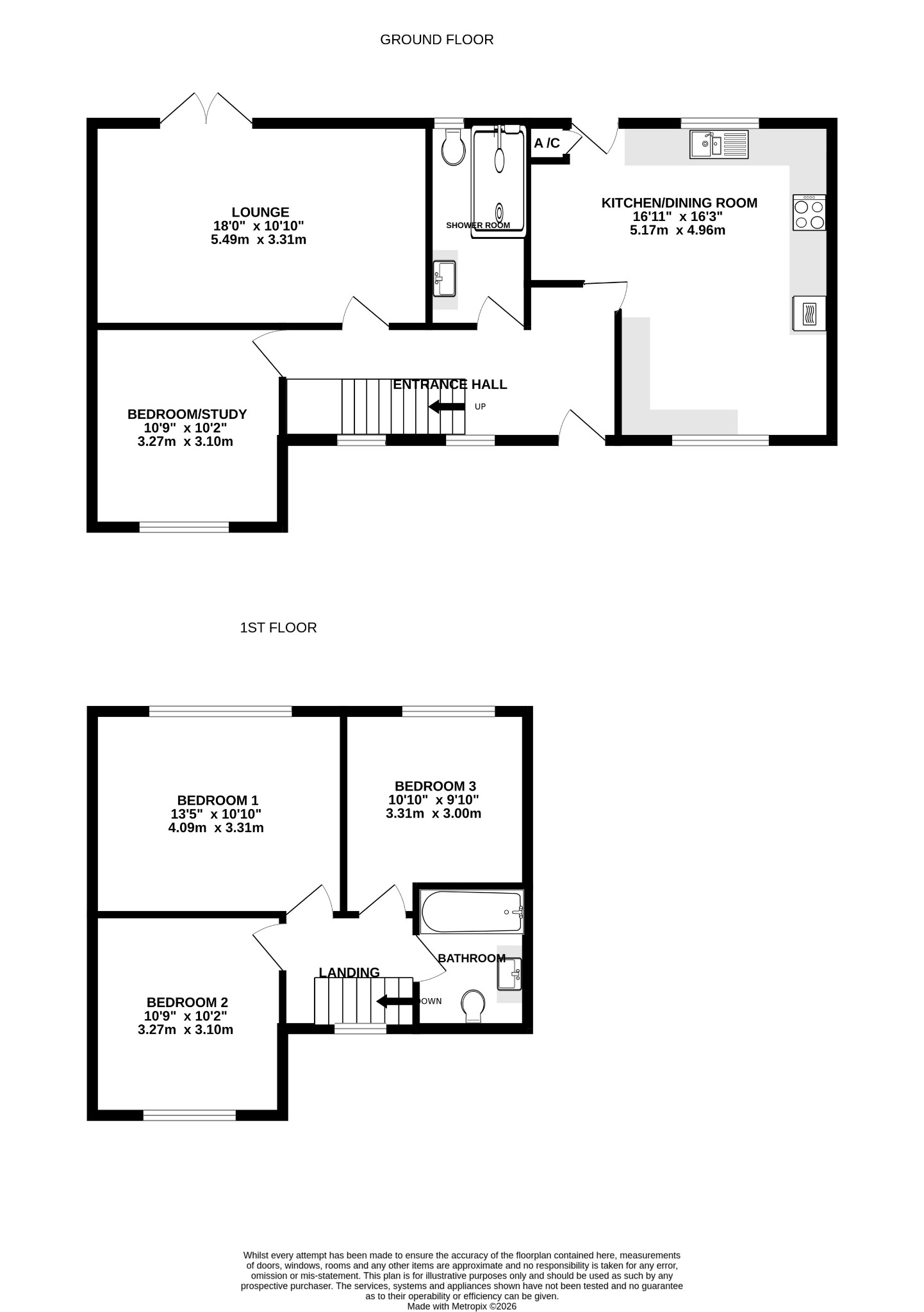
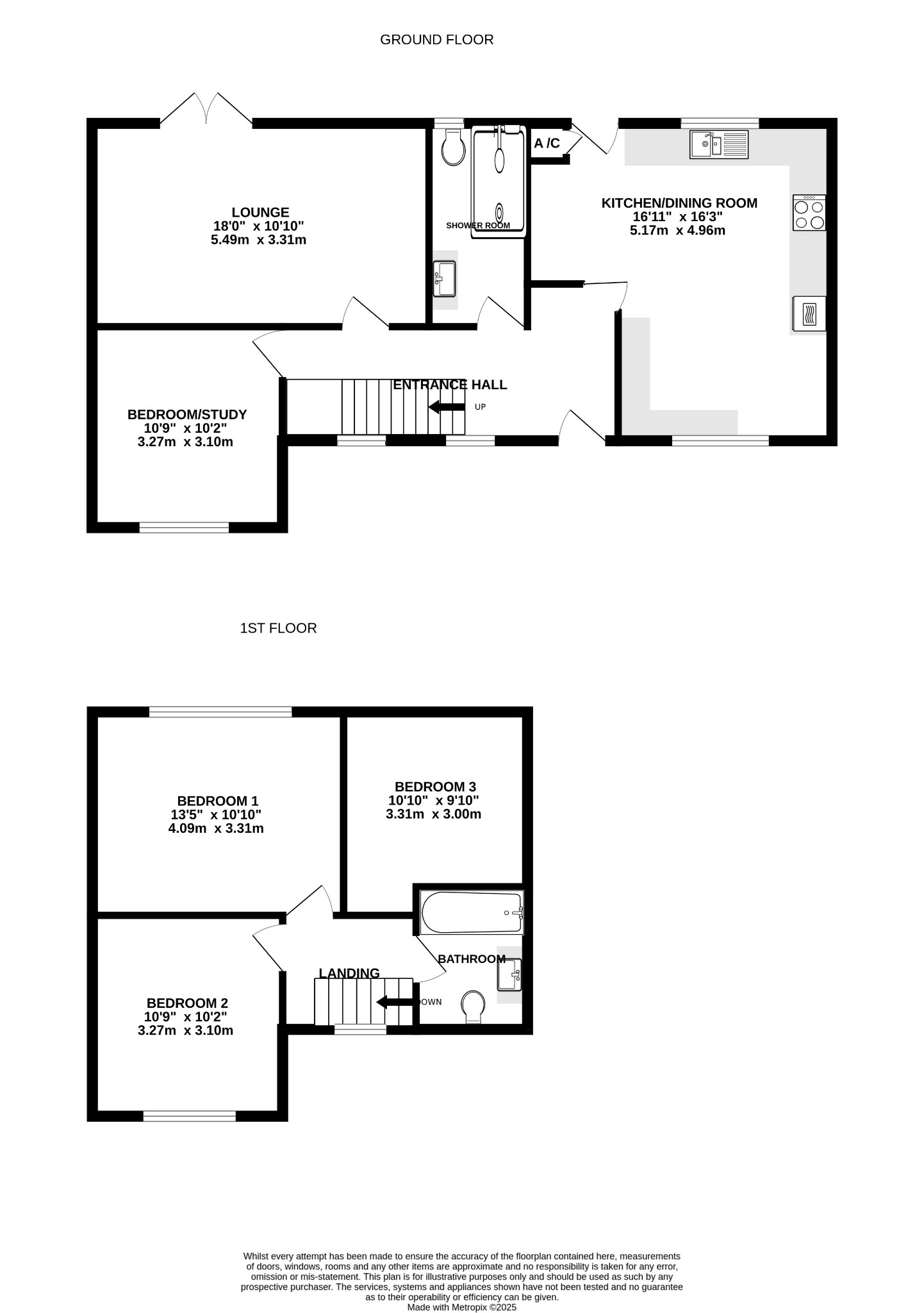
ENTRANCE HALL
Approached via UPVC front door. Two windows to front aspect. Oak and glass staircase to first floor with a range of built-in storage cupboards below. Wooden flooring. Radiator.
LOUNGE
18' (5.49m) x 10' 10" (3.30m)
Double glazed french doors to garden. Wooden flooring. Inset media shelves. Inset ceiling lights. Radiator.
BEDROOM FOUR/STUDY
10' 9" (3.28m) x 10' 2" (3.10m)
Window to front aspect with shutters. Wooden flooring. Recess with shelf and hanging rail. Radiator.
SHOWER ROOM
Obscure window to rear. Comprising walk-in double shower cubicle with rain shower. Fitted xpelair extractor fan. Close coupled WC. Wash hand basin with drawers below. Ceramic tiled flooring. Fully tiled walls. Heated towel radiator.
KITCHEN/DINING ROOM
16' 11" (5.16m) x 16' 3" (4.95m)
Windows to front and rear. Double glazed door to garden. Vaulted ceiling with pendant lighting. Fitted with a comprehensive range of base and wall units with working surfaces over and complementary tiling to splashbacks. Inset one and a half bowl stainless steel sink unit with mixer tap. Inset induction hob with concealed extractor hood fitted over. Eye level built-in double oven. Space and plumbing for washing machine. Space and plumbing for an American-style fridge freezer. Cupboard housing Worcester combination boiler. Ceramic tiled flooring. Underfloor heating.
FIRST FLOOR LANDING
Window to front. Floor access to spacious loft space.
BEDROOM ONE
13' 5" (4.09m) x 10' 10" (3.30m)
Window to rear aspect with shutters. Radiator.
BEDROOM TWO
10' 9" (3.28m) x 10' 2" (3.10m)
Window to front aspect. Radiator.
BEDROOM THREE
10' 10" (3.30m) x 9' 10" (3.00m)
Window to rear aspect. Radiator.
BATHROOM
Obscure window to side aspect. Comprising panelled bath with shower fitted over and glazed screen. Wash hand basin with built-in drawers below. Concealed flush WC. Fully tiled with complementary tiling and fitted mirror. Heated towel radiator.
OUTSIDE
The front garden is laid to lawn with shrubs and bushes. Large shingle driveway offering ample off-road parking. Gate to rear garden.
REAR GARDEN
Fenced to boundaries. Laid to lawn. Large sandstone patio with retaining wall with inset lights. Raised well stocked flower beds. Steps to hot-tub area and timber-built summer house. Outside tap and lighting.
COUNCIL TAX
New Forest District Council
Tax Band - C
Charge Payable £2,081.18 p.a. 2025/26
Read full description
Show less