This 2 bedroom beautifully presented apartment is situated on the first floor of Marine Court, conveniently positioned within a short walk of Hythe Village. The property offers many beneficial features including UPVC double glazing, gas central heating, door entry system, allocated parking, bicycle store and bin store. Offered with NO CHAIN. An internal viewing is highly recommended.
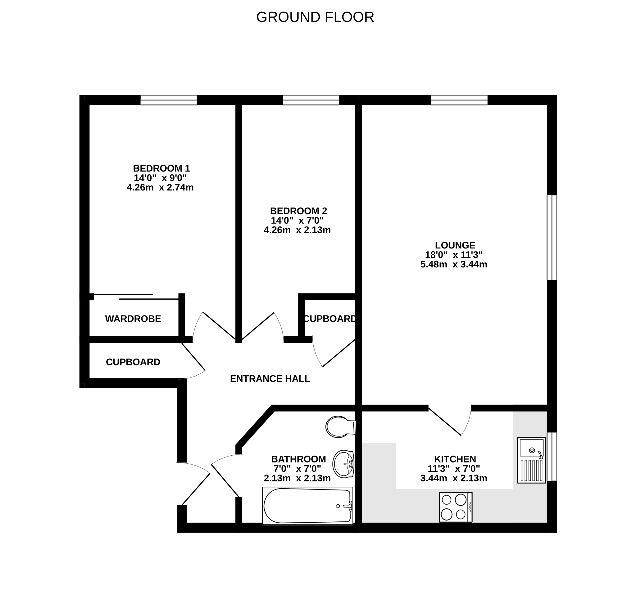
COMMUNAL ENTRANCE HALLDoor entry system. Stairs to first floor.
ENTRANCE HALLApproached via solid wood door. Door entry system. Two built in storage cupboards.
LOUNGE/DINER18' (5.49m) x 11' 3" (3.
43m)
Windows to rear and side. Fitted with electric roll down projector screen. Inset ceiling lights. Radiator.
KITCHEN
11' 3" (3.43m) x 7' (2.13m)
Window to side. Fitted with a comprehensive range of base and wall units with working surfaces over. Complementary tiling to splashbacks. Single drainer stainless steel sink unit. Space and plumbing for washing machine and dishwasher. Inset hob with concealed extractor hood and built-in Bosch oven below. Space for fridge freezer. Concealed lighting. Radiator.
BEDROOM 1
14' (4.27m) x 9' (2.74m)
Window to side. Built-in wardrobe with hanging space and shelving. Radiator.
BEDROOM 2
14' (4.27m) x 7' (2.13m)
Window to side aspect. Radiator.
BATHROOM
Comprising a white suite of panelled bath with mains shower over. Pedestal wash hand basin. Close coupled WC. Complementary tiling and fitted mirror. Inset spotlights. Extractor fan. Shower socket. Heated towel radiator.
OUTSIDE
Allocated parking. Visitor parking. Bin store and bike store. Communal gardens.
LEASEHOLD INFORMATION
Length of Lease: 125 years from January 2007 (106 years remaining)
Ground Rent/Service Charge - £149.09p per month
COUNCIL TAX
New Forest District Council
Tax Band - B
Charge Payable £1,821.03 p.a. 2025/2026
Read full description
Show less