Offered unfurnished on a long term rental, this ground floor maisonette has been refurbished throughout. The property is available with double glazing and electric economy 7/ night storage heaters, a fitted kitchen with hob and oven, 2 double bedrooms, shower room and a large rear garden. Viewing is highly recommended.
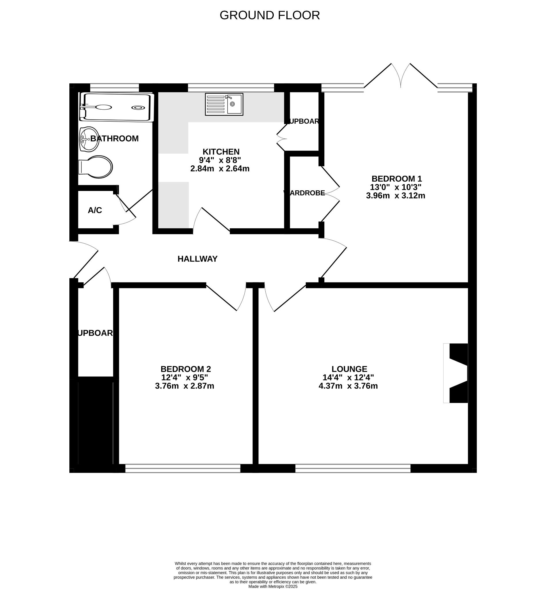
ENTRANCE LOBBY / HALLWAYStorage cupboard to the right. Carpet laid to floor throughout the hallway.
BATHROOMExcellent bathroom with large shower, sink and toilet. Tiled with towel rail and mirrored wall cupboard. Lyno laid to floor.
KITCHEN
A well-appointed kitchen in a clean country style. A deceptively large number of wall and base units with working surfaces. Electric oven with in-built hob. Dishwasher, washing machine and fold out table. Storage cupboard/pantry with tiles laid to floor.
SITTING ROOM
Neutrally styled sitting room. Window to front with modern curtains. Electric fire, Open Reach socket for the internet and telephone point. Heater and carpet laid to floor.
BEDROOM ONE
Double bedroom is finished in a modern style. Window with curtains to the front. Double built-in wardrobe with hanging rail. Heater and carpet laid to floor.
BEDROOM TWO
Another double bedroom is finished in a modern style. Double doors leading to the garden with modern curtains. Double wardrobe with hanging rails. Heater and carpet laid to floor.
GARDENS
A large private rear garden laid to slab.
Deposit: £1384
EPC: E
Council Tax: New Forest District Council Band: B
Weekly Price: £288
MINIMUM TERM: 12 MONTHS LET
Broadband: Current provider unknown. Listed by OFCOM as Superfast Download: 80MBPS Upload: 20MBPS
TV aerial available.
Mobile Signal: listed as available by OFCOM. All major providers.
Utilities: Mains supplied.
A holding deposit of one week’s rent will be required to secure the property. This fee is payable at the time of application for the tenancy and will be held for up to 15 calendar days whilst reference checks and preparation for the tenancy agreement are undertaken.
The holding deposit can be retained should the applicant fail the Right to Rent check, provide false or misleading information that would affect the Landlord’s decision to grant the tenancy, the applicant withdraws from the tenancy, or the applicant fails to take all reasonable steps to enter into a tenancy agreement.
In Tenancy Penalty Fees apply, see website for details.
Read full description
Show less