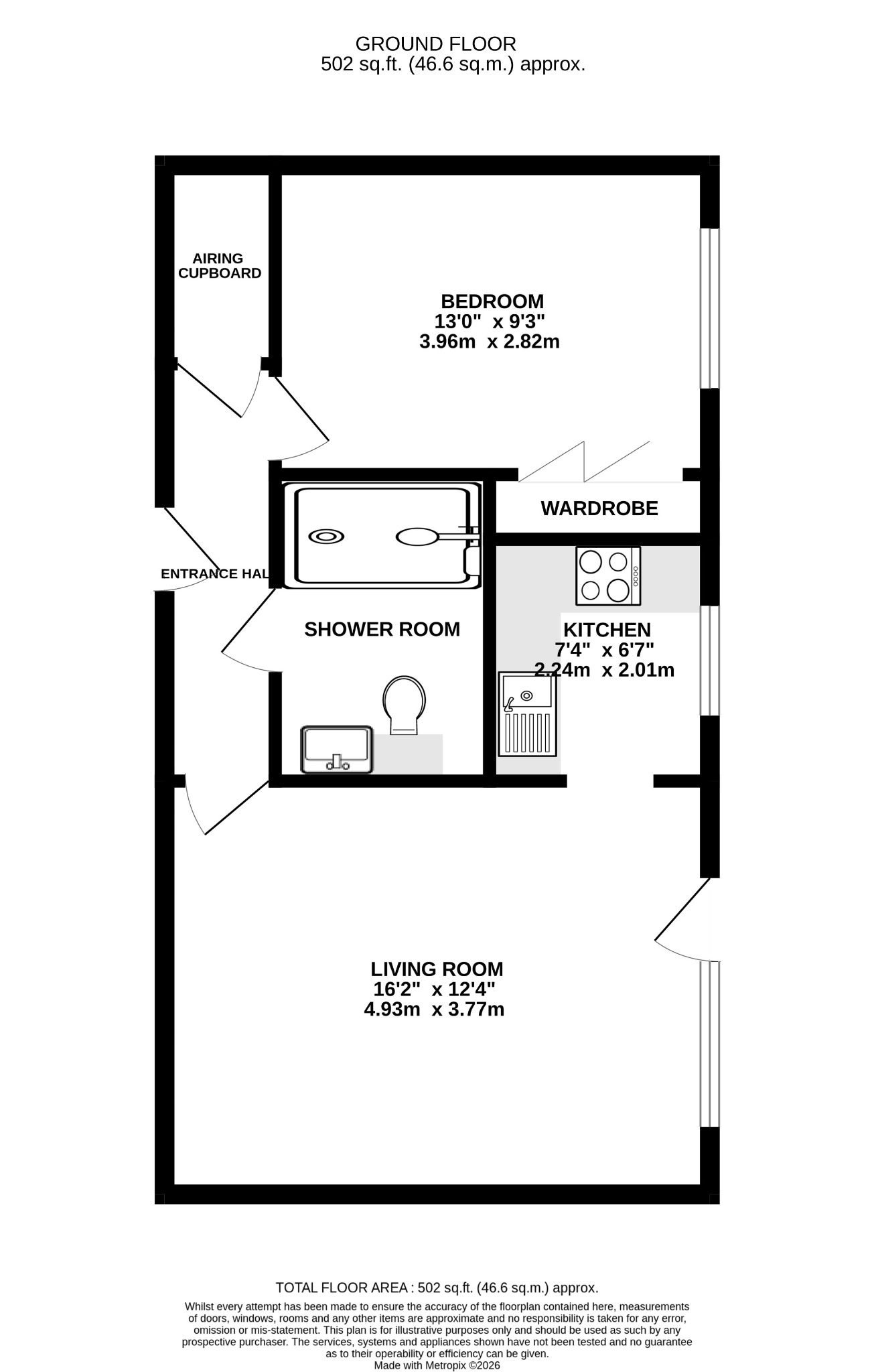
DESCRIPTION This superbly presented one bedroom ground floor retirement apartment (over 60's) benefits from a southerly aspect and is located in the heart of Fareham town centre with all its amenities. Entrance is via a communal entrance hallway with secure entry intercom system with stairs and lift to all floors. The internal accommodation comprises; entrance hall, double bedroom, 16' living room with a door onto the well-tended communal grounds, modern fitted kitchen and shower room. The property has undergone an extensive programme of improvements and must be viewed to be appreciated.
The development benefits from communal parking, buggy/charging area, pull cord alarms, house manager, communal lounge with a kitchen, laundry room, guest suite (subject to availability at a nominal charge) and well-tended communal gardens and grounds.
SECURE ENTRY INTERCOM SYSTEM LEADING TO:
COMMUNAL ENTRANCE HALL
Managers office. Stairs and lift to all floors. Communal lounge and laundry room. Private front door leading to:
ENTRANCE HALL
Airing cupboard with a 'Gledhill' water tank (fitted 2025). Intercom system. Luxury vinyl plank flooring. Pull cord alarm system. Door to:
LIVING ROOM
Double glazed door leading to the well-tended communal grounds and a double glazed window to the front aspect. Fire surround. Electric 'Economy 7' heater. Pull cord alarm system. Two wall lights. Luxury vinyl plank flooring.
KITCHEN
Double glazed window to the front aspect. Modern fitted kitchen (fitted 2025) with matching wall and base units. Contrasting worktops. Inset stainless steel sink and drainer. Four ring induction hob. Fitted double oven with slow cooking and grill options. Extractor fan. Space for fridge/freezer, dishwasher and washing machine. Luxury vinyl plank flooring.
BEDROOM
Double glazed window to the front aspect overlooking communal grounds. Fitted double wardrobe. Two wall lights. 'Economy 7' heater. Pull cord alarm system. Luxury vinyl plank flooring.
SHOWER ROOM
Modern fitted suite (fitted 2025) comprising; large double shower cubicle with a 'Mira' wall mounted shower. Vanity wash hand basin with storage beneath and fitted low level WC. Electric heated towel rail. Pull cord alarm. Luxury vinyl plank flooring.
OUTSIDE
The development benefits from beautifully stocked and well-tended communal gardens and non-allocated residents parking.
LEASE INFORMATION
Remainder of a 99 year lease from 01/09/1985.
Ground rent: £252.91 payable for the period 01/03/2026 - 01/09/2026.
Service charge: £2,282.32 payable for the period 01/03/2026 - 01/09/2026.
COUNCIL TAX
Fareham Borough Council. Tax Band A. Payable 2026/2027. £1,513.70.
Read full description
Show less