DRAFT DETAILS AWAITING VENDOR APPROVAL
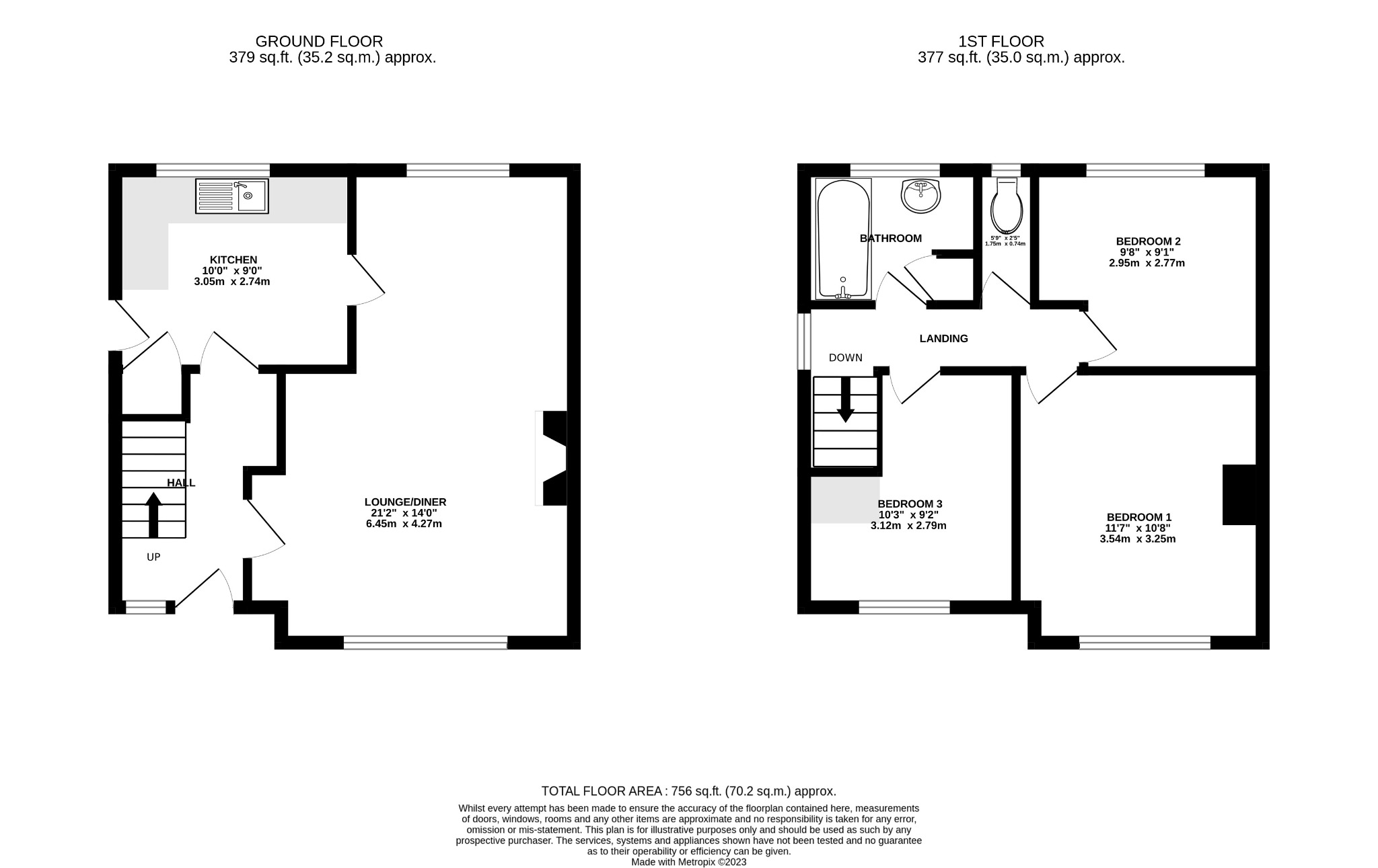
DESCRIPTIONA three bedroom semi-detached house, located to the north of Fareham town centre within easy access of local shops and amenities and local schools. The property briefly consists of an entrance hall, 21' lounge/diner and kitchen. On the first floor, there are three bedrooms, a bathroom and separate WC. The property benefits from double glazing and gas central heating, and in 2023 a new roof was installed. There is block paved driveway parking to the front of the property, a GARAGE and an enclosed rear garden.
DOUBLE GLAZED DOOR
Leading to:
ENTRANCE HALL
Stairs to first floor. Radiator. Laminate flooring. Doors to:
LOUNGE/DINER
Dual aspect with double glazed windows to front and rear elevation. Two radiators. Door to:
KITCHEN
Double glazed window to rear elevation. Kitchen comprising one and a half bowl single drainer sink unit with cupboard under. Further range of wall and base level units with roll edge work surfaces over and splash back tiling. Gas point for cooker (cooker to remain). Plumbing for dishwasher. Breakfast bar. Plumbing for washing machine. Understairs storage cupboard. Double glazed door to outside.
FIRST FLOOR
LANDING
Double glazed window to side elevation. Doors to:
BEDROOM ONE
Double glazed window to front elevation. Radiator.
BEDROOM TWO
Double glazed window to rear elevation. Radiator.
BEDROOM THREE
Double glazed window to front elevation. Radiator. Access to loft space.
BATHROOM
Double glazed window to rear elevation. Panel enclosed bath. Pedestal wash hand basin. Part tiled walls. Cupboard housing gas boiler. Heated chrome towel rail.
SEPARATE WC
Double glazed window to rear elevation. Low level close coupled WC.
OUTSIDE
Off road parking is available to the block paved driveway which in turn provides access to:
GARAGE. Accessible via up and over door. Power and light. Windows to side and rear elevation. Door to garden.
The rear garden has a timber decked area adjacent to the property. The remainder of the garden can be found mainly laid to lawn and is fence enclosed. The garden has gated side pedestrian access.
COUNCIL TAX
Fareham Borough Council. Tax Band D. Payable 2025/2026. £2,164.55.
Read full description
Show less