This spacious 3 bedroom detached chalet bungalow is situated in a cul-de-sac location on the edge of the New Forest National Park. The property is within a short walk of local amenities and benefits from UPVC double glazing, gas central heating, ample parking, detached garage and is set in approximately 1/5 acre plot. Offered with NO CHAIN. An internal viewing is recommended.
Double glazed front door into:
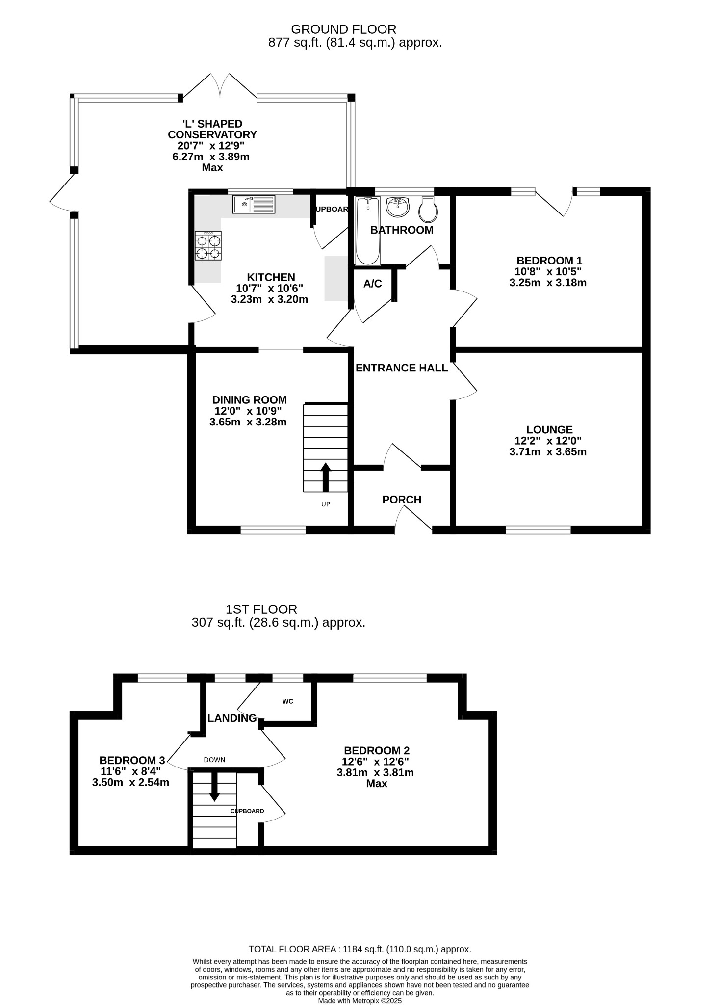
ENTRANCE LOBBY:
Further glazed door into:
ENTRANCE HALL:
Airing cupboard housing hot water tank. Telephone point. Radiator.
LOUNGE12' 2" (3.71m) x 12' (3.
66m)::
Window to front. Television point. Electric fire. Radiator.
BATHROOM:
Window to rear. Low level WC. Inset wash hand basin with cupboard below. Panelled bath with shower over. Complementary tiling. Radiator.
KITCHEN
10' 7" (3.23m) x 10' 6" (3.20m)::
Window to rear. Range of white gloss wall and base units with work surfaces over. Tiled splashbacks. Single drainer stainless steel sink unit. 4 ring ceramic hob with extractor over. Electric oven fitted below. Space and plumbing for washing machine. Space for fridge freezer. Cupboard housing Worcester gas boiler. Radiator. Door into Conservatory. Opening into:
DINING ROOM
12' (3.66m) x 10' 9" (3.28m)::
Window to front. Stairs to first floor. Radiator.
'L' SHAPED CONSERVATORY:
Of brick and UPVC construction. Tiled flooring. Door to side. Double doors to garden.
BEDROOM 1
10' 8" (3.25m) x 10' 5" (3.17m)::
Window to rear. Double glazed door to garden. Built in wardrobes. Radiator.
FIRST FLOOR LANDING:
Window to rear.
BEDROOM 2
12' 6" (3.81m) x 12' 6" (3.81m)::
Window to rear. Built in cupboards. Radiator.
BEDROOM 3
11' 6" (3.51m) x 8' 4" (2.54m)::
Window to rear. Access to eaves storage. Radiator.
UPSTAIRS WC :
Window to rear. Low level WC. Wash hand basin.
OUTSIDE:
The front garden has brick walling to boundary. Laid to lawn with mature shrubs and bushes. Driveway offering ample parking.
DETACHED GARAGE:
Up and over door to front. Personal door to side.
REAR GARDEN:
A feature of this property measuring approximately 1/5 acre. Paved patio with ornamental fishpond. Pergola. Lawned area with trees and shrubs. Large timber workshop with power and light connected. Timber garden shed.
COUNCIL TAX :
New Forest District Council, Band D, Charge Payable £2341.33 p.a. 2025/2026
Read full description
Show less