This modern, well presented 3 bedroom semi detached house is situated in an ideal location on a development built in 2001. The property benefits from a refitted kitchen, ensuite shower room and cloakroom, conservatory/dining room, UPVC double glazing, gas central heating, enclosed garden, garage and off-road parking. An internal viewing is highly recommended.
Double glazed front door into:
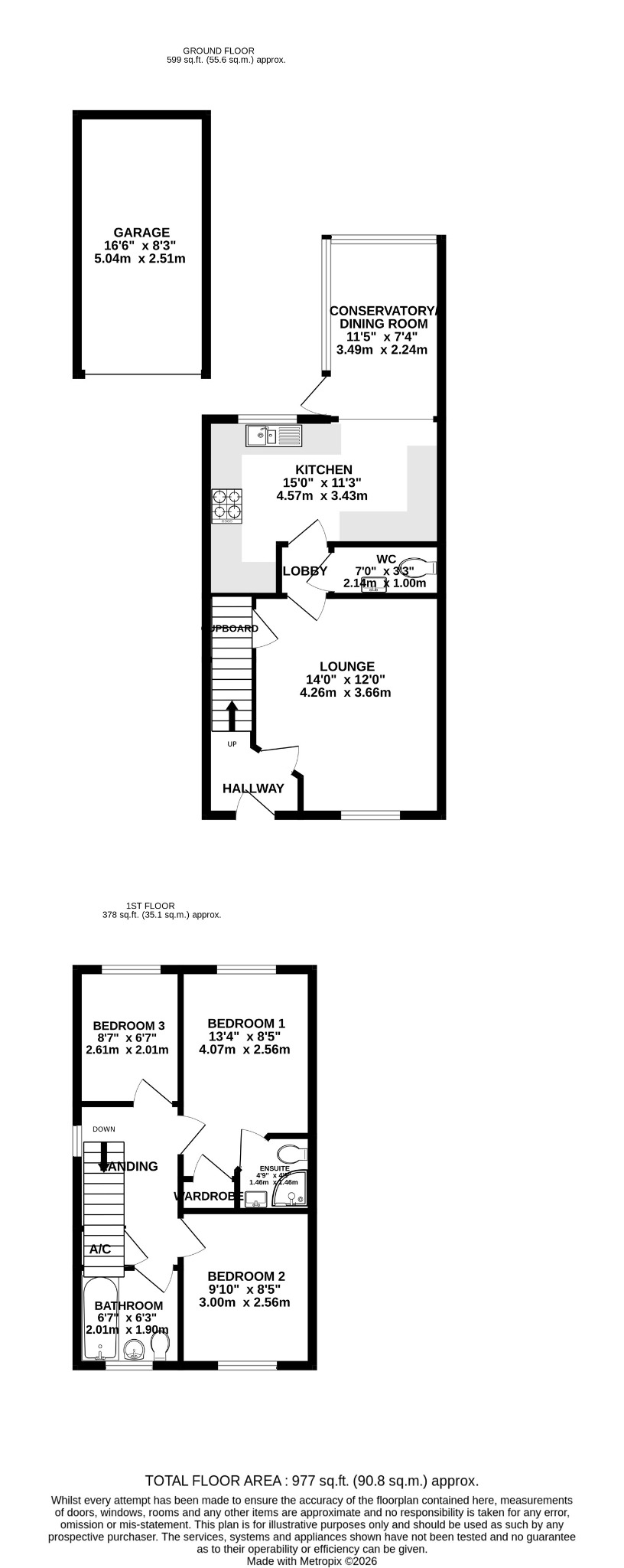
ENTRANCE HALLStairs to first floor. Radiator. Door into:
LOUNGE14' (4.27m) x 12' (3.66m)
Window to front. Feature fireplace with electric fire fitted and mantle over. Under-stair store cupboard.
Television point. Radiator. Door into:
INNER LOBBY
Door into kitchen. Door into WC.
WC
7' (2.13m) x 12' (3.66m)
Low level WC with concealed flush. Inset wash hand basin with cupboard below. Tiled splashback. Radiator.
KITCHEN
15' (4.57m) x 11' 3" (3.43m)
Window to rear. Range of wall and base units with work surfaces over. One and a half bowl sink unit with mixer tap. 4 ring gas hob with extractor over. Built in eye level double electric oven. Integrated fridge freezer, separate freezer, Dishwasher and washing machine. Radiator. Opening into:
CONSERVATORY/ DINING ROOM
11' 5" (3.48m) x 7' 4" (2.24m)
Of brick and UPVC construction. Radiator. Door to garden:
LANDING
Window to side. Access to loft space. Radiator
BEDROOM 1
13' 4" (4.06m) x 8' 5" (2.57m)
Window to rear. Television point. Built in cupboard. Radiator Door into:
ENSUITE SHOWER ROOM
4' 9" (1.45m) x 4' 9" (1.45m)
Low level WC. Inset wash hand basin with cupboard below. Corner shower unit with glazed screen. Complementary tiling. Heated towel radiator.
BEDROOM 2
9' 10" (3.00m) x 8' 5" (2.57m)
Window to front. Radiator
BEDROOM 3
8' 7" (2.62m) x 6' 7" (2.01m)
Window to rear. Radiator.
BATHROOM
6' 7" (2.01m) x 6' 3" (1.91m)
Window to front. Low level WC. Pedestal wash hand basin. Panelled bath with mixer tap. Complementary tiling. Radiator.
OUTSIDE
The front garden is shingled for easy maintenance with hedging to boundary. Driveway offering parking for 2 cars and leads to:
GARAGE
16' 6" (5.03m) x 8' 3" (2.51m)
Up and over door to front. Pitched roof for storage. Power and light connected.
REAR GARDEN
Fenced to boundaries. Laid to lawn. Timber deck area. Paved patio area. Power point. Outside tap. Pedestrian side access gate.
COUNCIL TAX
New Forest District Council, Band C, Charge Payable £2087.30 p.a. 2025/2026
Read full description
Show less