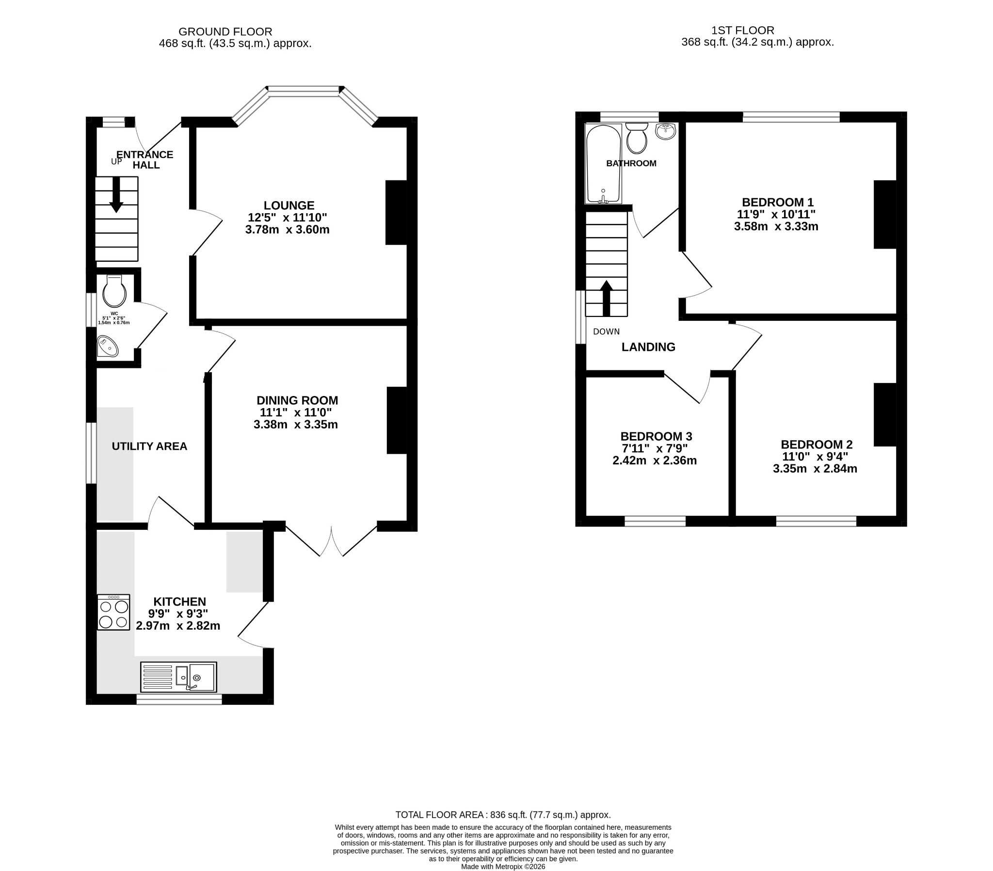
DESCRIPTION An extended three bedroom semi-detached house located just to the west of Fareham town centre and within close proximity of the train station. The property, which has a generous west facing rear garden and off-road parking for two vehicles to the driveway briefly comprises; entrance hall, lounge, separate dining room, a downstairs cloakroom, utility area and a kitchen. On the first floor, three bedrooms can be found sharing the three piece bathroom. As sole agents, we would highly recommend an early inspection.
DOUBLE GLAZED DOOR TO: ENTRANCE HALL Stairs to first floor.
Understairs storage recess. Doors to:
CLOAKROOM
Double glazed window to side elevation. Low level close coupled WC. Corner wash hand basin. Splashback tiling.
LOUNGE
Double glazed bay window to front elevation with plantation style shutters. Chimney breast with log burning stove with wooden mantle over. Storage cupboard built into chimney breast recess with shelving over.
DINING ROOM
Double glazed French doors leading to rear garden. Radiator. Coved and skimmed ceiling.
UTILITY AREA
Double glazed window to side elevation. Plumbing for washing machine and tumble dryer with work surface over. Recess for American style fridge/freezer. Wall mounted gas boiler. Door to:
KITCHEN
Double glazed window to rear elevation and double glazed door to garden. Single drainer sink unit with cupboard under. Further range of wall and base level units with work surfaces over and splashback tiling. Built-in four ring gas hob with cooker hood over. Recess for dishwasher. Eye level oven with cupboards under and over. Breakfast bar. Radiator.
FIRST FLOOR
LANDING
Double glazed window to side elevation. Access to loft space with ladder. Doors to:
BEDROOM ONE
Double glazed window to front elevation. Radiator. Coved and skimmed ceiling.
BEDROOM TWO
Double glazed window to rear elevation. Radiator. Coved and skimmed ceiling.
BEDROOM THREE
Double glazed window to rear elevation. Radiator. Coved and skimmed ceiling.
BATHROOM
Double glazed window to front elevation. Panel enclosed bath with shower unit over and folding shower screen. Low level close coupled WC. Vanity unit with wash hand basin and storage beneath. Heated towel rail. Tiled walls and floor.
OUTSIDE
Off-road parking is available to the block paved driveway for two vehicles to the front of the property.
The rear garden is a particular feature of the house and has a patio area adjacent to the property. The remainder of the good sized garden can be found mainly laid to lawn with flower and shrub borders. The garden has an outside water tap and gated side pedestrian access.
COUNCIL TAX
Fareham Borough Council. Tax Band C. Payable 2026/2027. £2,018.27.
Read full description
Show less