DESCRIPTIONNO FORWARD CHAIN. This superbly presented two double bedroom older style house is located within the heart of Fareham town centre and in easy reach of Fareham's mainline railway station. The internal accommodation comprises; entrance hall, sitting room, living room, modern fitted kitchen and utility room. To the first floor, there are two double bedrooms and a modern fitted bathroom with a bath and a separate shower. Outside, there is well-maintained rear garden (see agents note). Viewing is highly recommended by the sole agents to appreciate the property on offer.
OPEN COVERED PORCH
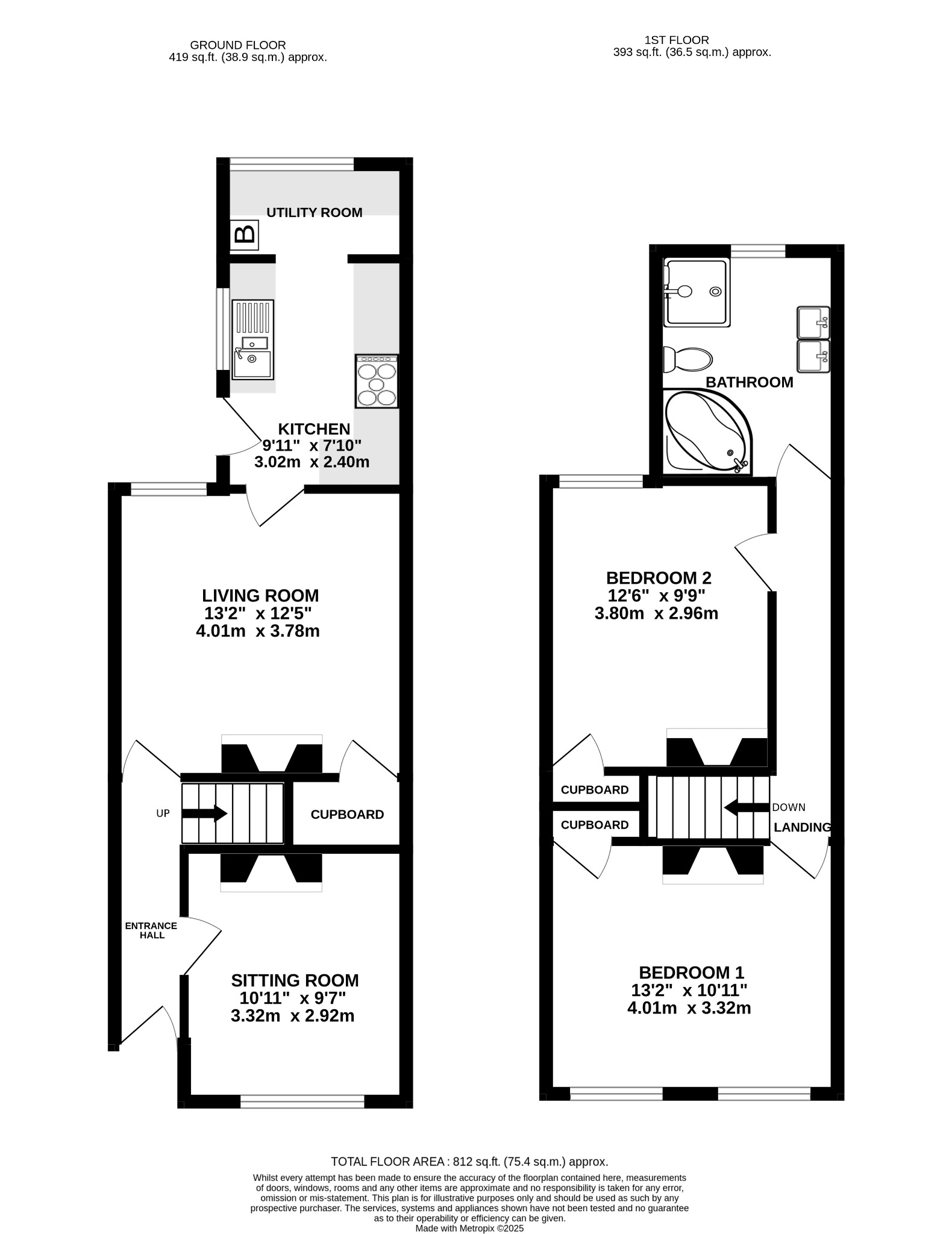
ENTRANCE HALL
Double glazed obscure front door. Smooth ceiling. Picture rail. Staircase rising to the first floor. Radiator. Wood effect laminate flooring.
SITTING ROOM
Double glazed window to the front aspect. Smooth ceiling. Picture rail. Feature cast iron fireplace with wooden surround and tiled hearth. Radiator. Wood effect laminate flooring.
LIVING ROOM
Double glazed window to the rear aspect. Smooth ceiling. Picture rail. Two wall lights. Understairs storage cupboard. Feature fireplace. Two radiators. Continuation of the wood effect laminate flooring.
KITCHEN
Double glazed window to the side aspect. Double glazed obscure door leading to the rear garden. Smooth ceiling. Inset spotlighting. Modern fitted kitchen with matching wall and base units with inset stainless steel 'Franke' sink and half drainer with contrasting worktops. Five ring 'Lamona' gas hob with extractor hood above and integral oven/grill. Freestanding dishwasher to remain. Cupboards and drawers with soft close. Under unit lighting. Tile effect laminate flooring. Opening to:
UTILITY ROOM
Double glazed window overlooking the rear garden. Wall mounted 'Valliant' boiler. Low level units with soft close cupboards. Contrasting worktops. Freestanding fridge/freezer and washing machine to remain. Continuation of the tile effect laminate flooring.
FIRST FLOOR
LANDING
Smooth ceiling. Loft access. Doors to:
BEDROOM ONE
Twin double glazed windows to the front aspect. Smooth ceiling. Built-in wardrobe. Feature cast iron fireplace. Radiator.
BEDROOM TWO
Double glazed window to the rear aspect. Smooth ceiling. Storage cupboard. Feature cast iron fireplace. Radiator.
BATHROOM
Double glazed obscure window to the rear aspect. Smooth ceiling with inset spotlighting. Extractor fan. Modern fitted suite comprising; shower cubicle with monsoon shower head and hand shower, corner bath, low level WC and twin wash hand basins within vanity units and storage cupboard. Heated towel rail and radiator. Part tiled walls. Tiled flooring.
OUTSIDE
To the front of the property, there is forecourt and open covered porch leading to the front door.
There is an enclosed rear garden which has been well-maintained and laid to lawn with a path leading to the timber garden shed.
AGENTS NOTE
Please be aware that No. 68 has a pedestrian right of way across the rear garden.
COUNCIL TAX
Fareham Borough Council. Tax Band B. Payable 2026/2027. £1,765.98.
Read full description
Show less