Pearsons are delighted to welcome to the market this freshly decorated five bedroom detached chalet bungalow, situated in a rural location of Newtown, Fareham, with front and back gardens, driveway and double garage.
This unique property comprises of:
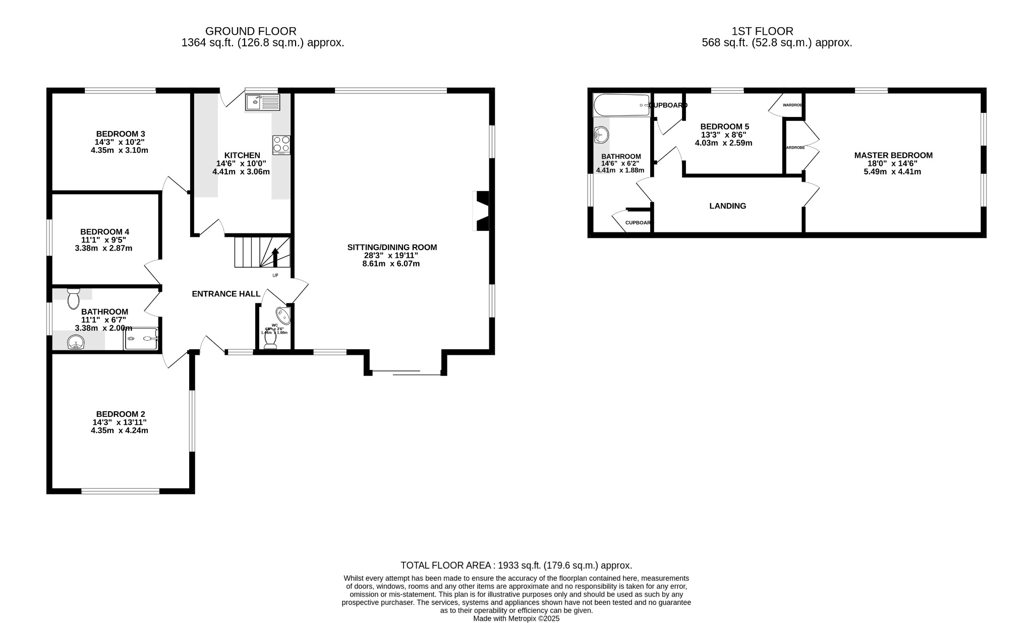
ENTRANCE HALL - Hallway leading to:
LIVING ROOM - 26ft spacious room with log burner. Sliding door, leading to to newly fitted patio and front aspect.
DOWNSTAIRS W/C - Hand basin & toilet. Window to front aspect.
KITCHEN - Fitted kitchen units, oven & grill, electric hob, extractor hood, sink & drainer over looking the rear garden.
Spaces for fridge/freezer and washing machine. Door to rear garden.
BEDROOM TWO - Spacious double room, windows to front aspect.
SHOWER ROOM - Double shower, hand basin with fitted vanity storage units & toilet, window to side aspect.
BEDROOM THREE - Double room with windows to rear aspect.
BEDROOM FOUR - Double room with windows to side aspect.
LANDING
MASTER BEDROOM - Generously spacious double bedroom with fitted double wardrobe. Velux window to rear aspect, two windows to side aspect.
BATHROOM - Separate shower, bath, hand basin with storage and toilet
BEDROOM FIVE - Small double room with single fitted wardrobe and velux window to rear aspect.
OUTSIDE - To the rear aspect, mostly laid to lawn large garden, backing onto fields. Double garage. Oil tank. To the front, mostly laid to lawn, mature shrubs and hedges. Newly fitted patio space with railings. Driveway for approximately four cars.
DEPOSIT: £3,230.00 (TO BE HELD UNDER THE TDS).
EPC: TBC
COUNCIL TAX: Winchester City Council - Band: F
WEEKLY PRICE: £646.15
BROADBAND: Current provider... Unknown. Available in area speeds from 1Mbps, faster speeds may be available. Information obtained from OFCOM - It is recommended that the occupier checks with the service provider for connectivity.
TV AERIAL AVAILABLE
MOBILE SIGNAL: Listed as limited availability by OFCOM
UTILITIES: Eletric & Water - Mains supplied, Heating - Oil, Sewage - Klargester septic tank (Landlord will arrange to empty tank approximetley every 6 months)
PETS CONSIDERED
MINIMUM TERM: TWELVE MONTHS
A holding deposit of one week’s rent will be required to secure the property. This fee is payable at the time of application for the tenancy and will be held for up to 15 calendar days whilst reference checks and preparation for the tenancy agreement are undertaken.
The holding deposit can be retained should the applicant fail the Right to Rent check, provide false or misleading information that would affect the Landlord’s decision to grant the tenancy, the applicant withdraws from the tenancy, or the applicant fails to take all reasonable steps to enter into a tenancy agreement.
In Tenancy Penalty Fees apply, see website for details.
Read full description
Show less