This two-bedroom semi-detached property is situated in a quiet cul-de-sac on the popular Butts Ash Wood development and offers scope for improvement and modernisation. Offered with NO FORWARD CHAIN. An internal viewing is highly recommended.
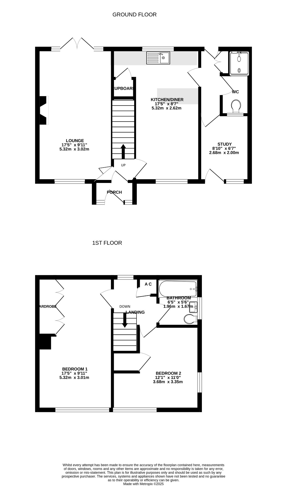
ENTRANCE PORCHApproached via UPVC front door. Quarry tiled flooring. Hardwood door to:
ENTRANCE HALLStairs to first floor.
LOUNGE17' 5" (5.31m) x 9' 11" (3.02m)
Double glazed window to front aspect. Double glazed french doors to garden with side screens. Feature fireplace with gas coal effect fire fitted. Radiator.
KITCHEN/DINING ROOM
17' 5" (5.31m) x 8' 7" (2.62m)
Double glazed windows to front and rear aspects. Fitted with a range of base and wall units with working surfaces over. Single drainer stainless steel sink unit with mixer tap. Space for cooker. Space for fridge. Built-in understairs pantry cupboard. Door to:
REAR LOBBY
Door to rear garden. Built-in storage cupboard.
SHOWER/WC
Window to front aspect. WC. Electric wall heater. Fully tiled shower cubicle with Triton shower fitted.
SIDE LOBBY
8' 10" (2.69m) x 6' 7" (2.01m)::
Double glazed front door to front. Leaded light window to front.
FIRST FLOOR LANDING
Double glazed window to rear. Access to loft space. Built-in airing cupboard with Worcester combi gas fired boiler.
BEDROOM ONE
17' 5" (5.31m) x 9' 11" (3.02m)
Double glazed window to front and rear aspects. Built-in wardrobes. Radiator.
BEDROOM TWO
12' 1" (3.68m) x 11' (3.35m)
Double glazed window to front and side aspects. Built-in storage cupboard. Radiator.
BATHROOM
Double glazed obscure window to side aspect. Comprising white suite of panelled bath with Mira Shower over. Close coupled WC. Wash hand basin with built-in cupboard below. Fully tiled. Radiator.
OUTSIDE
The front garden has brick walling and mature hedging to boundaries. Concrete hard standing for vehicles. Two pedestrian entrances.
REAR GARDEN
Fenced to boundaries. Brick built store cupboard. Paved and laid to shingle for easy maintenance. Shrubs and bushes.
COUNCIL TAX
New Forest District Council
Tax Band - C
Charge payable £2,081.18
Read full description
Show less