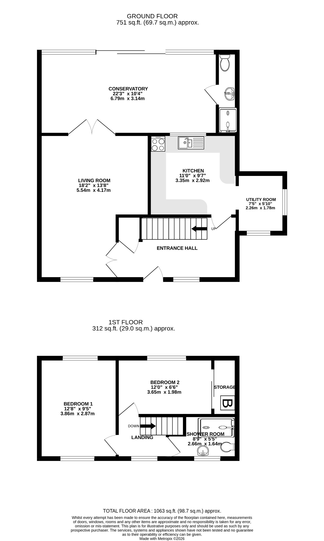
DESCRIPTIONAn individual detached two bedroom house located in a non-estate position with ample off road parking and an enclosed rear garden. The property's accommodation briefly comprises; entrance hall, dual aspect living room, full-width double glazed conservatory, kitchen, utility room and ground floor shower room. On the first floor, there are two bedrooms, both with views over farmland towards the Isle of Wight, and a shower room. The property benefits from double glazing and is warmed by gas central heating.
There is off road parking for several cars and vehicles to the front of the property, a DETACHED GARAGE and an enclosed rear garden.
DOUBLE GLAZED DOOR
Leading to:
ENTRANCE HALL
Stairs to first floor. Understairs storage cupboard and recess. Radiator. Coved and textured ceiling. Doors to:
LIVING ROOM
Double glazed window to front elevation and double glazed French doors to conservatory. Two radiators. Coved and textured ceiling.
KITCHEN
Double glazed window to conservatory. One and a half bowl stainless steel single drainer sink unit with cupboard under. Further range of wall and base level units with roll edge work surfaces over and splash back tiling. Built-in four ring ceramic hob with cooker hood over. Breakfast bar. Radiator. Doorway to:
UTILITY ROOM
Double glazed window to front and side elevation. Plumbing for washing machine and further appliance space. Coved and textured ceiling.
CONSERVATORY
Double glazed lean-to conservatory with double glazed doors leading to garden. Wall lights. Radiator. Door to:
SHOWER ROOM
Double glazed window to rear and side elevation. Pedestal wash hand basin. Low level close coupled WC. Shower cubicle with wall mounted shower unit.
FIRST FLOOR
LANDING
Double glazed window to front elevation. Doors to:
BEDROOM ONE
Dual aspect with double glazed windows to front and rear elevation. Radiator.
BEDROOM TWO
Double glazed window to rear elevation with far-reaching views over farmland towards the Isle of Wight. Built-in wardrobe/storage cupboard where gas boiler can be found.
SHOWER ROOM
Double glazed window to front elevation. Low level close coupled WC. Pedestal wash hand basin. Walk-in shower cubicle with monsoon shower head.
OUTSIDE
Off road parking is available for several cars to the front of the property.
There is a GARAGE located at the front accessible via up and over door.
The rear garden has a patio area adjacent to the property which also extends along one side of the garden and leads to a greenhouse. The remainder of the garden can be found mainly laid to lawn. The garden is fence and brick wall enclosed and has side pedestrian access.
COUNCIL TAX
Fareham Borough Council. Tax Band D. Payable 2026/2027. £2,270.55.
Read full description
Show less