Sold with no forward chain, this two-bedroom mid-terrace home offers spacious living areas, a south-facing rear garden and excellent potential for buyers looking to put their own stamp on a property. The ground floor comprises a front dining room, separate lounge, fitted kitchen and bathroom to the rear. The lounge and dining room provide flexible, separate reception spaces, while the kitchen offers a range of units, worktop space and access towards the rear of the property. Upstairs, there are two good-sized bedrooms.
Externally, the property benefits from a south-facing rear garden, offering a manageable outside space with scope for improvement. With a new combination boiler fitted in January 2026, the home would make an ideal first-time purchase, investment opportunity or project for those seeking a property with potential. The property is conveniently positioned within easy reach of local amenities and transport links. An early inspection is recommended to avoid disappointment.
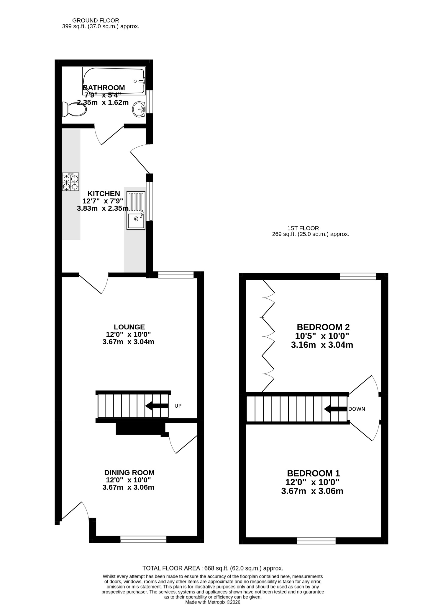
DINING ROOM
Smooth and coved ceiling, ceiling rose, UPVC double-glazed window, radiator, storage cupboard, cupboard housing meters, and vinyl flooring.
LOUNGE
Smooth and coved ceiling, ceiling rose, UPVC double-glazed window, radiator, under stairs storage and vinyl flooring.
KITCHEN
Smooth ceiling, loft hatch access, UPVC double-glazed window and door to garden, a range of wall and base-mounted units with roll-top work surfaces over, cooker with extractor fan over, inset sink and drainer, tiled splash back, space and plumbing for appliances and vinyl flooring.
BATHROOM
Smooth ceiling with extractor fan, UPVC double-glazed window, bath with shower over, tiled splash back, wash hand basin, low level W.C and vinyl flooring.
LANDING
Textured ceiling, loft hatch access, fitted carpet and doors into;
BEDROOM ONE
Textured ceiling, UPVC double-glazed window, radiator and fitted carpet.
BEDROOM TWO
Textured ceiling, UPVC double-glazed window, fitted wardrobe, radiator and fitted carpet.
OUTSIDE
Externally, the property benefits from a south-facing rear garden, offering a manageable outside space with scope for improvement.
COUNCIL TAX
Portsmouth City Council TAX BAND B £1,782.44 for the year 2026/2027.
Read full description
Show less