chichester road, portsmouth

2 bedrooms | £170,000 | Share of Freehold

Call the Southsea office

023 9273 5558

Request Viewing Save Print
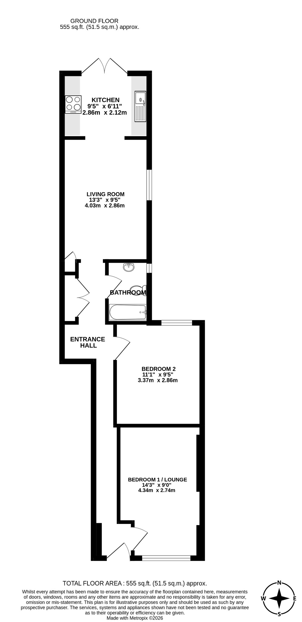
Sold with no forward chain, this well-presented two-bedroom ground floor flat offers bright and spacious accommodation throughout, together with direct access to a communal garden. The property features a comfortable living room, a fitted kitchen opening out to the garden, two good-sized bedrooms, and a modern bathroom. Ideally suited to first-time buyers, downsizers or buy-to-let investors, an early inspection is recommended to avoid disappointment.
Read full description

Properties of interest

clarence parade, southsea

2 bedrooms | £185,000

st andrews road, southsea

2 bedrooms | £185,000

st ursula grove, southsea

2 bedrooms | £185,000

Register with us, we’ll help make sure you don’t miss your dream home.

Save searches and properties, make notes, set up automatic email alerts for new properties.

Register Now

Please thank Jake for his time. He was a pleasure to view with and a great ambassador for your Company. I particularly liked the way he allowed me the space to think and did not make me feel rushed. I look forward to receiving the details and securing the property
Mrs. G.

WHY CHOOSE PEARSONS?

Our Offices


View Office Map

Service | Marketing | Experience

Terms & Conditions | Privacy Policy | Client Money Protection Certificate | Click here for a full list of our lettings fees | Complaints Procedures | Site Map | Website by fruitful studio

©2026 Pearsons | Pearsons Southern Limited is registered in England and Wales. Registered office: Kintyre House, 70 High Street, Fareham, Hants PO16 7BB. Company No. 01517996