SALE BY PUBLIC AUCTION ON THE 10TH FEBRUARY 2026 AT THE SILVERLAKE STADIUM, STONEHAM LANE, EASTLEIGH, SOUTHAMPTON, SO50 9HT STARTING AT 11AM.
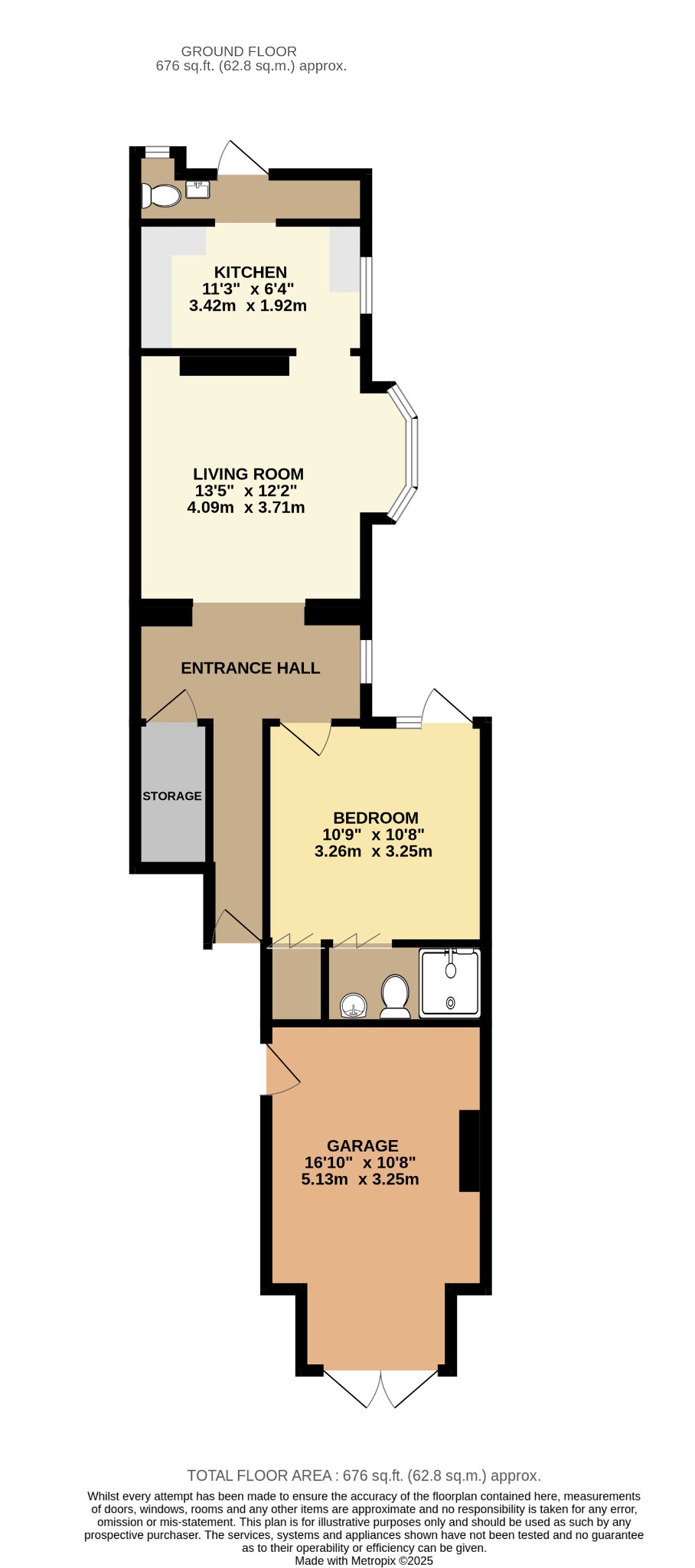
Situated in a popular residential area, this one-bedroom ground floor flat provides excellent potential for refurbishment and value enhancement. The accommodation comprises an entrance hall, living room, kitchen, bedroom, bathroom and W.C as well as a separate integral garage. To the rear is a south-facing garden. The property is in need of comprehensive modernisation throughout, making it an attractive prospect for investors, developers or owner-occupiers seeking a project.
Conveniently located for local amenities, transport links and schools, this is a rare opportunity to acquire a property with strong potential in a sought-after location.
ENTRANCE HALL
Smooth and coved ceiling, storage cupboard, UPVC double-glazed window and exposed floorboards.
LIVING ROOM
Smooth and coved ceiling, UPVC double-glazed window, radiator and exposed floorboards.
BEDROOM
Textured and coved ceiling,UPVC double-glazed window and door to garden, storage cupboard, radiator, exposed floorboards.
EN-SUITE
Smooth ceiling, enclosed shower cubicle, tiled splash back, low level W.C, wash hand basin and exposed floor boards.
KITCHEN
Smooth ceiling, UPVC double-glazed window, wall and base-mounted units, oven, radiator and tiled flooring.
W.C.
Smooth ceiling, UPVC double-glazed window, low level W.C, wash hand basin, wall mounted boiler and UPVC double-glazed door to the rear garden.
TENURE
TBC
COUNCIL TAX
Portsmouth City Council TAX BAND A £1,453.95 for the year 2025/2026.
ADDITIONAL FEES:
Buyers Admin Fee: £600 inc VAT (£500 + VAT), payable on exchange of contracts.
Disbursements: Please see legal pack for any disbursements listed that may become payable by the purchaser on completion.
MONEY LAUNDERING PROCEDURES
IN ACCORDANCE TO THE ABOVE, PLEASE BE ADVISED, THAT IF YOU INTEND TO BID ON THIS PROPERTY, THEN YOU WILL BE REQUIRED TO PROVIDE TWO FORMS OF ID (ONE PHOTO-TYPE). IF, YOU ARE INTENDING TO BID ON BEHALF OF A THIRD PARTY, THEN WE WOULD REQUIRE BOTH ID FOR YOURSELF, PLUS A CERTIFIED COPY OF PHOTO ID FOR THE INTENDED PURCHASER.
PLEASE SEE WEB-SITE, www.pearsons.com FOR FURTHER DETAILS.
Read full description
Show less