A beautifully presented three-bedroom terraced house offering charming, well-proportioned accommodation, an upstairs bathroom and a west-facing rear garden. The property has been thoughtfully improved by the current owner and is tastefully decorated throughout, blending period character with comfortable modern living. The accommodation comprises an entrance hall, a welcoming lounge with bay window and feature fireplace, a separate dining room with multi-fuel log burner and an opening through to the kitchen with integrated Bosch appliances and views over the rear garden.
Upstairs, there are three bedrooms, including a particularly spacious main bedroom with feature fireplace, along with a well-appointed bathroom suite. An early inspection is recommended to avoid disappointment.
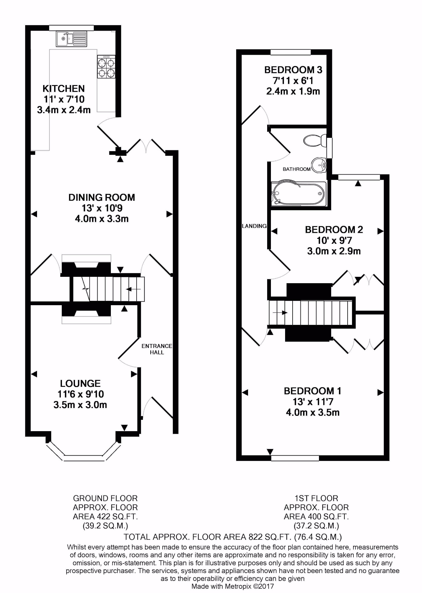
Enter via UPVC double-glazed door to;
ENTRANCE HALL
Smooth and coved ceiling, radiator, stairs rising to first floor landing and stripped wooden floor boards.
LOUNGE
Smooth and coved ceiling, double-glazed bay window, feature working open fire, radiator and fitted carpet.
DINING ROOM
Smooth ceiling, double-glazed double doors to rear garden, multi-fuel burner set on tiled hearth, under stairs storage cupboard, opening through to kitchen and stripped wooden floorboards.
KITCHEN
Smooth ceiling, double-glazed rear aspect window, double-glazed side door to rear garden, a range of wall and base-mounted units with roll top work surfaces over and inset one and a half bowl sink and drainer with mixer tap over. Integrated electric oven and gas hob with extractor fan over, integrated washing machine and dishwasher. Integrated fridge and freezer. Part tiled walls and stripped wooden floor boards.
BEDROOM 1
Smooth ceiling, double-glazed front aspect window with fitted shutters, feature open fireplace, fitted wardrobes, radiator and fitted carpet.
BEDROOM 2
Smooth ceiling, double-glazed rear aspect window, radiator, feature fireplace, fitted wardrobes and fitted carpet.
BEDROOM 3
Smooth ceiling, double-glazed rear aspect window, radiator and fitted carpet.
BATHROOM
Smooth ceiling, double-glazed obscure window, 'P' shaped bath with shower over and glass screen, low level WC, pedestal wash hand basin, tiled walls, vinyl flooring and ladder radiator.
OUTSIDE
The rear garden is mostly laid to patio with shrub and flower borders, brick wall enclosed and wooden storage shed.
COUNCIL TAX
Portsmouth City Council TAX BAND B £1,782.44 for the year 2026/2027.
Read full description
Show less