Pearsons Lettings are pleased to offer this 1st floor furnished 2 bedroom maisonette in the Bassett area of Southampton which benefits from its own front garden and 2 balconies. No pets. Available end Jan 2026.
The property is close to University of Southampton Highfield Campus and access to the M3 and M27 motorway.
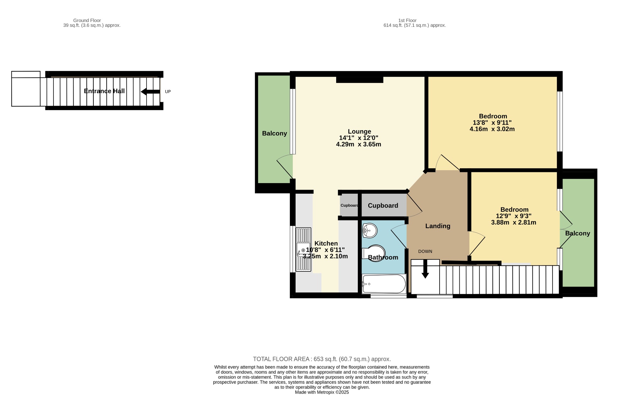
The property comprises of:
OWN ENTRANCE – Carpeted stairs to first floor and storage cupboard on the exterior.
HALLWAY – Carpeted flooring with cupboard off and doors to both bedrooms, lounge and bathroom.
LOUNGE/DINER- Good size room with ornamental fireplace and patio door to balcony. Door to kitchen. Furnishings consists of: Sofa and coffee table.
BALCONY: Overlooks rear of property.
KITCHEN – Various wall and base units. Appliances consist of washing machine, fridge, freezer, gas hob and electric oven. Cupboard off and window to rear.
BEDROOM 1: Double bedroom with window to front and carpeted flooring. Furnishings consist of double bed, bedside drawers and chest of drawers.
BEDROOM 2: Double bedroom with patio doors to balcony and carpeted. Furnishings consist of: Double bed and beside drawers.
BALCONY: Overlooks front of property.
BATHROOM - White suite bathroom with shower over bath, sink and toilet. Window to side.
FRONT GARDEN: Laid to lawn with hedge to front.
PARKING: Parking off road for 1 car. Further parking on street.
ADDITIONAL BENEFITS - Double-glazed and gas central heating.
DEPOSIT: £1265.00 (TO BE HELD UNDER TDS)
EPC – C
COUNCIL TAX BAND – B
PHONE COVERAGE: EE / VODAPHONE / 3 / O2
BROADBAND: 1000mbs – Openreach – Virgin Media & TOOB (TOOB and Virgin can be installed with permission from landlord)
A holding deposit of one week’s rent will be required to secure the property. This fee is payable at the time of application for the tenancy and will be held for up to 15 calendar days whilst reference checks and preparation for the tenancy agreement are undertaken.
The holding deposit can be retained should the applicant fail the Right to Rent check, provide false or misleading information that would affect the Landlord’s decision to grant the tenancy, the applicant withdraws from the tenancy, or the applicant fails to take all reasonable steps to enter into a tenancy agreement.
In Tenancy Penalty Fees apply, see website for details.
Read full description
Show less