Situated on Aylesbury Road, this charming three-bedroom period mid-terrace home offers a wonderful blend of character and modern living.
Externally, the property benefits from an attractive bay and forecourt frontage, setting the tone for what lies within. The accommodation begins with a bright and inviting bay-fronted lounge, featuring ample natural light and a welcoming atmosphere - perfect for relaxing or entertaining. To the rear, a stylish and contemporary kitchen/dining room provides an excellent social space, thoughtfully designed with modern fittings and offering lovely views over the rear garden.
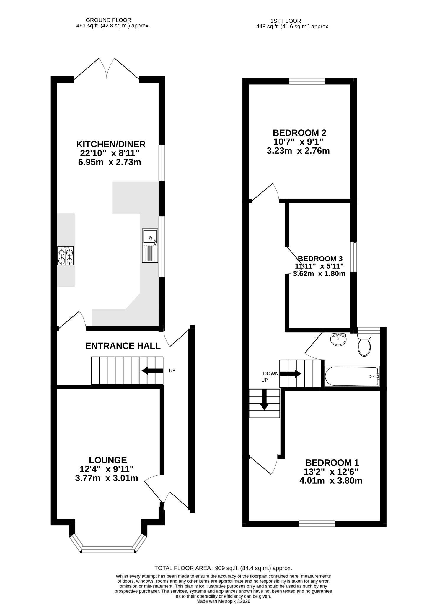
Upstairs, the property comprises two well-proportioned double bedrooms, alongside a third single bedroom which would also make an ideal home office or study. A modern family bathroom completes the first-floor accommodation. The rear garden has been beautifully landscaped, featuring a combination of patio, lawn, and a raised decking area with a pergola - creating a versatile outdoor space for dining, relaxation, and entertaining throughout the year. Presented in good condition throughout, this delightful home is perfectly suited to first-time buyers, growing families, or investors seeking a well-located property with period charm and contemporary finishes.
ENTRANCE HALL:
Ornate cornicing, two radiators, double glazed obscured door to side return, carpeted stairs to first floor, under stair storage area, laminate flooring.
LOUNGE:
Coved ceiling, double glazed bay windows, radiator, electric fire, laminate flooring.
KITCHEN / DINING ROOM:
Two double glazed windows to side aspect, double glazed double doors onto rear garden, radiator, range of wall and base mounted units with work surfaces over, inset stainless steel sink and drainer with mixer tap over, integrated appliances including high level electric oven, gas hob with extractor over, fridge freezer, dishwasher, and washing machine, corner pantry cupboard, breakfast bar, laminate flooring.
FIRST FLOOR LANDING:
Split level landing, loft access, fitted carpet.
BEDROOM 1:
Coved ceiling, double glazed window, radiator, fitted carpet.
BEDROOM 2:
Coved ceiling, double glazed window, radiator, fitted carpet.
BEDROOM 3:
Coved ceiling, double glazed window, radiator, fitted carpet.
BATHROOM:
Extractor fan, double glazed obscured window, panelled bath, WC, pedestal wash hand basin, tiled walls, tiled floor.
OUTSIDE:
Front - Forecourt. Rear - West facing enclosed garden, patio, lawn, raised deck with pergola over, mature planted borders.
COUNCIL TAX
Portsmouth City Council TAX BAND B £1,782.44 for the year 2026/2027.
Read full description
Show less